查看完整案例


收藏

下载
在山城重庆,
从朝天门往长江下游行船6公里,
在侧江岸有一个叫做“寸滩”的地方。
在过去的20年内,
随着集装箱码头的建成,
寸滩的城市分量变得举足轻重,
这里不再是城市边缘,
而将迎来新一轮的天翻地覆的发展。
CCDI悉地国际的最新设计落成的“重庆寸滩国际新城构象台”,其核心理念在于复杂的地形处理,通过方寸之间、跌宕起伏的空间营造,指引出城市更迭变迁、区域发展前行的时代写照。
01 场地启航
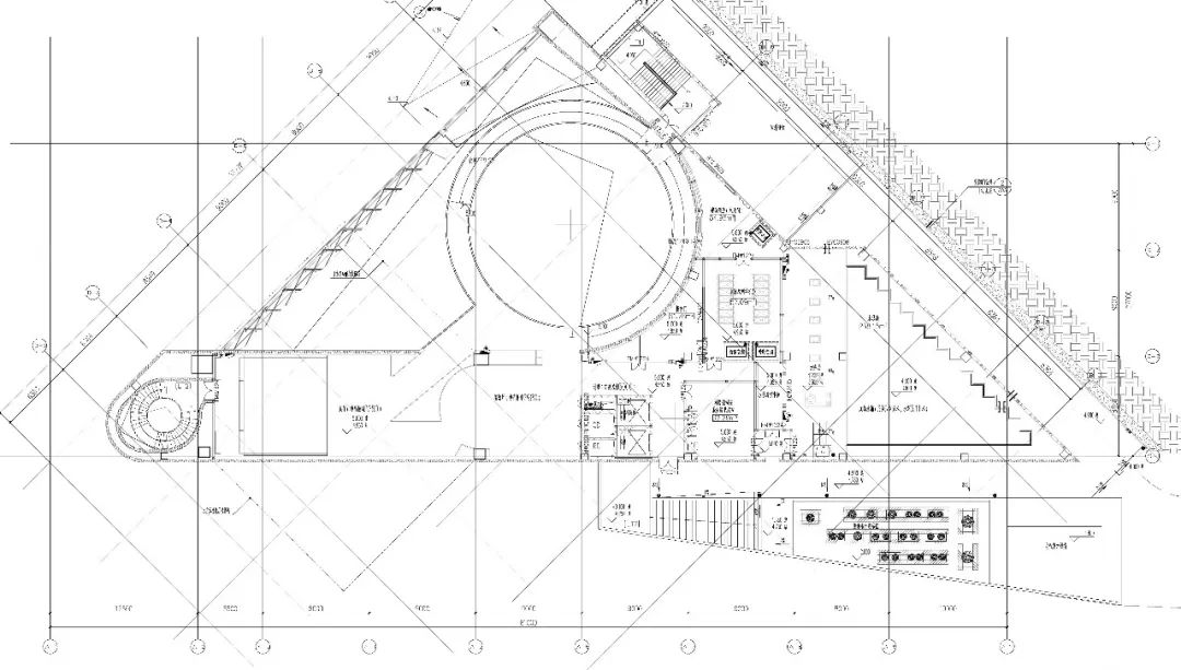
重庆寸滩国际新城展示中心(构象台)项目位于重庆市两江新区寸滩邮轮母港片区,长江与嘉陵江交汇下游 6 公里的长江北岸。这是一片起伏复杂的场地,建设用地位于邮轮母港片区东侧三角形台地上,向西可观江北嘴商务区及邮轮母港,向南可远眺两江交汇核心区城市天际线,北临寸滩保税区,与南山隔江对望。地块周边为居住用地、公园绿地及共用设施用地。设计范围位于用地中部,地块北侧规划为酒店,南侧规划为商业街。本项目将作为未来两种业态的连接和过渡。
建筑师同时关注到了项目于外的“昭示作用”,于内的“衔接意义”,尽量通过对场地进行最小程度的改造来实现设计意图。场地内地形大致为北高南低,最低点绝对标高 204.28,最高点 236.03,高差约 32 米。现状道路与最高点平台高差约 10m。在设计策略上,将首层主入口设置在原有 226 标高平台,背靠崖壁形成三层建筑,并且在 236 标高设置次入口。整个建筑利用地形,构成“船头立于浪尖”的形式寓意。
构象台,立于江岸山头之上,不仅是关于寸滩片区规划展览中心,更是一个眺望重庆未来的时空窗口。
“两江四岸”是重庆城市发展的主轴,承载了重庆数千年的历史记忆,是重庆“山水之城、美丽之地”的集中展示区。“构象台”宛如从崖壁上自然生长而出,稳重挺拔、姿态昂扬,似一艘扬帆起航的邮轮造就乘风破浪的气势,领航寸滩片区发展,成为“两江四岸”的新风景。
02 文化取章
构象台的启用,是寸滩国际新城建设的标志性事件,将成为展示寸滩国际新城规划建设情况的重要窗口,成为寸滩片区招商引资的重要平台。
“构象台”之名,取自南北朝诗人江淹的《杂三言,构象台》一诗。构象可理解为“立象以尽意”,为重庆山城赋予了“构象方寸、筑梦金滩”憧憬气象。
对建筑师而言,面对长江这种独一无二的自然景观,面对场地强烈的高差,面对环境相当长时段内相对芜杂的环境,设计团队在经过了反复的研究和试探之后,选择以一种极简的设计语言,近乎大地艺术的处理方式,长江、航运所关联的元素进行提取幻化,力求设计出一个城市高速迭代的空间缩影。而在建筑内部,也处处植入了能唤起过往岁月记忆的符号。
03 空间营造
在空间序列的营造上,建筑师在北侧靠近山体一侧,利用建筑与挡土墙空腔设置车行通道。便于内部流线管理以及未来与规划道路连接。车道位于 236 标高平台下方,东西两侧分别设置出入口。参观者可通过室内楼梯先到达室外楼梯平台到达屋顶,亦可直接通过室外楼梯直接屋顶,可在屋顶观景平台欣赏寸滩建设,并在最南端三向观景。
构象台共分为三层,一层为寸滩片区历史文化和寸滩国际新城规划展示区,二层为沉浸式体验区,三层为多功能厅。各区域充分运用声、光、电、机械、数码、信息、多媒体和网络等手段,并设有独特的螺旋坡道,营造流连忘返的参观体验。
当人们步入寸滩片区历史文化和寸滩国际新城规划展示区,一轮名为“日月同辉,星辰大海”的半球形艺术装置映入眼帘,复刻寸滩江滩礁石原型的古渡磐石置于一侧。串串水晶灯珠点缀上方,象征着寸滩古渡的点点渔灯。沿着螺旋步道,缓步向上,途中赏全球著名河流的邮轮港口,听金滩号角的轮船汽笛发出邮轮启航长鸣,到达二层的沉浸式体验区,身临其境地体验未来港口上“登船如登机”的场景,感受从寸滩出发直至上海的江海联游之旅。
04 立面研究
在整体设计思路的延续下,建筑立面设计被设定为“带有地域适应性的现代主义风格”,简洁、有序的立面造型下,玻璃与混凝土的搭配,构筑出厚重而通透的视觉效果。西侧立面三角形元素与建筑形体相匹配,悬锁幕墙构造达到轻盈通透的效果。东侧立面以实体墙面为主,主体材料为预制玻璃纤维混凝土板(GRC),呈现真实自然的质感。
鉴于重庆当地多云,多雾,多雨的地理气候环境,需使本案的立面造型能在重庆的自然环境条件下保持恒久的品质感。色彩上采用青灰色为主的建筑色,配合GRC混凝土、low-E玻璃等作为主要立面元素。在整体上符合重庆作为现代化大都市的规划要求的同时,也突出表达了本案不同于其他项目的一种品质感和标志性。立面材质和颜色选择上,既不张扬跳跃又不会随时间流逝和雨水洗刷而轻易变脏。
重庆寸滩国际新城构象台,空间的折叠与灵动性,立面的朴素与真实感,勾勒出一个新时代下的山城文化的独特韵味,指引着寸滩片区的未来启航。
项目档案
项目名称:重庆寸滩国际新城展示中心
开发单位:重庆两江新区建设有限公司
方案设计:CCDI 悉地国际,东西影工作室
主创建筑师:朱雄毅、王照明
建筑/结构/机电全专业初步设计:CCDI悉地国际
施工图&EPC项目管理:中冶赛迪
用地面积:5178平方米
总建筑面积:4859平方米
容积率:0.94
建筑高度:24米
设计时间:2020年
开业时间:2023年
建筑摄影:三棱镜景观摄影
客服
消息
收藏
下载
最近





























