查看完整案例

收藏

下载
Helles Apartment in Paris: Diese 70-Quadratmeter-Wohnung mit Blick auf den Canal Saint-Martin ist ein gelungener Mix aus Licht, sanftem Minimalismus und exquisiten Hölzern.
Der Boden und die Wände aus Beton sind simpel, ergeben hier aber dennoch einen wohnlichen Look. Diverse Möbel wie hier das Sofa mit Ablage wurden von den Gründern von Kann Design nach Maß entworfen und im Atelier Kanaan im Libanon aus Okoumé-Holz hergestellt. Darauf die Tischleuchte „Kizu“ von New Works und ein Fotodruck von Romain Preto. An der Wand im Flur ist eine Collage von Léonard Kadid (Desplans) zu sehen.
Kann Design/Rudy Bouchebel
Der Blick nach draußen, direkt auf den Canal Saint-Martin, war atemberaubend. Der nach drinnen eher weniger. „Wir hatten uns nicht in das Apartment verliebt … nicht sofort jedenfalls. Es war überladen und sah überhaupt nicht so aus wie jetzt“, erinnern sich Meghedi Simonian und Houssam Kanaan amüsiert. „Es war die Lage, in die wir uns verliebt haben. Da wir schon lange in der Gegend wohnen, kannten wir das Gebäude von 1980 gut.“ Bis die beiden Gründer des kleinen Möbellabels Kann Design aber das finale „Go“ für die Umgestaltung erteilten, bedurfte noch einer Menge an Fantasie und Planung. Und einer Vision, die den Charakter der kleinen Wohnung am Quai de Valmy von Grund auf verändern würde
Umbau in Paris am Quai de Valmy
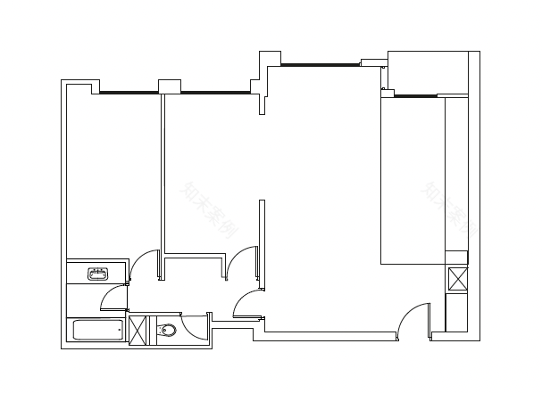
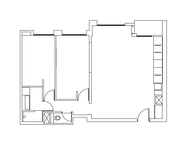
Der Grundriss der Wohnung – er entsprach noch unverändert dem Zustand aus den 1980er-Jahren – war rational und praktisch, so dass kein Platz verschwendet wurde und nur zwei größere Anpassungen nötig waren: Einen Raum ließen die Designer schließen, die Küche gestalteten sie komplett um. Eine größere Überraschung boten die Materialien. Nachdem das Parkett entfernt und die Wände freigelegt waren, kam ein interessanter Kiesbeton zum Vorschein, den Meghedi Simonian und Houssam Kanaan in jedem Fall erhalten wollten. „Mit den Kieselsteinen darin ist es zwar noch kein Terrazzo-Boden, aber uns gefiel der mineralische Touch.“ Zusammen mit einigen sandfarben gekalkten Wänden der ideale Background für schlichte Holzmöbel, die die Besitzer selbst entwarfen und anfertigen ließen.
Im Wohnzimmer steht eine „Gras 205“-Leuchte von DCW éditions. Der Couchtisch aus Basalt setzt sich aus drei Teilen zusammen, die die Designer in Beirut entdeckten. An der Wand hängt ein Fotodruck von Serge Najjar, Teil von dessen Serie über die Architektur von Beirut. Der Teppich stammt aus dem Iran.
Kann Design/Rudy Bouchebel
Minimalistisch, natürlich und geometrische Formen
Im Wohnzimmer und den beiden Schlafzimmern wählten die beiden Designer dunkles Okoumé-Holz, unter anderem für raumhohe Schränke, die sich mithilfe von ins Profil integrierten Griffen öffnen lassen. Ganz ähnlich funktionieren auch die Schranktüren in Küche und Bad – formale Einheitlichkeit war dem Paar ebenso wichtig, wie die klar definierte Materialpalette. Das gilt auch für die Möbelauswahl: Die beiden Kann-Design-Gründer entschieden sich für ein Stuhl-Modell in naturbelassener Esche aus dem eigenen Sortiment, das in der gesamten Wohnung zu finden ist – eine Ausnahme bilden der Sessel von Charles Pollock im Hauptschlafzimmer und der Stuhl von Serener im Kinderzimmer.
„Wir beide lieben die einfachen Dinge, hinter der Schlichtheit von Formen verbirgt sich wahre Eleganz.“ Das gilt auch für das lindgrün gepolsterte Sofa im Wohnzimmer und die bordeauxroten Sitzbank daneben, von denen der Blick auf den Canal Saint-Martin hinaus geht. „Das ganze Interior ist auf den Kanal und das Licht hin ausgerichtet.“ Ein Möbelstück im Wohnbereich steht mit seinem natürlichen, unbehandelten Look – keine Lackierung oder Beschichtung – ganz besonders in Kontrast zum Rest der Wohnung, den zahlreichen Holz-Oberflächen, den klaren Linien und den geometrischen Formen: der Couchtisch. Dieser setzt sich aus insgesamt drei Teilen aus Basalt-Stein zusammen, zwei massiven Blöcken unter einer dünnen Platte, die als Tischplatte dient. Die Steine stammen aus einem Steinbruch in Beirut, mit dem Kann Design häufig zusammenarbeitet. Ebenfalls nicht aus Okoumé-Holz, sondern aus grau lackierter Eiche ist der Esstisch, der eher an eine Art Werkbank erinnert – und ein Stück wegführt von der typischen Pariser Eleganz.
Die längliche Bank vor dem Fenster mit bordeauxroter Leder-Polsterung hat Meghedi selbst entworfen.
Kann Design/Rudy Bouchebel
Durch das Erkerfenster genießt man einen herrlichen Ausblick auf den darunter liegenden Kanal.
Kann Design/Rudy Bouchebel
Ein lichtdurchflutetes Appartement in Paris
Gezielt setzten die beiden Designer immer wieder ausgewählte Farbakzente, während den Rest das Wasser des Kanals vor den Fenstern übernimmt, das reizvolle Lichtreflexionen auf die Kalkwände und den Beton wirft: ein iranischer Teppich in dunklen Rottönen im Wohnzimmer, eine knallgrüne Teekanne in der Küche, bordeaux- und lindgrüne Lederpolsterungen, im Kinderzimmer ein blau-lilafarbener Teppich und im Badezimmer ein grüner Waschtisch vor cremefarbenen Fliesen. Um den minimalistischen Look zu erhalten, wurde auf Fußboden-Leisten verzichtet. „Wir sind sehr stolz auf das Ergebnis“, sagen Meghedi Simonian und Houssam Kanaan. „Der zuständige Bauleiter war eher skeptisch, aber der Entwurf hat funktioniert. Un heute ist die Wohnung wirklich genau so, wie wir sie uns erträumt hatten.“
Verschiedene Holzarten wie Okoumé, Eiche und Esche stehen im Kontrast zu Betonwänden und -böden und den gekalkten Decken. Auf dem Regal steht das Foto „Guerrier Masseke“ von Colin Delfosse.
Kann Design/Rudy Bouchebel
Auch im Hauptschlafzimmer dominieren sanfte Farbtöne. An der Wand hängen die Leuchte „Vision 20/210“ von DCW éditions und eine Tierillustration von Shabnam Zeraati.
Kann Design/Rudy Bouchebel
Um den minimalistischen Look beizubehalten, verzichtete Kann Design auf Fußbodenleisten. Der „Executive“-Sessel ist von Charles Pollock, 1965.
Kann Design/Rudy Bouchebel
Auf dem Schreibtisch im Kinderzimmer steht eine geometrische „Biny“-Leuchte von DCW éditions. Der Holzstuhl „Tal“, der in der Wohnung immer wieder auftaucht, stammt aus der eigenen Kollektion von Meghedi Simonian und Houssam Kanaan.
Kann Design/Rudy Bouchebel
Die Wohnung ist geprägt von Grau-, Sand- und Holztönen. Vor den maßgefertigten Schränken aus Okoumé-Holz steht der „Wendela“-Stuhl, der von Serener für Functionals) entworfen wurde. Darüber die Wandleuchte „In The Tube 360°“ von Dominique Perrault und Gaëlle Lauriot-Prévost für DCW éditions.
Kann Design/Rudy Bouchebel
Formal gleichen die grünen Schränke des Waschtisches im Bad den Küchenschränken, auch wenn die Farbe wechselt. Hängeleuchte „In The Tube 360°“ von Dominique Perrault und Gaëlle Lauriot-Prévost (DCW éditions).
Kann Design/Rudy Bouchebel
Die quadratischen Keramik-Fliesen und ihre schwarzen Fugen spielen auf die 1980er-Jahre und das Baujahr des Gebäudes an.
Kann Design/Rudy Bouchebel
Der Grundriss der Wohnung vor der Renovierung …
… und nach dem Umbau.
Zuerst erschienen bei AD France.
客服
消息
收藏
下载
最近
















