查看完整案例

收藏

下载
Das Esszimmer ist zur Küche (rechts) und zum Wohnzimmer hin offen. Massé zauberte und lässt die 65 Quadratmeter des Appartements größer wirken durch ein durchdachtes, mutiges Konzept und natürliche Materialien: gebeiztes Eichenholz, beigefarbener gewachster Beton und weiße Farbe.
Arthur Fechoz
Im Sehnsuchtsort Montmartre in Paris hat der Architekt und Designer Martin Massé eine kleine Wohnung in ein luftiges Zuhause mit viel Licht und natürlichen Materialien verwandelt.
Montmartre Paris, IX. Arrondissement, Condorcet – eine Malerin beauftragte den Architekten und Designer Martin Massé, ihre typisch verwinkelte Wohnung mit schiefen Wänden in Montmartre Paris neu zu gestalten. Ihre zwei Zimmer, die durch eine tragende Wand mit Kaminschächten getrennt waren, sollten zu einem freizügigen offenen Domizil werden. Eine reizvolle Herausforderung.
Massé: „Wir haben beschlossen, im großen hinteren Raum Wohnzimmer, Esszimmer und die Küche zu integrieren, natürlich alles offen. Die Küche wurde dabei entlang der linken Wand verkeilt und mit niedrigen Möbeln ausgestattet, dadurch wurde die Optik des Wohnzimmers nicht allzu sehr beeinträchtigt.“ Große Aufbewahrungselemente wurden in die Wände integriert, dazu noch eine lange Reihe von Holzelementen – et voilà, alles Funktionale wurde ausgeblendet, und ein großer multifunktionaler Raum entstand.
Die Küche integriert alle Elektrogeräte hinter gebeizten Eichenholzfronten. Kredenz und Regal aus gewachstem Beton sowie die Arbeitsplatte schmücken Objekte, die an alles andere als ans Kochen denken lassen. Ein zusätzlicher Kniff, um Küche nicht als Kochraum wahrzunehmen. Links: Keramiklampe von Denis Castaing.
Arthur Fechoz
Kreativität und Mut
Dieser Plan leuchtet ein, doch wohin mit dem Schlafzimmer? Tatsächlich muss man das Schlafzimmer passieren, um ins Wohnzimmer zu gelangen – aber hier werden die Kreativität und der Mut von Massé sichtbar. Der Architekt entwirft für das Appartement in Montmartre Paris ein Büromöbelstück, dessen Regale (die auch ein Bestandteil des Schreibtischs sind) das Schlafzimmer abschirmen, das man dadurch tatsächlich beinahe übersieht. Die Regale mit ihren abgerundeten Enden sind eine modernisierte Reminiszenz an das Art déco. Sie wurden zudem crèmefarben lackiert und sind aus demselben Holz, das auch für die Arbeitsplatte in der Küche und für den Fußboden verwendet wurde: gebeizte Eiche. Für die Authentizität der Räume ist Massé Qualität bei der Wahl der Materialien wichtig: Holz und gewachster Beton.
Im Wohnzimmer: Couchtische von Jean-Guillaume Mathiaut, Wenge-„Guéridon“ von Martin Massé, kleiner Sessel von Frédéric Pellenq (alles Kolkhoze) und ein Sofa im Vladimir-Kagan-Stil. Über dem Kamin: Kunstwerk von Christiane Pooley Topali.
Arthur Fechoz
Qualität der Materialien
In der Küche sind die Nische und das Regal aus gewachstem Beton, der sich als Streifen auf dem Boden vor den Unterschränken aus gebeizter Eiche wiederfindet. „Es soll so wirken, als ob sich der gewachste Beton an der Wand hochzieht, ganz wie bei den Panoramabildern in einem Cyclorama.“ Ein Trick für mehr Weite in einem kleinen Wohnraum. Einen Raum weiter dominieren crèmefarbene Mosaike aus Glaspaste die Allover-Fliesen im Badezimmer, die mit dem zarten Rosé des Waschbeckens und einer Dusch-Nische aus gegossenem Corian harmonieren; ein Wohlfühlort, egal, wie klein oder groß er ist.
Naturbelassene Töne dominieren dieses Appartement in Montmartre Paris: gebeizte Eiche, sehr hell gewachster Beton und weiße Farbe für die Wohnbereiche. Die Malerin, Eigentümerin der Wohnung, will hier ihre Werke in einer neutralen Umgebung ausstellen, damit sie optimal zur Geltung kommen. Die sorgfältig ausgewählten Möbel unterstreichen das Understatement: ein Couchtisch von Jean-Guillaume Mathiaut im Wohnzimmer, ein Beistelltisch von dem Architekten Martin Massé, ein kleiner Sessel von Frédéric Pellenq und ein Sofa im Vladimir-Kagan-Stil. In der Küche die Keramiklampe von Denis Castaing, die nur hervorhebt, was den Betrachter bzw. die Betrachterin interessieren soll, und alles andere im Halbdunkel lässt. Funktionen verschwinden, ein optimiertes und rationales Universum wurde kreiert, das durch Eleganz, Natürlichkeit und Reduktion besticht.
Den dunklen Tönen des Parketts und des Kamins entsprechen die hellen Wände, Stoffe und ein Teppich. Davor helle Wände, gebeiztes Eichenparkett und Kamin, dazu ein kleiner runder Teppich. Vor dem kleinen Sessel von Frédéric Pellenq Couchtische von Jean-Guillaume Mathiaut (Kolkhoze). Kunstwerk von Christiane Pooley Topali.
Arthur Fechoz
Licht ist ein wichtiges Gestaltungselement, hier wird es als samtige Komponente eingesetzt. Vor einem geschwungenen Sofa im Vladimir-Kagan-Stil stehen Couchtische von Jean-Guillaume Mathiaut (Kolkhoze).
Arthur Fechoz
Große raumhohe Einbauschränke, crèmefarben lackiert, gehen in sinnlich abgerundete Regale über, die von Martin Massé entworfen wurden. „Pendolita“-Hängeleuchte aus den 1960er-Jahren.
Arthur Fechoz
Bürobereich und das crèmefarben lackierte Regal bestehen aus gebeiztem Eichenholz wie die Türen der Küchenelemente. Horizontale und vertikale Rundungen erinnern an Art déco und lassen an Ozeandampfer denken.
Arthur Fechoz
Tatsächlich ist das Schlafzimmer der erste Raum, den man betritt. Ein Büromöbelstück mit Regalen und Schreibtischelement tarnt das Bett.
Arthur Fechoz
Die Hauptfarben Weiß, Beige und Crème sorgen für ein aufgeräumtes, zurückgenommenes Interior, das sich in den anderen Räumen des Appartements hervorragend für die Präsentation der Kunstwerke der Malerin eignet.
Arthur Fechoz
Crèmefarbene Mosaike aus Glaspaste dominieren die Allover-Fliesen im Badezimmer, dazu das zarte Rosé des Waschbeckens und eine Dusch-Nische aus gegossenem Corian: ein Wohlfühlort, egal, wie klein oder groß er ist.
Arthur Fechoz
„Glo-Balls“ (Flos) sind in den Spiegeln über dem Waschbecken integriert. Die Farbtöne sind pudrig und zart.
Arthur Fechoz
Grundriss des Appartements vor der Renovierung.
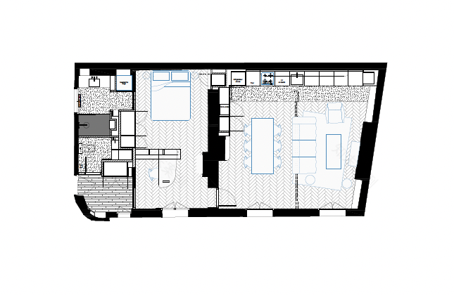
Grundriss des Appartements nach der Renovierung.
客服
消息
收藏
下载
最近
















