查看完整案例

收藏

下载
Gesamtkunstwerk en miniature: Beim Umbau dieser kleinen Wohnung in Paris wurden Architektur, Einrichtung und Kunst von Anfang an perfekt aufeinander abgestimmt.
Diese Adresse ist für Pariser:innen ein echter Hingucker: Nur wenige Meter entfernt vom Élysée-Palast liegt dieses 50-Quadratmeter-Apartment. Es gehört einer Kunstsammlerin, die das kleine Wohnung in Paris in ein elegantes, aber schlichtes Pied-à-terre umgestalten wollte. „Es gibt zwar keine schönen Stuckarbeiten und auch keinen Balkon, aber immerhin hohe Fenster, die sich zu einem charmanten historischen Innenhof hin öffnen, und eine Deckenhöhe von 3,20 Meter“, sagt die Architektin Adeline Hémonnot. Ihre Aufgabe bestand darin, diesen für Pariser Verhältnisse kargen Räumen – „die Wohnfläche war wie ein leeres, weißes Blatt“ – Leben einzuhauchen. Hierfür arbeitete sie mit dem Innenarchitektur-Duo Sophie und Florian Libéral von Sensible Paris und der Kunstkuratorin Anne Sirot zusammen.
Die Wände wurden mit dem Tonputz „Argile Blanche“ von Argile verkleidet und der Boden mit dem Beton Ciré „Parchemin“ von Marius Aurenti versehen. Auf der schraubenförmigen Säule aus Eschenholz von Sensible Paris im Hintergrund steht eine Vase aus hellem Schamottstein von La Mano Studio. „Aminima“-Teppich über Galerie Diurne.
Agathe Tissier
Architektur, Interior, Kunst: Hier basiert alles auf Teamwork
Die meisten Architekt:innen werden zustimmen: Von der Kohärenz ihrer Entwürfe ist oft nicht mehr viel übrig, wenn die Klient:innen erst ihre Einrichtungsideen verwirklicht haben. Es kommt selten vor, dass bei einem Interior-Projekt jedes kleinste Detail bereits vorab ausgearbeitet wird, für jedes Möbelstück schon der richtige Platz feststeht und jedes Kunstwerk zur Geltung kommt. „Wenn wir mit einem Interior-Projekt beauftragt werden, kommen wir in der Regel erst dann ins Spiel, wenn der Rahmen bereits steht“, erklärt der Innenarchitekt Florian Libéral. „Manchmal hat der Architekt bereits eine Einkaufsliste vorgegeben, und manchmal haben die Eigentümer alleine mit dem Einrichten der Wohnung begonnen und wissen nicht mehr weiter.“ Die Kurator:innen kommen meist sogar noch später hinzu, um in einer bereits feststehenden Inszenierung lediglich noch ein paar Akzente zu setzen. „Man muss sich darüber im Klaren sein, dass es sich bei dem, was ich vorschlage, um ‚situative Kunst‘ handelt und nicht um eine beliebige Kunstgalerie“, erklärt die Kuratorin Anne Sirot. „Meine Auswahl ist individuell auf den jeweiligen Ort und seine Geschichte abgestimmt. Und natürlich auch auf die der Bewohner.“ Basierend auf diesem Ansatz schlossen sich die vier Ästhet:innen – eine Architektin, eine Kunstkuratorin und ein Innenarchitektur-Duo – zusammen und stellten sich der Herausforderung, diesmal alles in einem Guss zu gestalten.
Von links nach rechts: die Kuratorin Anne Sirot, die Architektin Adeline Hémonnot und das Innenarchitektur-Duo Sophie und Florian Libéral von Sensible Paris.
Agathe Tissier
Gekonntes Spiel mit Farben, Formen und Materialien
Angefangen mit dem Eingangsbereich, sorgt ein durchgängiger Beton-Ciré-Boden in einem modernen, hellen Farbton für Einheitlichkeit, während sanft abgerundete Deckenkanten eine elegante Note verleihen. Die Türen wurden mit Kreis-Formen geschmückt und erinnern mit ihrem kontrastreichen Design an die Innenfensterläden alter Wohnungen. An den beiden symmetrisch ausgerichteten Durchgängen im Wohnzimmer – die beide in die Küche führen – wurden Rahmen aus dunkel gefärbten Eichen-Furnier angebracht, die an süditalienische Paläste erinnern. Darüber ist jeweils an der Wand ein Kreis aus demselben Furnier angebracht – eine Form, die im gesamten Interior immer wieder aufgegriffen wird. Ähnliche Furnier-Verkleidungen finden sich auch in der Küche, im Schlafzimmer und in der Ankleide wieder. An diesen Stellen kommen die von der Kuratorin Anne Sirot ausgewählten Kunstwerke durch die dunkle Farbe der Verkleidung besonders gut zur Geltung.
Vor dem „Pumpkin“-Sofa von Pierre Paulin für Ligne Roset steht der „One Piece“-Couchtisch von Valentin Loellmann, daneben ein mintgrüner „New Wave“-Hocker von Lukas Cober (beide über Galerie Gosserez). Fifties-Stehlampe von Pierre Guariche, keramische Wandskulpturen von Atelier Hiromi. Die Decke ist in der Farbe „Rotin Tressé“ aus der Kollektion Heju x Ressource gestrichen.
Agathe Tissier
Durch den Durchgang, der von einem palisanderfarbenen Eichenfurnier umrahmt wird, gelangt man in die Küche. Auch die Tür zur Ankleide auf der linken Seite zeigt ein Kreismotiv – es gehört zum Originaldekor der Wohnung.
Agathe Tissier
Die kleine Wohnung ist zum eleganten Kokon geworden
Die Einrichtung kombiniert Vintage und Modernität, die Materialien reichen von Keramik über dunkles Holz, Schmiedeeisen, Leder und Wolle bis zu Beton. Kunst und Handwerk nehmen innerhalb des Interiors etwa gleich viel Raum ein. Während helle Farbtöne wie Beige und Rosa und Rundungen in der Architektur, den Möbeln – und auch den Kunstwerken! – für eine entspannende Atomsphäre sorgen, werden durch die Holzverkleidungen dunkle, kräftige Akzente gesetzt. An einer Wand des Wohnzimmers lehnt ein abstraktes Großformat in ruhigen Farben von Renaud Barse. Die weißen Wandskulpturen über dem Pierre-Paulin-Sofa schräg gegenüber wurden von Johanna Clisson für Atelier Hiromi geschaffen und scheinen in einem regen Austausch zu stehen mit der „G2“-Stehleuchte von Pierre Guariche, dem „New Wave“-Hocker aus Glasfaser von Lukas Cober und einem Couchtisch aus feuergeschwärzter Eiche von Valentin Loellmann. Im Schlafzimmer steht vor der cremefarbenen Wand ein dunkles flämisches Kabinett aus dem 17. Jahrhundert, das von zeitgenössischen Zeichnungen umgeben ist – gekrönt wird es von einer kleinen Betonskulptur von Mattia Listowski. Die einst unscheinbare Mini-Wohnung in Paris ist zu einem eleganten, maßgefertigten Kokon geworden: genau das richtige Apartment für eine Sammlerin, die ihre Kunst nicht präsentieren, sondern mit ihr leben möchte – auch auf kleinem Raum.
Die große Flügeltür in dunklem Bordeaux mit goldenen Details führt direkt in den Wohnbereich.
Agathe Tissier
Der „Menhir“-Sessel von Men Allen wurde über die Galerie Gosserez erworben, das große Ölgemälde stammt von Renaud Barse. Die Decke ist in der Farbe „Rotin Tressé“ aus der Kollektion Heju x Ressource gestrichen.
Agathe Tissier
Für den gesamten Boden wurde der Beton Ciré „Parchemin“ von Marius Aurenti eingesetzt. Links vor dem Durchgang ins Schlafzimmer wurde die Wand mit Eichenfurnier verkleidet, während die Decke in der Farbe „Roussillon“ von Argile gestrichen ist.
Agathe Tissier
Die südflämische dunkle Kommode aus dem 17. Jahrhundert ist aus Eben- und Birnenholz und steht auf einem verchromten Metallgestellt aus dem Jahr 1960, das aus der Galerie Jean-Francois Hubeaux stammt. Darauf steht die Betonskulptur „Passage 6“ von Mattia Listowski. An der Wand (von links nach rechts) hängt eine Gouache von Charles Marq, eine Collage von Noriko Fusé und eine Fotogravur von Marie-Pierre Morel.
Agathe Tissier
Das Kopfteil im Schlafzimmer kombiniert Eichenfurnier und zwei schmale Streifen in der Farbe „Roussillon“ von Argile – links und rechts die Wandleuchte „Greffe“ von François Bazin. Auf der kleinen Nacht-Konsole steht ein Werk von Marie-Pierre Morel, die Bettwäsche ist von La Serviette Paris. Das bestickte Kissen stammt aus Mexiko.
Agathe Tissier
Das individuell entworfene Türdesign harmoniert mit dem glänzend schwarzen Sockel der Badewanne, den „Lume“-Fliesen von Marrazzi zieren. Am Wannenrand eine Sandstein-Schale von Atelier Motoko.
Agathe Tissier
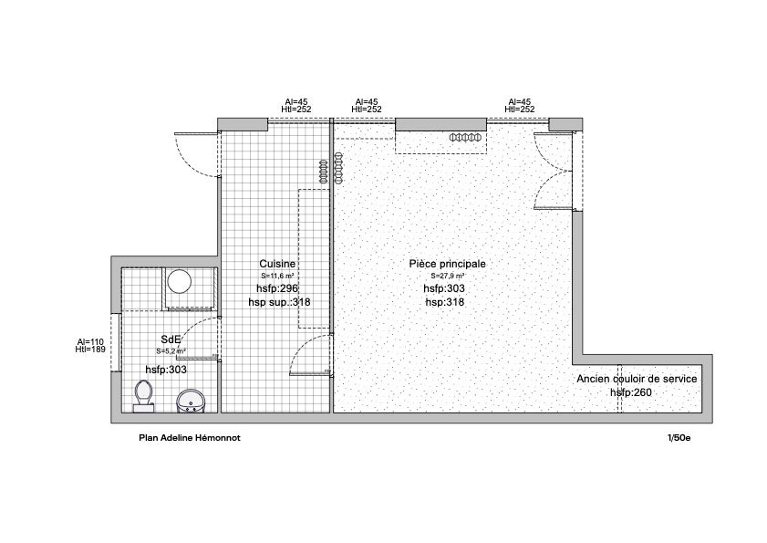
Der Grundriss der Wohnung vor der Umgestaltung.
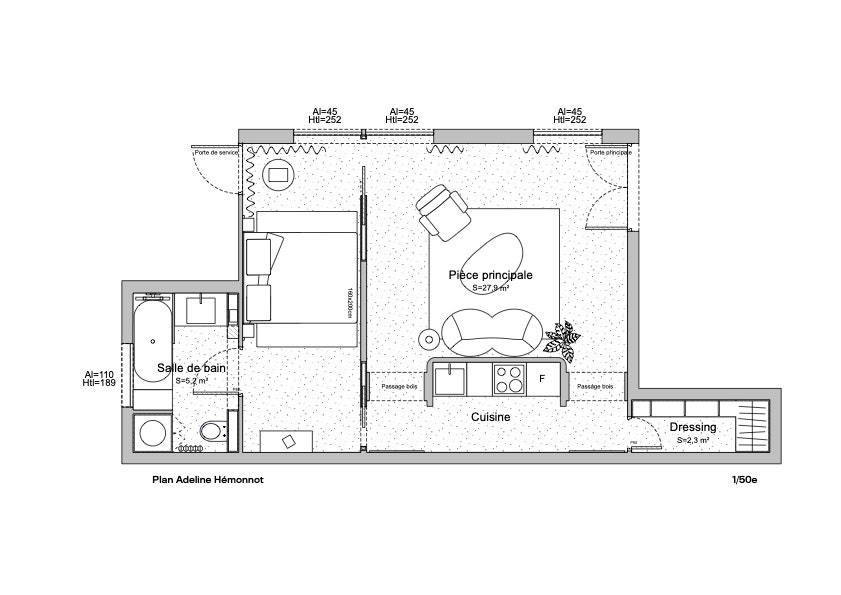
Der Grundriss der Wohnung nach dem Umbau.
Zuerst erschienen bei AD France.
客服
消息
收藏
下载
最近















