查看完整案例

收藏

下载
Dieses 45 Quadratmeter kleine Apartment mit Dachschräge in Paris wird nach einer Renovierung neu erfunden.
Abseits der Touristenströme, südlich des angesagten Pariser Trendviertels South Pigalle („SoPi“ für Insider) in Saint-Georges befindet sich dieses 45 Quadratmeter Dach-Apartment. Die lebendige Gegend im 9. Arrondissement passt zu den Eigentümern der kleinen Immobilie: Als leidenschaftlicher Kunst- und Designliebhaber steht Kreativität für ihn im Vordergrund. Daher überrascht es wenig, dass er die 2016 von Sylvain Raillard und Timothée Souchard gegründete Pariser Agentur Inée mit der Renovierung ihrer Immobilie beauftragte: Neben der Architektur spielt auch das Design und die Szenografie eine wichtige Rolle im Leben des Inhabers. Die Agentur verstanden die Herausforderung, die mit diesem Projekt einherging: „Die Wohnung war von den früheren Besitzern zwar renoviert worden, aber gewisse ästhetische Elemente passten einfach nicht zu den jetzigen Hausherren und sie baten uns, die Küche, das Wohnzimmer und die Durchgänge zwischen den Räumen zu überdenken.“ Auch sollte das Zusammenspiel von unterschiedliche Materialien, Texturen und Farben eine wirkungsvollere Atmosphäre schaffen.
Kleines Apartment mit Dachschräge wird kreativ verwandelt
Die Designer nahmen sich der Aufgabe an, erarbeiteten Entwürfe und dachten groß: „In einer Stadt wie Paris, in der jeder Quadratmeter kostbar ist, steht die Raum-Optimierung im Vordergrund.“ So wurde zunächst der Durchgang zwischen dem Wohnzimmer und dem Hauswirtschaftsraum geschlossen. Im Letzteren fand ein neues, knapp vier Quadratmeter großes Badezimmer seinen Platz. An dessen Stelle wiederum wurde ein kleines Ankleidezimmer untergebracht, das vom Licht des Südfensters optimal profitiert. Auch der Eingangsbereich und die Küche wurden neu gestaltet.
Verkleidete Balken setzten visuelle Akzente
Wie so viele Dachwohnungen besticht auch das dieses Apartment mit horizontalen und vertikalen Balkenelementen. „Hier galt es abzuwägen, welche Komponenten man sichtbar lässt und welche man verkleidet, um eine ästhetische und zugleich minimalistische Atmosphäre zu schaffen“, so die Designer. Da die Balkenverläufe weiterhin aus Holz bestehen sollten, spielte auch die Art der Verschalung eine Rolle. Das Resultat ist eins, das sich sehen lassen kann, oder eben nicht: Das subtile Verstecken unerwünschter Balkenteile setzt nun neue visuelle Akzente und erweitert die Raumperspektive. So wie beim Durchgang zwischen der Küche und dem Wohnzimmer: Wo einst der obere Teil der ‘Tür’ in einem verschlungenen Fachwerk geöffnet war, ist dank einer Verschalung jetzt nur noch der Rahmen sichtbar. Eine wichtige Veränderung, wie die Architekten finden: „Während die Balken sich einem früher eher aufdrängten und man sie fast schon erdulden musste, verleihen sie nun den Räumen (Wohnzimmer und Küche) eine harmonische Eleganz: Das Auge entspannt auf der Schönheit und Präsenz der Balken, die wie ein Bilderrahmen der Einfassung dienen.“ Im Hinblick auf die Farbe, behielt man der Wirkung halber die dunklen Töne der Balken bei, sie wurden lediglich matt lackiert.
Massiver Stein dient als Kulisse
Auch der offene Grundriss als solches wurde nicht verändert. Ziel der Architekten war es vielmehr, die vorhandenen Räume zu optimieren und ihnen gegebenenfalls neue Funktionen zuzuweisen, beispielsweise im neu gestalteten Bade - und Ankleidezimmer. Dabei wurden auch die bestehenden Materialien unter die Lupe genommen und bedarfsweise aufgewertet. So wurde der rote Parkettboden aus lackiertem, massivem Tropenholz geschliffen und die einzelnen Lackschichten abgetragen. Danach wurde er mit einer hellen Beize aus entsättigten Farbtönen umgefärbt, welche ihm einen unaufdringlichen Moiré-Effekt von vornehmer Zurückhaltung verlieh. Ein Kunstgriff mit spannenden Nebeneffekten: Der neu gestaltete Fußboden lässt nun den dunklen Ton der Balken hervortreten und nimmt zugleich spielerisch Bezug auf die Farbnuancen der Küchenmöbel (Ikea), die aus schwarz und braun lackiertem Holz bestehen. Zwei Regale im gleichen Farbton der Balken sowie hochwertige Griffe komplementieren den Look.
Um den Holzelementen in der Küche entgegenzuwirken, entschied sich das Architekten-Duo für eine Arbeitsplatte aus Feinsteinzeug, welches den Vorteil einer geringen Wasseraufnahme aufzeigt. Während der Stein in der Küche in einer hellen Optik beeindruckt, entschied man sich im Badezimmer für ein dunkleres Kolorit. Aus gutem Grund, wie die Designer erklären: „Das Badezimmer war klein und hatte eine geringe Deckenhöhe, da lag die Idee eines kavernenartigen Waschraums nahe. Also spielten wir mit den Charaktereigenschaften einer Höhle: viel Stein und Farbschattierungen in Schwarz, Anthrazit und Grau. Das Badezimmer sollte aussehen, als wäre es aus einem einzigen mineralischen Felsblock geschliffen.“ Um diesen Effekt zu vervollständigen, verzichteten die Designer im Badezimmer beim Bodenbelag auf die üblichen Eckleisten und zogen stattdessen abgeschrägte Kanten vor.
Antike Möbel wurden mit zeitgenössischen Stücken kombiniert, da der Besitzer eine Leidenschaft für Kunst, Architektur und Design hat. Die Mischung aus Holztönen, Schwarz und sehr blassem Grau verleiht dem schlichten Interieur eine angenehme Wärme.
© BCDF Studio
Ein Spiel mit Spiegeln und Licht
Das von inée gestaltete und mit schwarzem Harz beschichtete Badezimmerparkett im Fischgrätmuster wurde bis zum Ankleidezimmer durchgezogen: die beiden kleinen Räume erscheinen bei geöffneter Tür nun wie ein großer. Auch wurde das Ankleidezimmer vollständig mit Spiegeln ausgestattet, um das Licht des nach Süden ausgerichteten Fensters zu reflektieren und in den Eingangsbereich weiterzuleiten. „Es mag widersprüchlich klingen, aber manchmal bringt das Verkleiden eines Raumes in dunklen Farben das Licht viel mehr zur Geltung, als man es sich vorstellt. Auch deshalb haben wir das Bade- und Ankleidezimmer in anthrazitfarbenen Tönen gehalten“, so die Designer. Die restlichen Wände des Apartments sind in pure grey gekleidet, eine Kreation des Farbexperten Patrick Baty, welche sich je nach Lichteinfall stark verändert: Auf Sonne reagiert die Farbe in dem sie sich aufhellt; am Abend umhüllt sie die Räume in einer wärmeren Nuance.
Dimensionen, Materialien und Farben: gekonnt bedienten die Designer verschiedenste gestalterische Instrumente und schufen aus einem abgerundeten Konzept eine Raum-Inszenierung par excellence. Dies gelang auch dank der guten Zusammenarbeit mit dem Besitzer, wie das Architekten-Duo bekräftigt: „Es war eine interessante Co-Produktion, wahrscheinlich auch weil wir einen ziemlich ähnlichen Geschmack teilen. Er stimmte unseren Ideen zu, ohne zu zögern, sogar was die Auswahl der Möbelstücke betraf. Seine beeindruckende Kunstsammlung, wiederum, war eine ständige Inspirationsquelle für uns.“ Ein Austausch unter Experten.
Weitere Eindrücke aus der 45 Quadratmeter kleinen Wohnung:
Das Schlafzimmer im Zwischengeschoss ist durch ein Glasdach geschützt, das das Licht der Dachfenster nicht daran hindert, das Wohnzimmer zu beleuchten. Frisbi Hängeleuchten (Flos bei Dmlights).
© BCDF Studio
Die Treppe wurde als Kontrast zur grauen Farbe der Wände weiss gestrichen und vom Geländer befreit, was ausreicht, um sie hervorzuheben ... oder gar zu vergessen.
© bcdf studio
Im Schlafzimmer auf dem Zwischengeschoss mit geringer Deckenhöhe bewahrt der sichtbare Balken den Raum in der Höhe. Das Kopfteil des Bettes dient als Trennwand mit großen Stauräumen. Die Wände sind einheitlich in Pure Grey (Ressource Peintures) gekleidet.
© bcdf studio
Das Ankleidezimmer führt zum Badezimmer: Der mit Spiegeln und der Farbe Bleigrau (Ressource Peintures) ausgestattete Boden im Fischgrätmuster zieht sich von Raum zu Raum durch und vereinfacht die Lesbarkeit dieser beiden kleinen Module, die mit dunklen Nuancen, schwarzem Holz und einen starkem Stein bestechen.
© bcdf studio
Das Licht des Südfensters hebt alle Zeichnungen des Steins hervor, der mit dem in der Küche identisch ist, aber eine dunklere Nuance aufweist. Auch die Regale unter dem Waschtisch aus gebeiztem und lackiertem Eichenholz übernehmen die Codes der Küchenregale. Über dem Waschbecken (Hudson Reed) befindet sich ein Spiegel (Godmorgon).
© bcdf studio
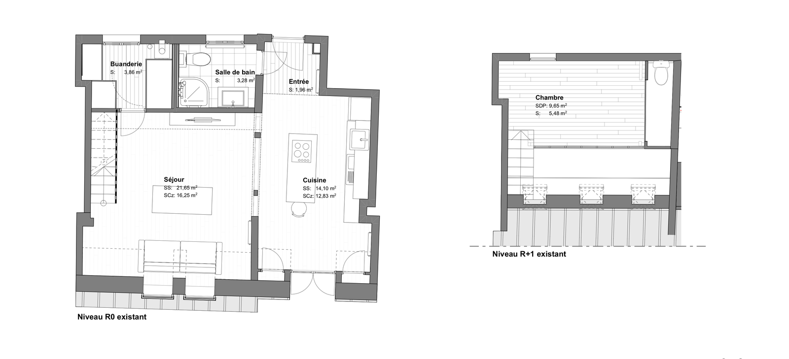
Der Grundriss der Wohnung vor der Renovierung.
Grundriss der Wohnung nach der Renovierung.
inee.archi
Zuerst erschienen bei AD France, adaptiert von Chantal Bufé.
客服
消息
收藏
下载
最近











