查看完整案例

收藏

下载
Wohnen auf kleinem Raum: Die Architekten Frères-Voirin gestalteten zwei kleine Wohneinheiten zum großzügig anmutenden Rückzugsort mit Landhaus-Flair – und das mitten in Paris!
Die Gelegenheit war günstig, und so kaufte die Eigentümerin zwei kleine, niedrige Einheiten in der vierten und letzten Etage eines Hauses von 1900 im Pariser Viertel Charonne-Bastille. Damals hatte sie noch keine Ahnung, was sie darüber, direkt unter dem Dach, finden würde. Als sie jedoch die abgehängte Decke einreißen ließ, kam ein weiterer, 1,50 Meter hoher Raum zum Vorschein. Die von ihr beauftragten Architekten, Pierre und François Voirin waren begeistert: „Die zusätzlich gewonnene Dachschräge war ein echtes Geschenk. Wir waren sicher, daraus etwas sehr sehr Schönes machen zu können.“ Dachfenster wurden eingebaut, die für viel Licht sorgen, und dann begann die Neustrukturierung.
Balkenlage und Fachwerk wurden vorsichtig frei gelegt und um eichene Elemente ergänzt: vom Parkett bis zum Bücherregal, das zugleich Trennwand ist. Die Konstruktion der beiden symmetrischen Türen im Bücherregal folgt den Fluchtlinien der Dachschrägen.
BCDF Studio
Ein Bücherregal als „magische“ Trennwand
Um auf der geringen rechteckigen Grundfläche ein Gefühl der Großzügigkeit zu schaffen, entwickelten die Architekten als Raumtrenner eine Bibliothekswand, die das Schlafzimmer und das Bad vom Wohnbereich abschirmt. „Damit haben wir die Idee eines versteckten Raums verwirklicht, obwohl die Türen in dem Regal nicht wirklich unsichtbar, sondern nur gut integriert sind.“ Hinter einer dieser unscheinbaren Türen, die durch ihre Symmetrie den Wohnraum weiter beruhigen, brachten sie das kleine WC unter; hinter der anderen befinden sich Schlafzimmer, Ankleide und ein Bad, das sich ganz im Stil einer Suite mit einem Vorhang abtrennen lässt. Überhaupt zeichnet der raffinierte Umgang mit Übergängen, das Verschmelzen von Möblierung und Architektur dieses Apartment aus und erinnert ein wenig an Pierre Chareau. Bereits in den 20er-Jahren des letzten Jahrhunderts hatte der französische Innenarchitekt und Möbeldesigner Pierre Chareau mit multifunktionalen Elementen und reduzierten, exquisiten Flachstahlmöbeln, die er häufig mit edlen Hölzern kombinierte, überrascht. Sein berühmtes Maison de Verre in Paris ist eine Architekturikone der Moderne: Er erweiterte 1931 ein klassisches Gebäude mit einem ultramodernen lichten Anbau.
Die Bibliothekswand reicht nicht ganz bis zur Decke, der Raum dazwischen ist verglast, damit Licht von oben einfallen kann. Die Tür auf der linken Seite führt zum Schlaf- und Badebereich. Tischlerarbeiten: Chabloz und Doffer.
BCDF Studio
Offener Raum von unerwarteter Tiefe
Auf der anderen Seite der „magischen“ Bibliothekswand verteilten die Frères Voirin den Essbereich mit offener Küche, der auch als Entree dient, den Wohn- sowie den Arbeitsbereich ohne Trennwände in dem nun entstandenen rechteckigen Raum. Dabei legten sie großen Wert darauf, die vorhandenen Elemente zu integrieren: die Farbe der alten sechseckigen Tomette-Fliesen wird vom Boden aus Eiche aufgenommen, die freigelegten Fachwerkbalken fungieren als lichte Raumteiler und verleihen dem Wohnen auf kleinem Raum eine unerwartete Tiefe und einen Châlet-artigen Charakter.
Ein Châlet unterm Dach
Was die Materialien und Farben angeht, blieben Pierre und François Voirin ihrem Motto treu: „Die Orte geben uns Hinweise, wichtig ist, dass wir ihnen folgen.“ Hier ist das schräge Dach eine erste Inspirationsquelle, das frei gelegte Fachwerk und das Gebälk eine zweite. Die dadurch angedeutete Chalet-Atmosphäre entwickelten die Architekten weiter, mit viel Holz und reduzierter Farbgebung. Das Eichenholz erinnert an das Fachwerk und die Balkenlage, die den beiden besonders am Herzen lagen. „Die Elemente, die wir in einem Projekt vorfinden, leiten uns ganz unbewusst. Wenn man den Charakter bewahren möchte, muss man sie nutzen, sich von ihnen inspirieren lassen und um sie herum bauen. Deshalb war es uns absolut unmöglich, stark bearbeitetes Holz zu verwenden, weil es viel zu glatt oder zu lackiert wäre.“ Die Wärme und den modernen Landhausstil der Räume verstärkten die Brüder Voirin durch viele Details weiter, beispielsweise durch die braunen Sessel, die sie bei Drouot fanden, eine kleine gelbe Leuchte, die sie auf dem Flohmarkt in Vanves entdeckten, oder die Couchtischplatte aus Marmor, die liebevoll restauriert wurde – ein ehrliches, einzigartiges Stück, das den Grundgedanken dieses Umbaus widerspiegelt.
Im Arbeitsbereich: stark reduzierte Farben, es wirken nur das Holz und die Bücher in der Bibliothek. Vintage-Sessel: Drouot. Kleine gelbe Leuchte vom Flohmarkt in Vanves.
BCDF Studio
Inmitten der Bücher führt eine Tür ins Schlafzimmer, wie in einen geheimen Raum. Dachfenster sorgen auch dort für Tageslicht.
BCDF Studio
Das Bad ist in das Schlafzimmer integriert, separiert wird es mit einem Vorhang. Spiegel verkleiden die Wände und vergrößern in einem eleganten Materialmix den Raum optisch. Waschbecken: „Collection 30“ von Duravit.
BCDF Studio
Das stark abgeschrägte Dach des Wohnbereichs sorgt für eine intime Atmosphäre. Das Eichenparkett entspricht dem Farbton der originalen Tomette-Fliesen. Couchtisch: Carhel Paris.
BCDF Studio
Die Fachwerkelemente fungieren als Raumteiler. Die Wohnung hat verschiedene Ebenen, wie hier zwischen der Küche und dem Arbeitsbereich mit Bibliothek.
BCDF Studio
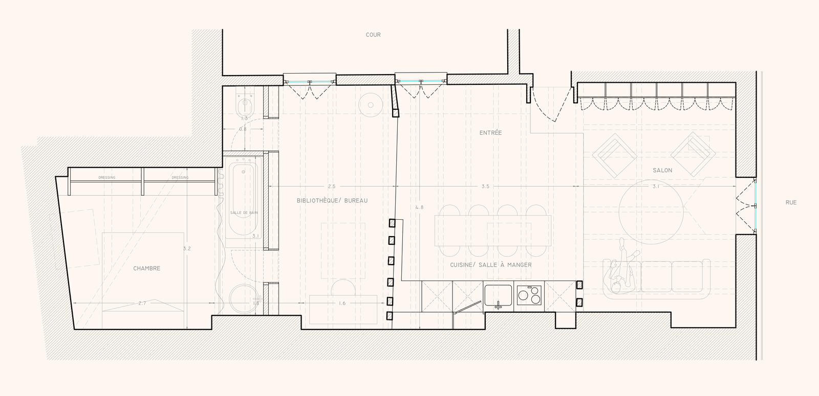
Der Grundriss der Wohnung nach der Renovierung.
© Frères Voirin
Im Original erschienen bei AD France, übersetzt und adaptiert von Petra Leitner.
客服
消息
收藏
下载
最近











