查看完整案例

收藏

下载
Kleine Wohnung im Zentrum von Paris: Das Architekturbüro Atelier Noun zeigt, wie voluminös 28 Quadratmeter wirken können – mit der optimalen Aufteilung.
Die Rue Montorgueil in Paris ist gesäumt von Restaurants, Cafés, Bäckereien, Fisch- und Käsegeschäften, Weinhandlungen, Blumenläden und mehr. Genau hier widmete sich das Architekturbüro Atelier Noun einer kleinen Wohnung mit 28 Quadratmetern, die den vorhandenen Platz so multifunktional und vorteilhaft nutzt, dass sie viel voluminöser wirkt, als sie eigentlich ist.
Vor den drei Fenstern verbindet ein breites Bord die Küche mit dem Wohnzimmer. Es schafft eine durchgehende Linie und kann als Arbeitsbereich dienen.
BCDF Studio
Ein genialer Kunstgriff: das Zwischengeschoss
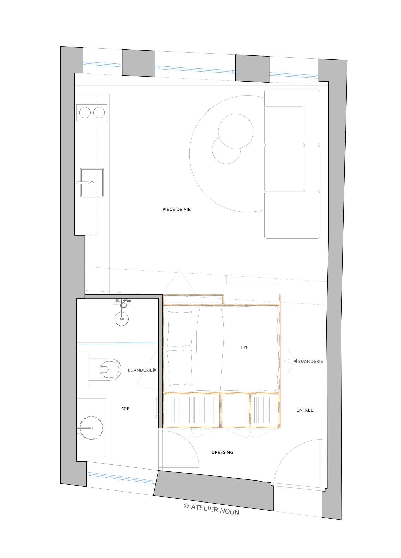
„Diese kleine Wohnung in der Fußgängerzone von Montorgueil ist ein wahres Juwel“, sagt Laura Markman, Architektin und Gründerin von Atelier Noun. „Ich habe meine Renovierung an der beruhigenden Atmosphäre des grünen, baumgesäumten Hofes orientiert.“ Ein Juwel ist die Wohnung gewiss, doch stellten sich auch einige Herausforderungen. Die Architektin entschied sich, das kleine Apartment zu entkernen und mit einem (fast) weißen Blatt Papier zu beginnen. Eine Hauptrolle sollte bei ihrer Lösung ein Zwischengeschoss spielen – damit lässt sich viel Funktionalität auf wenig Raum unterbringen (Küche, Schlafplatz, Stauraum, Waschküche). Auch die drei Fenster, die nach Süden ausgerichtet sind, nahm sie in den Blick und überlegte sich genau, „wie man so viel Licht wie möglich in den hinteren Bereich der Wohnung lenken könnte.“
Das Badezimmer wurde letztendlich im hinteren Teil des Studios abgetrennt, denn ein kleines Fenster sorgt dort für die notwendige Beleuchtung und Belüftung. Nachdem diese Entscheidung gefallen war, errichtete die Architektin in der Mitte des frei gewordenen Hauptraums ein Modul „wie ein Monument“, das ebenjenes Zwischengeschoss in Form eines Schlafareals enthält; ein Sichtschutz in Holz-Optik sorgt für Privatsphäre. Verschiedene weitere Funktionen wurden um das „Schlafzimmer“ herum organisiert. So ist im Flur, der zum Badezimmer führt, die Ankleide versteckt; der bewusst offen gelassene Bereich vor den Fenstern wird zur allgemeinen Wohnfläche, in die seitlich die Küche integriert ist.
Die Schlaf-Ebene berührt die Decke nicht, sodass das Tageslicht bis in den hinteren Teil des Studios gelangt. Die beiden Stufen zum Bett sind mobil und dienen als Sitzgelegenheit sowie als Schreib- oder Beistelltisch.
BCDF Studio
Mehrere Funktionen in einer: Wohnung einrichten nach dem Schweizer-Taschenmesser-Prinzip
Der Holz-Monolith verfügt außerdem über reichlich Stauraum unterhalb der Schlafzimmerkonstruktion. Die beiden Stufen, die zum Bett hinaufführen, lassen sich je nach Bedarf untereinander verstauen, als Sitzgelegenheit und Mini-Schreibtisch nutzen – oder aber man verwendet sie als mobile Accessoires, verrückt sie ganz nach Belieben und bricht dadurch die Raumaufteilung bewusst auf. Hinter den Falttüren des integrierten Schranks verbirgt sich oben ein flacher TV-Screen; unterhalb des Betts liegt dahinter viel Stauraum, für Bücher und andere kleine und große Schätze. Im Badezimmer führt eine versteckte Tür zur Waschmaschine, die ebenfalls unter dem Bett verstaut ist. Man sieht also: Hier wird definitiv kein einziger Quadratmeter verschwendet.
Die Küche (von Ikea) erstreckt sich über die gesamte Wand und greift sowohl die Farbe des Bodens als auch der Decke auf. Die Armatur (Villeroy & Boch) und die Beschläge in glänzendem Messing kontrastieren mit der roh belassenen Wand.
BCDF Studio
Clever genutzt: spannender Materialmix auf 28 Quadratmeter Fläche
Die Wohnung ist und bleibt natürlich klein. Doch das zentrale Möbel-Element aus hellem, skandinavisch anmutendem Laminat in Eschenoptik lässt sie nun deutlich voluminöser wirken als zuvor. Der Boden des Apartments – großformatige graue Fliesen, die an gewachsten Beton erinnern – greift den Look der unverputzten Wand auf, die hinter der Küche hervorblitzt. Der Boden scheint nahezu nahtlos in deren Unterzeile überzugehen, während der geflieste Spritzschutz und die Oberschränke das Weiß der Decke übernehmen. „Das lässt die Küche, die im Verhältnis zum Gesamtvolumen ziemlich groß ist, mit dem Raum verschmelzen.“ Ein tragender Deckenbalken – eine schöne Entdeckung, die man erst während der Renovierung machte und der das Studio einmal quer durchschneidet – bringt seine besondere Textur in den Raum ein, genau so wie die teilweise roh belassene Wand, die marmorierte Arbeitsplatte der Küche und die Fliesen darüber, deren Fischgrätmuster sich ausgehend vom Spülplatz in zwei Richtungen ausbreitet. „Ich habe die Wohnung bewusst in einem neutralen, eher weichen Design gehalten. Die Möbel ermöglichen zudem Flexibilität und Veränderung, ganz nach Lust und Laune ...“ Inspiriert von den graublauen und senffarbenen Akzenten der steinernen Wand, passen sich Tisch und Sofa farblich dem Hintergrund an. Der Wasserhahn und die Beschläge aus golden schimmerndem Messing verleihen der Wohnung zusätzlich Persönlichkeit und Individualität. Was letztendlich ganz leicht und lässig aussieht, ist das Ergebnis ausgeklügelter Planung.
Kleine Wohnung ganz groß: Diese Details sorgen für Geräumigkeit
Hinter der Sitzecke sorgt eine Steinwand für starke Textur, das Samtsofa (von La Redoute) setzt einen sanften Gegenakzent.
BCDF Studio
Der Mezzanin-Monolith aus hellem Eschenlaminat bringt Wärme und Weichheit in die Wohnung – und bietet zudem noch reichlich Stauraum.
BCDF Studio
Die 1,40 m breite Schlafkabine verfügt über ein Regal, Nachtlichter und Steckdosen. Das helle Holz wird mit weiß-grauer Bettwäsche und einem Kissen von Maison Sarah Lavoine kombiniert – so entsteht ein gemütlicher Kokon.
BCDF Studio
Ein Korridor führt zum Badezimmer und beherbergt den Ankleidebereich, der an der Seite des zentralen Möbel-Elements verspiegelt ist.
BCDF Studio
Das Bad (mit Waschtisch von Tikamoon) wird über ein eigenes Fenster belüftet und führt das dezente Colourblocking der Küche fort.
BCDF Studio
Grundriss vor der Renovierung.
Grundriss nach der Renovierung.
Zuerst erschienen auf AD France, übersetzt von Anna-Lena Reith.
客服
消息
收藏
下载
最近













