查看完整案例

收藏

下载
Atelier Steve zeigt, wie man in Paris in einem Studentenappartement auf 22 Quadratmetern leben kann, ohne auf etwas verzichten zu müssen.
Gleich gegenüber der Notre-Dame de Paris, in der Rue de la Bûcherie, gestaltete Atelier Steve ein schmuckes 22 Quadratmeter kleines Studentenappartement. Nicht aber ohne Hürden, denn Küche und Wohnraum werden durch einen schmalen, langen Flur geteilt, der die Wohnfläche noch mal deutlich minimiert. „Der Raum war zunächst eher etwas charakterlos, vieles musste renoviert werden. Als Allererstes wollten wir am Komfort der Wohnung arbeiten“, erklärt die Atelier-Steve-Architektin Pauline Borgia. In dem kleinen Mini-Appartement sollte Platz für eine große Küche, ein Bad, einen Schlaf- und Arbeitsbereich und einen üppigen Kleiderschrank sein – alles aber bloß nicht zu klein. Dafür sorgte sie für viel Stauraum, um den Wohnraum zu vergrößern, und setzte auf maßangefertigte Stücke wie den Kleiderschrank und das Regal, das mit seiner kurvigen Formgebung den Raum interessanter wirken lässt. Der L-förmige Grundriss schien zu Beginn etwas einengend, aber lediglich der Flur und das Zwischengeschoss konnten leicht angepasst werden. Insgesamt spielte Atelier Steve mit drei Materialien: Gips, gebeizter Eiche und grün gewachstem Beton, der sich vom Flur über das Bad bis in die Küche ausbreitet. Dort wird das satte Moosgrün mit einem Mobiliar aus dunkel gebeizter Eiche kombiniert.
Die kurvigen Regale formen den gradlinigen Flur.
BCDF studio
Verschiedene Formen machen ein kleines Appartement interessanter
Ganz subtil wird in jedem Bereich des Appartements eine neue Textur oder ein anderer Ton hinzugefügt: „Eigentlich versucht man immer eine Einheit zu bilden und nicht zu viele Materialien zu mischen. Hier ist es anders, aber dennoch ist jeder Raum miteinander verbunden“, erklärt Borgia. Ein weiteres Credo des Teams von Atelier Steve: Formen, Formen, Formen! Dafür brachten sie beispielsweise mit dem halbrunden Tisch oder dem geschwungenen Regal im Wohnbereich die nötige Weichheit in das sonst so eckig geschnittene Appartement.
Über den Schränken mit den Eichentüren liegt das Zwischengeschoss, hier befindet sich der Schlafbereich des Appartements.
© BCDF studio
In der Küche kommt nicht ansatzweise das Gefühl einer kleinen Mini-Studentenküche auf. „Wir hätten sie verkleinern können, aber es soll ja eine Wohnung sein, in der man täglich lebt“, findet Borgia. Die Schränke im Wohnbereich wirken durch die Gipsinstallation wie Einbauschränke, als hätte man die Wände dicker gemacht. Die teilweise antiquarischen Möbelstücke bilden mit dem samtig wirkenden, gewachsten Betonboden, der hellen und dunklen Eiche einen gelungenen Mix. „Man glaubt immer, man müsse einen kleinen Raum so simpel wie möglich gestalten, doch das stimmt überhaupt nicht. Im Gegenteil, je mehr man in ihn investiert, desto optimierter und größer erscheint er. Man muss ihn unterteilen und viele Module in einem kleinen Modul schaffen.“
Zuerst erschienen auf AD Frankreich, übersetzt von Mailin Sophie Zieser.
Die Küche haben die Gestalter so clever geplant, dass selbst eine Waschmaschine noch Platz hat. Der geschwungene Tisch aus dunkel gebeizter Eiche ist eine Maßanfertigung, durch die Flügeltüren gelangt man gleich auf die angrenzende Terrasse.
Das Badezimmer ist vollständig mit grünem Beton verkleidet.
© BCDF Studio
Der Hauptraum gibt mit einer sorgfältigen Auswahl an Texturen wie heller Eiche, viel Weiß und grün gewachstem Beton den Ton an. Farben und Materialien wechseln sich hier ab, um den Raum zu unterteilen und einen Weg zu schaffen, der von einem Raum zum anderen führt. Der geschwungene Tisch greift die Form der Regale auf.
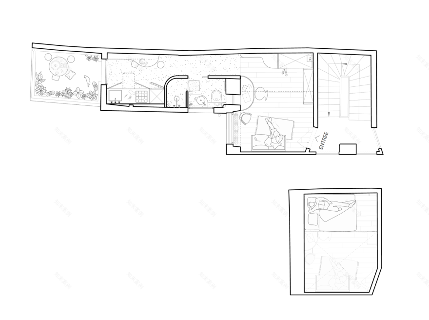
Der Grundriss der Wohnung.
© Studio Steve
客服
消息
收藏
下载
最近









