知末
知末
创作上传
VIP
收藏下载
登录 | 注册有礼

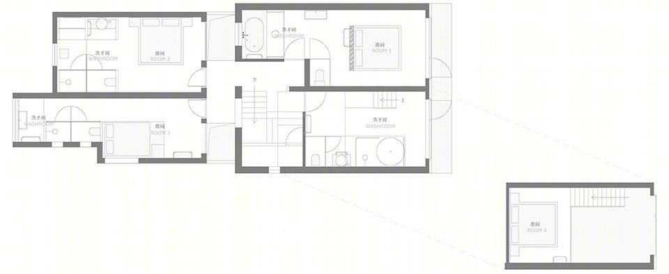
杭州“别止”“白格”民宿 | 共享交流的空间设计

2017/11/29 12:05:13
查看完整案例
微信扫一扫
收藏
下载
“别止”与 “白格”是两处在时间上前后处理的民宿项目,移家庭和公共社交空间为主体,六个私密客房在使用时,能够在家庭式的客厅和咖啡厅及庭院里享受人与人之间的旅行及生活经验的交流
杭州“别止”“白格”民宿 | 共享交流的空间设计-1
杭州“别止”“白格”民宿 | 共享交流的空间设计-2
杭州“别止”“白格”民宿 | 共享交流的空间设计-3
杭州“别止”“白格”民宿 | 共享交流的空间设计-4
杭州“别止”“白格”民宿 | 共享交流的空间设计-5
杭州“别止”“白格”民宿 | 共享交流的空间设计-6
杭州“别止”“白格”民宿 | 共享交流的空间设计-7
杭州“别止”“白格”民宿 | 共享交流的空间设计-8
杭州“别止”“白格”民宿 | 共享交流的空间设计-9
杭州“别止”“白格”民宿 | 共享交流的空间设计-10
杭州“别止”“白格”民宿 | 共享交流的空间设计-11
杭州“别止”“白格”民宿 | 共享交流的空间设计-12
杭州“别止”“白格”民宿 | 共享交流的空间设计-13
杭州“别止”“白格”民宿 | 共享交流的空间设计-14
杭州“别止”“白格”民宿 | 共享交流的空间设计-15
杭州“别止”“白格”民宿 | 共享交流的空间设计-16
杭州“别止”“白格”民宿 | 共享交流的空间设计-17
杭州“别止”“白格”民宿 | 共享交流的空间设计-18
杭州“别止”“白格”民宿 | 共享交流的空间设计-19
杭州“别止”“白格”民宿 | 共享交流的空间设计-20
杭州“别止”“白格”民宿 | 共享交流的空间设计-21
杭州“别止”“白格”民宿 | 共享交流的空间设计-22
杭州“别止”“白格”民宿 | 共享交流的空间设计-23
杭州“别止”“白格”民宿 | 共享交流的空间设计-24
杭州“别止”“白格”民宿 | 共享交流的空间设计-25
杭州“别止”“白格”民宿 | 共享交流的空间设计-26
杭州“别止”“白格”民宿 | 共享交流的空间设计-27
杭州“别止”“白格”民宿 | 共享交流的空间设计-28
杭州“别止”“白格”民宿 | 共享交流的空间设计-29
杭州“别止”“白格”民宿 | 共享交流的空间设计-30
杭州“别止”“白格”民宿 | 共享交流的空间设计-31
杭州“别止”“白格”民宿 | 共享交流的空间设计-32
杭州“别止”“白格”民宿 | 共享交流的空间设计-33
杭州“别止”“白格”民宿 | 共享交流的空间设计-34
杭州“别止”“白格”民宿 | 共享交流的空间设计-35
杭州“别止”“白格”民宿 | 共享交流的空间设计-36
杭州“别止”“白格”民宿 | 共享交流的空间设计-37
杭州“别止”“白格”民宿 | 共享交流的空间设计-38
杭州“别止”“白格”民宿 | 共享交流的空间设计-39
杭州“别止”“白格”民宿 | 共享交流的空间设计-40
杭州“别止”“白格”民宿 | 共享交流的空间设计-41
杭州“别止”“白格”民宿 | 共享交流的空间设计-42
杭州“别止”“白格”民宿 | 共享交流的空间设计-43
杭州“别止”“白格”民宿 | 共享交流的空间设计-44
杭州“别止”“白格”民宿 | 共享交流的空间设计-45
杭州“别止”“白格”民宿 | 共享交流的空间设计-46
杭州“别止”“白格”民宿 | 共享交流的空间设计-47
杭州“别止”“白格”民宿 | 共享交流的空间设计-48
杭州“别止”“白格”民宿 | 共享交流的空间设计-49
杭州“别止”“白格”民宿 | 共享交流的空间设计-50
杭州“别止”“白格”民宿 | 共享交流的空间设计-51
杭州“别止”“白格”民宿 | 共享交流的空间设计-52
杭州“别止”“白格”民宿 | 共享交流的空间设计-53
杭州“别止”“白格”民宿 | 共享交流的空间设计-54
杭州“别止”“白格”民宿 | 共享交流的空间设计-55
杭州“别止”“白格”民宿 | 共享交流的空间设计-56
杭州“别止”“白格”民宿 | 共享交流的空间设计-57
杭州“别止”“白格”民宿 | 共享交流的空间设计-58
杭州“别止”“白格”民宿 | 共享交流的空间设计-59
杭州“别止”“白格”民宿 | 共享交流的空间设计-60
杭州“别止”“白格”民宿 | 共享交流的空间设计-61
南京喵熊网络科技有限公司 苏ICP备18050492号-4知末 © 2018—2020 . All photos and trademark graphics are copyrighted by their owners.增值电信业务经营许可证(ICP)苏B2-20201444苏公网安备 32011302321234号
客服
消息
收藏
下载
最近