查看完整案例


收藏

下载
△双重四合院民居一层,展卖空间
△穿过水院看向讲台
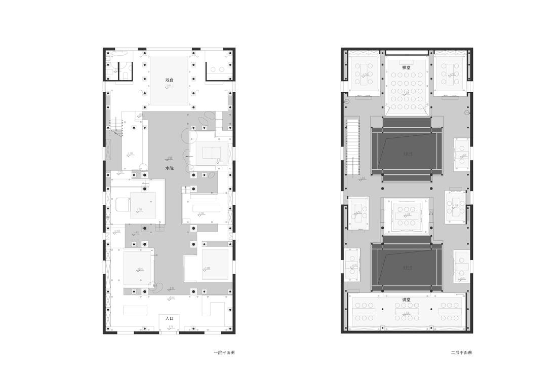
整体上,以宗祠为核心,统领其余三幢。宗祠延续其历史上的宗法制度语义系统,是家族做重大决定的地方,功能为议事厅与办公室,其余三幢为衣食用学(服饰、饮食、生活用品、学习)生活方式体验的空间,花厅为素食火锅空间、三合院民居为学习交流空间、双重四合院民居一楼由服饰与花艺混合的展卖空间、生活用品展卖空间、戏曲表演与大讲堂空间构成;二楼由10个大小、环境不一的私人茶室构成,功能多变,可以品茶、品香、各种规模的培训、团队活动等。
△轻质、白色的钢结构系统体现虚无飘渺的空间氛围
△一层空间细部
外部空间的设计以庭院花海及建筑室内与室外消除界限为特点。庭院花海呼应“花境”,在全是绿植与水域的西溪湿地形成一道独特的风景线,也为使用者提供四季变换的景观。室内营造的沿水楼阁及类似湿地传统园林的空间意向,将内外进行了延伸,让使用者破除室内外界限的感受,将四幢建筑理解为一个“整体世界”。素食火锅空间尽可能的展示了原有的传统建筑架构,吊灯的排布预示了三个功能区域的划分。古建筑的结构因为被整体显露,火锅沸腾的雾气在高耸的梁柱间环绕。
△房屋最原始的样子在现代技术下的架构形式
“淼森花境”:一个生活之道发生于其中的“幻境”
“淼森花境”,是以禅宗思想为启示,衍化而成的一个打造灵性生活方式的品牌。因此,设计的开端,便起于对一个可以生活于其中的“禅宗世界”的想象。中国禅宗从六祖惠能开始,修行方式从源自印度佛教的“渐悟式”转向了“顿悟式”,打破了行为的束缚,使得实证可以发生在生活的方方面面,可以说是中国禅宗的一次大变革,追其究竟,是受了道家“自然”文化的影响,因此,也可以看到,由于苦行及自律的束缚,日本的“禅宗”枯山水庭园展现出的是一种静止、无机、在旁观望的生活状态,而中国园林则更加灵动、充满生机和强调游走于其中。
△白色钢结构楼梯
综上,我们找到了一个最接近想象中的今日中国禅宗世界的词汇:“太虚幻境”,一个引导人们思考世界本源与回归心性的虚幻神异的感官式场所,一个生活之道发生于其中的“幻境”,也是“淼森花境”在词意传达上想要呈现的境。这个“幻境”,是“似与不似”的中国传统哲学、美学的一个虚化空间模型,也是中国禅宗世界的一个实证思考模型。“淼森花境”的空间形式的语言由两套并行的系统及其衍变构成:一是世界架构系统之简化与衍化;二是生活构件系统之拆解与重构。
△楼梯细部
世界架构的天(屋顶)、地(基座)、人(屋架)三重结构简化为现代技术下不可再简化的上下水平板片及四根垂直柱子,这也是对柯布西耶现代建筑“多米诺体系”的一个回应,但不同的是,去除了垂直交通系统和厚重的混凝土材料,取而代之的是轻质、白色的钢结构系统,以体现其虚无飘渺的空间氛围。这个便是房屋最原始的样子在现代技术下的架构形式,形式的简化与物性的简化都象征着对世界本质的提示,剩余的是一个少之不能少的唯一。然这个唯一的个体则可以通过变形、叠加、合并、成群从而产生一系列衍化,就如你所见的世界,纷繁却源于那最简单的开始,最终形成一套不断重复又变化多端的架构系统,让观者在“似与不似”之中反思与寻找本质。
△双重四合院民居二层空间概览
△双重四合院民居二层私人茶室
“淼森花境”是一个生活的“幻境”,其生活方式就是在这样的一个空间模型中展开。世界的架构与我们身边之物都是生活不可分割的部分,是我们生活的环境与依托。花喻人生,如玫瑰行走于尘世,如百合绽放于孤境,如莲守清净于繁华…三朵花象征人生的三个层次,在“似与不似”之间,到达的那个彼岸便是答案。
△从茶室看一层讲台
这个空间形式语言是“淼森花境”的一个符号,这个符号这一次是和古建筑对话,未来可能会和现代建筑对话。两者各自独立存在,古建筑强调其物性的鲜明:木屋架的时间感,水意象的大理石地面,和封闭但存留一层浅水的天井,在阳光下将水的波纹映射在屋内,山墙面尽可能的打开,将侧面小径中的密竹映照在室内。新的空间语言模型强调其现代与非物性、抽象与轻盈感,好似亭台架于湖上,楼阁悬于空中,人们游际与驻留在“似与不似之间”。两者既不同,但又出奇的相似,既是传统与现代的对话,也是具象与抽象的对话,是自然与心性的对话,是此岸与彼岸的对话。
△二层空间细部
反观“淼森花境”的“淼森”,“淼”——是水,是水的变体-云、雾、烟,是横向板片在不同纬度重复而呈现的云雾缭绕的意和境,“森”——是林,是纵向柱子在不同维度重复而呈现的密林深深的意和境,“淼森之境”就是这种对自然“好似”的想象。
△花厅外观
△花厅。素食火锅餐厅
△吧台细部
生活构件既包括门、窗、楼梯、栏杆、墙、板壁等固定的建筑围护之物,也包括桌、椅、屏风、灯、帘等可移动家具,又包括桌面之上杯、壶、笔、瓶、石、花等陈设之器,此三类构成生活不同层级之物,是我们在生活中体验实证的媒介,通过将其拆解,其个体的本质与意义将会从生活中显现出来,这里所指的生活构件并非老物件,而是在现代技术下,简化后保留其本质的物件,再通过不同位置的摆放与组合进行重构,虽已不是完整的建筑,但其构成物的在场仍然可以带来整体的再回归,在这些“似与不似”的虚化的生活构件中体验、反思我们的生活世界,重构心中的理想生活。
△轴测图
△平面图
项目名称:淼森花境室内设计项目
建造地点:浙江省杭州市西溪湿地洪园
室内设计:究境建筑设计事务所
主案设计师:赵迦
参与团队:董莳,JOSEPHINE X WYATT,陈艺洲等
结构设计:杭州宝业建筑设计院
建设规模:1200 m²
设计时间:2017.9
摄影:Alexander Wang
客服
消息
收藏
下载
最近



























