查看完整案例


收藏

下载
纯白嵌入
融合共生
成都作为川派艺术的高地,上世纪末,何多苓、周春芽、张晓刚等一批杰出的艺术家在这里崭露头角,玉林路则成为当代艺术家们的聚集之所,先锋的文艺、时尚的生活方式在此处萌芽。
As a hub of Sichuan-style art, Chengdu has witnessed a group of outstanding artists such as He Duoling, Zhou Chunya, and Zhang Xiaogang emerge at the end of the last century. Yulin Road, a gathering place for contemporary artists, has bred avant-garde artistic and fashionable lifestyles.
上图:城市关系 下图:川流不息 ©苏圣亮
岁月艺术馆作为本土文化集群的一部分,新馆选址该片区芳草西街一栋 80 年代老写字楼,DA INTEGRATING 受邀为其打造全新艺术空间,将原展厅 1500 平米精简至 400 平米。
As a part of the local cultural cluster, SUIYUE ART finds its new location in an old office building in the 1980s on Fangcao West Street.DA INTEGRATING created a brand new art space reduced to 400 square meters from the original 1,500-square-meter gallery.
改造前 ©岁月艺术馆
基于场地柱体多、通道长等限制性条件,设计师以四川“竹”破土而生的概念为起点,以极简的处理手法,使新的空间从旧建筑中生长出来。
Considering the unfavorable conditions of too many columns and too long passages in the project site, the designers proposed the concept of "bamboo" emerging from the ground to make the new space grow from the old building through a minimalist approach.
01新旧交融,解构重组
A blending of old and new, deconstruction and reorganization
建筑立面灵感来自“包裹”艺术家 Christo and Jeanne-Claude,旧建筑与纯白敦厚的体块融合,雕刻出岁月的质感。设计尊重周边环境,最大程度上与城市社区融合共生,门洞入口犹如一个框景,时刻记录着成都生活里的烟火气。
Inspired by the artworks of the artists Christo and Jeanne Claude, the pure white facade blends with the old building to sculpt the texture of time. As a homage to the surrounding environment, the design integrates into the city and coexists with the community. Like an enframed scenery, the entrance constantly records the everyday life in Chengdu.
与社区周围 ©苏圣亮
改造概念©DA INTEGRATING
上图:互动 中图:晨曦光影 下图:岁月痕迹
©苏圣亮
视界之外 ©苏圣亮
冷暖交错,精神性空间 ©苏圣亮
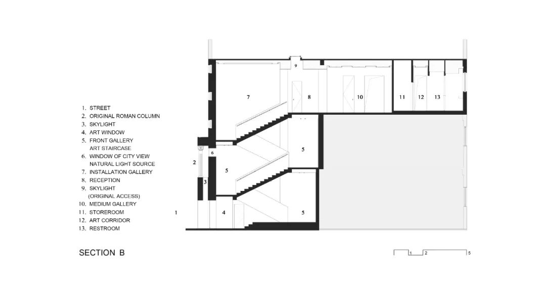
冗长的通道化为一场趣味性的“艺术观览之旅”。
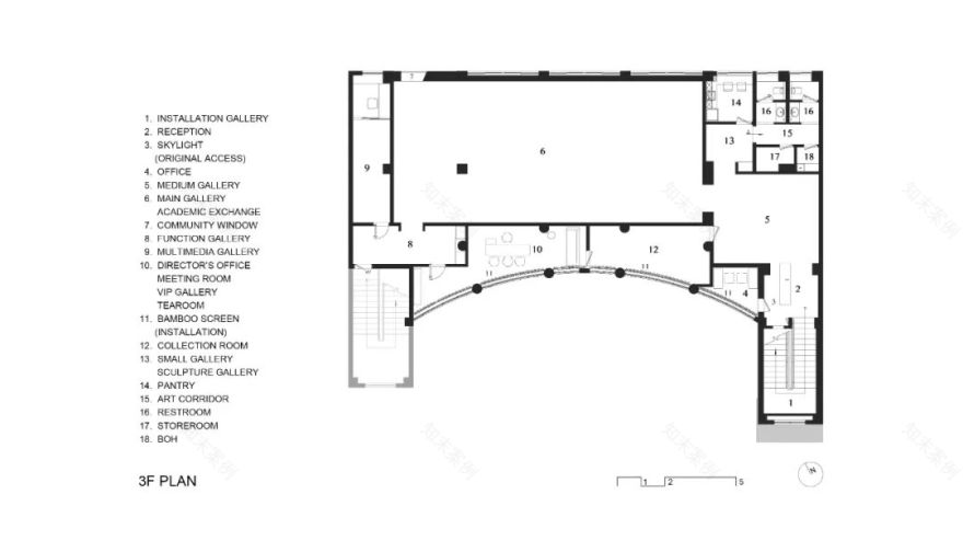
在动线的规划上,一层作为橱窗艺术展示,二层设置成阶梯式艺术展厅,三层则是装置艺术展厅。
“竹节”元素成为主导性的语言贯穿始终,有节奏地分布在通道、灯光等细节中。
The long passageway becomes a joyful art gallery tour after renovation. Regarding the planning of circulation, the display window art gallery is on the ground floor, the stepped art gallery is on the second floor, and the installation gallery is on the third floor. The theme of "bamboo stem" went through the entire space, rhythmically distributed in the details in the passageway and lighting.
上图:空间转换 下图:一丝阳光,接待区 ©苏圣亮
02介入延伸,包容多元
Intervening and extending,
inclusive and diversified
设计师探索艺术空间场域的无限可能,展厅部分以穿插、连接的手法构建流线布局,原始柱体消隐在空间中。洞口成为连接环境和自然的媒介,将内部空间无限延伸,四季的光线、飞鸟的鸣叫声在空间中流转。
By exploring the infinite possibilities of the art space, the designers arranged the layout through interspersion and connection to dissolve the original columns. As a medium connecting the environment and nature,the openings in the wall extend the internal space infinitely, introducing sunshine of the four seasons and birdsong into the interior.
在处理灯光与长椅、柱体及展品这四者的关系上,设计师经过多次考量和推敲。竖向片光在形态上延续竹节理念,以严谨的间距和比例实现了功能上的平衡和视觉上的艺术美感。
To organize the relationship between lighting, benches, columns, and exhibits, the design team extended the concept of the bamboo stem in the vertical sheet-like lighting after careful consideration, achieving the balance of functionality and aesthetics with strict spacing and proportion.
功能性的管线被规划隐藏于天花之上,精心排布的天花轨道与灯片结合,为布展预留了更多可能性,无论是中国传统艺术,抑或当代艺术创作都可在此相得益彰。
The wires and pipes hide above the ceiling, where the ceiling track is combined with the lighting skillfully, leaving more possibilities for the exhibition, making traditional Chinese art complement contemporary art creations.
木色地板打破了艺术馆的高冷印象,白色长椅则为来访者的亲子交流、观赏休憩提供驻留时刻。
The wood floor breaks the cold stereotype of an art gallery, while the white bench provides a place for parent-child communication, viewing, and rest.
建构分析©
DA INTEGRATING
空间概念©
DA INTEGRATING
主展墙,主展厅©苏圣亮
翁凯旋
《仙女山系列 8》,2008 年
布面油画
150 x 240 厘米
03 自然序列,光影朦胧 Natural sequence, hazy light and shadow
馆长办公室延伸为收藏展厅、VIP 接待区、茶室等多功能重叠的空间。
竹片屏风装置灵感源自中国水彩中漫延与朦胧的创作手法,以隐约含蓄的方式表达内外空间的虚实变化。在绿色玻璃的映照下,流动渐变的光影在空间中弥散开来。
The curator’s office is a mix-use room serving as a collection gallery, VIP reception area, and tea room.
The bamboo screen installation draws inspiration from the hazy and transparent techniques of Chinese watercolor paintings, expressing the imaginary-real changes in the entire spaces subtly.
As light casts through the green glass, the space is infused with flowing and changing light and shadow.
作为运营超过十年的本土资深艺术平台,岁月艺术馆将艺术嵌入社区,将持续发挥空间的公共文化属性,讲述成都生生不息的艺术生活。
As a local senior art platform operating for over a decade, SUIYUE ART has integrated art into the community,continuing to specialize in the public culture field and telling the story of eternal art life in Chengdu.
项目图纸
Project Information
项目名称| 成都岁月艺术馆
项目地址| 四川成都高新区芳草西二街 19 号
项目面积| 400㎡
设计周期| 2021 年 4 月至 5 月
完工时间| 2023 年 1 月 6 日
设计范围| 建筑改造与室内设计
设计公司| DA INTEGRATING LIMITED
灯光设计| 魏展文
设计总监| 魏展文
设计团队| 欧烨桦,周凡,黄永灿,冯雪银
施工图深化设计| 鲁工移山(深圳)深化设计有限公司
施工单位| 四川省润之居建筑装饰工程有限公司
主要材质| 乳胶漆,木地板,清水混泥土,超白玻璃,大理石,A 级软膜
灯具| 茂域照明
作品艺术家| 何多苓,翁凯旋,杨冕,陈文波,魏彪(雕塑),陈曦,李倩茹
茶器| 叁舍 (Sansher)
模特|艺术家袁晓天
摄影师| 苏圣亮
AboutDesigner
魏展文先生
MrNgaiChinman
创始人&设计总监
伦敦艺术大学
魏展文先生主张“以简至豐”,致力于极简实用主义与艺术空间的研究与探索,并延伸到我们的生活与设计实践中,引用“光”与自然生态,创造空间的舒适、生长、隽永。
About Company
DA INTEGRATING 是一家专注当代艺术跨界的空间创意公司,由魏展文先生 2013 创立于伦敦,“D”(design)代表设计与实用主义,“A”(Art)意为艺术,将实用主义与当代艺术融合在生活的缝隙之中是魏展文先生创办 DA 的初心。迄今,已完成包括深圳 e 当代美术馆、三亚当代艺术馆、深圳 KENNAXU 画廊、成都岁月艺术馆、腾冲启迪当代艺术馆等当代艺术空间。
客服
消息
收藏
下载
最近



















































