查看完整案例


收藏

下载

翻译
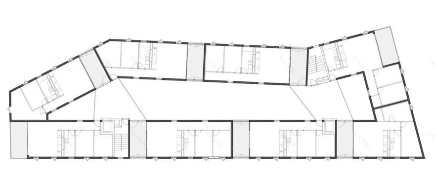
The building is conceived as a shallow and continuous perimeter of floor patio that creates a central space in the form of a collective and bioclimatic atrium, which becomes a space for interaction between the building's inhabitants and, at the same time, an energy-efficient mechanism for the entire complex.
The project deepens the relationship between housing and public space, using intermediate spaces to transition between the street and the house. The central space can be opened, closed, and protected from the sun, functioning as a greenhouse in winter and as a highly ventilated shade structure in summer.
The result is a thermally favorable space that adapts the building's form factor to environmental needs, improves the transmittance of the interior facade, and contributes to energy exchange with the homes, reducing energy losses through ventilation.
At the typological level, all the homes incorporate an intermediate terrace-gallery space that functions as a passive utilization area: an open, exterior, and ventilated space in summer that contributes to cooling the homes through cross ventilation. In winter, it becomes a closed, heat-capturing space that provides thermal gains to the living room through the greenhouse effect, avoiding the need for heating. Each terrace becomes a private filter space between the interior and exterior. A single typology of pass-through floor patios is proposed, where all the rooms are located on the facade, with natural light and views.
客服
消息
收藏
下载
最近











