查看完整案例


收藏

下载
© Adrià Goula
(AdriàGoula)
架构师提供的文本描述。位于巴塞罗那奥托马德巴塞罗纳大学UAB校区的ICTA-ICP大楼是环境科学和古生物学研究中心。根据建筑物使用者的研究领域,他们从一开始就选择了一座建筑,准备对可持续性的挑战作出雄心勃勃的反应。这座建筑由五层40×40平方米的独立建筑和两个地下室组成,其中包括:一楼的大厅、酒吧、教室、会议室和行政区域;接下来的三层是办公室和实验室;屋顶上有蔬菜块,还有休息的地方。半地下室存放停车场和发动机室,地下室有仓库和其他实验室。
Text description provided by the architects. The ICTA-ICP building, located in the UAB Campus (Universitat Autònoma de Barcelona), is a research centre in environmental sciences and palaeontology. In accordance with the research fields of the building users, they chose, from the beginning, a building prepared to give an ambitious response to the challenges of sustainability. The building, an isolated volume of five floors of 40x40m2 and two basements, contains the following program: on the ground floor the hall, bar, classrooms, meeting rooms and the administration area; the next 3 floors hold the offices and laboratories; on the roof there are vegetable patches together with the resting areas. The semi basement holds the parking and the engine rooms while the basement contains the warehouses and other laboratories.
Ground Floor Plan
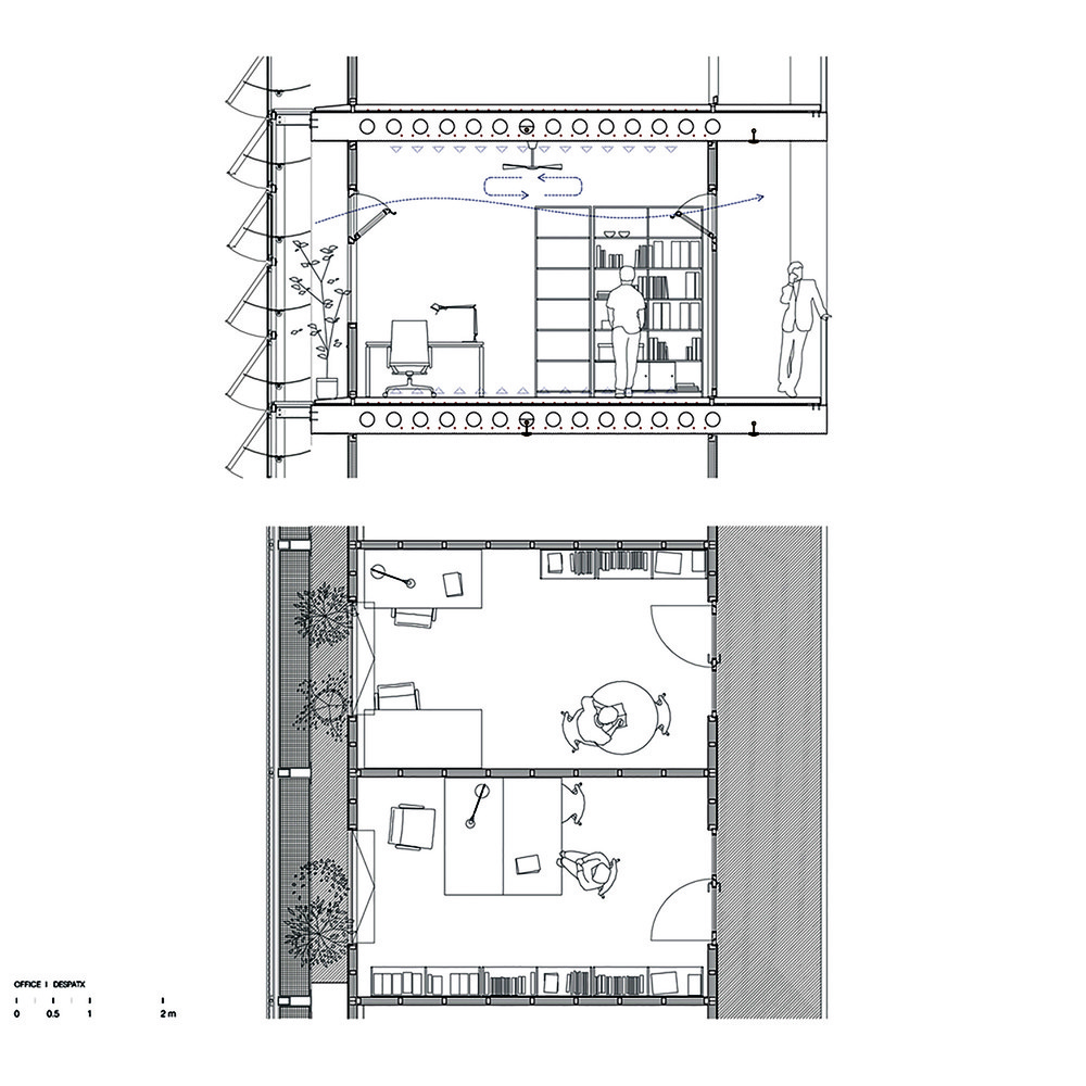
办公室和实验室都是内部负荷很大的空间,因此往往很热。这座建筑的设计是为了从冬季的内部情况中获利,而在夏天却往往会把它消散。它被认为是一种适应性强、灵活的基础设施,能够承受使用上的变化,同时制定几种相辅相成的战略。
Both offices and laboratories are spaces with a lot of internal load and therefore tend to be hot. The building has been designed to take profit from this internal situation in winter while it tends to dissipate it in summer. It has been thought as an adaptable and flexible infrastructure able to suffer changes of use, developing several simultaneous strategies that work complementarily.
选用了一种寿命长、造价低、惯性大的混凝土结构作为主体结构,直接促进了建筑的被动舒适性。优化了混凝土的质量分布,有利于混凝土的热交换。它使用后应力混凝土板与管道在中央地区的空气流通,以建立一个较轻的结构。在板的顶部和底部,热团被地热能激活。
A long life and low cost concrete structure with a lot of inertia has been chosen as the main structure, contributing directly to the passive comfort of the building. The quantity of concrete has been optimized distributing its mass in favour of the thermal exchange. It uses a post-stressed concrete slabs with pipes in the central area where the air circulates, in order to build a lighter structure. At the top and bottom of the slab the thermal mass is activated by geothermal energy.
© Adrià Goula
(AdriàGoula)
混凝土结构由低成本的外部生物气候皮肤包裹和保护。通过安装一个自动开启和关闭其机构的温室工业化系统,可以调节太阳能的增加和通风。这样,就可以自然地提高室内温度,保证循环空间和中间空间的舒适性。
The concrete structure is wrapped and protected by a low cost exterior bioclimatic skin. By installing a greenhouse industrialized system that opens and closes its mechanisms automatically, the solar gain and ventilation are regulated. This way, it is possible to raise the interior temperature naturally and guarantee a base of comfort in the circulation spaces as well as in the in-between spaces.
在建筑中间的四个露台,楼梯连接不同的水平,在一定的点,保证光和通风在所有工作空间,减少了人工照明的消耗。这些庭院,以及中间的空间和周边走廊,包含了几种植物,允许通过调节湿度梯度来提高舒适度。
In the middle of the building four patios, with stairs that connect the different levels at certain points, guarantee light and ventilation in all workspaces reducing the consumption of artificial lighting. These patios, as well as the in- between spaces and the perimeter gallery, contain several plant species that allow to improve the comfort through the adjustment of the humidity gradient.
© Adrià Goula
(AdriàGoula)
建筑物还利用两个地下室与地形的接触,通过两个空气室预先适应建筑物的空气翻新:一个是由构成挡土墙的“PI”梁产生的,另一个是地下室地板下的空气室。
普通木箱
Wooden boxes
在这个改善的气候中,有很好的绝缘木箱,有切实可行的玻璃开口,帮助实现工作空间的舒适条件。这些盒子在每一层的分布是不同的,取决于每个用户的需要,创造出慷慨和不确定的间隙空间。这些空间与流通相联系,产生了更多的非正式会议和休息区域。
Inside this improved climate there are well-insulated wooden boxes, with practicable glass openings that help to achieve the comfort conditions of the workspaces. The distribution of these boxes is different on each floor depending on the needs of each user creating generous and indeterminate interstitial spaces. These spaces link with the circulations generating more informal meeting and resting areas.
© Adrià Goula
(AdriàGoula)
气候与管理
Climate and management
该建筑旨在容纳三种与不同使用强度相关的气候:气候A:中间空间,完全由被动和生物气候系统适应/加热;气候B:办公室,将自然通风与辐射和半被动系统结合起来;气候C:实验室和教室,具有更好的密封和常规功能。
The building has been designed to host three types of climates associated with different intensities of use: Climate A: in-between spaces, that are exclusively acclimatized/heated by passive and bioclimatic systems; Climate B: offices, that combine natural ventilation with radiant and semi-passive systems; Climate C: laboratories and classrooms that have a more hermetic and conventional functioning.
© Adrià Goula
(AdriàGoula)
每种类型的气候都有自己的相关系统。建筑物的行为由一个自动计算机系统监测和控制,该系统处理和管理一组重要的信息,以优化舒适和能源消耗。该系统的规划有利于建筑物的最大被动行为,并尽量减少不可再生能源的使用。建筑物不断地反应和适应,打开和关闭自己,激活和使自己失去活力,设法利用环境提供的所有自然可能性;因此,舒适的感觉比平常更真实,而不是人为的。
Each type of climate has its own associated systems. The behaviour of the building is monitored and controlled by an automatic computer system that processes and manages an important set of information in order to optimize both comfort and energy consumption. The system has been programmed in favour of the maximum passive behaviour of the building and to minimize the use of non-renewable energy sources. The building reacts and adapts constantly, opening and closing itself, activating and deactivating itself, managing to use all the natural possibilities offered by the environment; therefore the comfort perception is much more real, less artificial than usual.
该结构选用热惯性大、使用寿命长的矿物材料作为二次隔板的低环境冲击材料。它一直是一个优先事项,使用有机或再生材料和干结构系统尽可能可逆和可重复使用。
A mineral material with a lot of thermal inertia and long service life has been chosen for the structure combined with low environmental impact materials for the secondary partitions. It has been a priority the use of organic or recycled materials and dry constructive systems as much reversible and reusable as possible
© Adrià Goula
(AdriàGoula)
该建筑通过雨水、灰水、黄水和废水的再利用,减少了需求和消耗,从而优化了整个水循环。
The building optimizes the whole water cycle by reducing the demand and consumption through the reuse of rainwater, greywater, yellow and waste water.
© Adrià Goula
(AdriàGoula)
Architects H Arquitectes, DATAAE
Location Cerdanyola, Barcelona, Spain
Category Research Center
Project Year 2014
客服
消息
收藏
下载
最近
































