查看完整案例


收藏

下载
法国大道和旧火车站Halle Freyssinet之间铺设有数条铁道,如今它们变得更宽,并且交汇到了一起。Panorama大楼的右侧是一个没有支撑物的大跨度区域,大概有58米宽。除了该区域之外,铁路网上的建筑均建造在厚厚的混凝土平台之上。在这里,任何符合城市开发条例的项目都可以在未经提前规划的情况下被建造出来。城市规划者已经放弃了清理场地从零开始的想法,而是打算在原地建立一个新的平台。这是一种浪费且不合理的做法,并且,由于场地的跨度太大,除非是在进行高预算的铁路基础设施重建的情况下才可能在中央置入新的支撑结构,因此这个项目也不能被放在场地右边。
▼建筑外观,exterior view ©Camille Gharbi
Flowing like a river between the Avenue de France and Halle Freyssinet are the railway lines, now wider, now merging together. Here, to the right of the Panorama building, the possible area without intermediate supports is 58 meters (190 feet). Everywhere else, the buildings being erected over the railway network have been constructed on a thick platform, a table of concrete on which any collection of buildings conforming to the rules of urban development can be erected at random without planning ahead of time. Urban planners have abandoned the idea of the tabula rasa in favor of a tabula nova : a platform waiting to be developed. This approach is irrational and wasteful. Furthermore, it cannot be transposed to the right of the project because the span is too great, intermediate supports only being possible if a costly reconstruction of the rail infrastructure were to be undertaken.
▼建筑体量横跨于轨道上方,the building is suspended above the railway lines ©Camille Gharbi
该项目试图从场地的另一端入手来解决问题。设计团队并没有建造最初设想的平台,而是提出了悬臂式平台的方案,试图让建筑借助桥梁结构横跨轨道。这一设计理论完全改变了项目的成本算法,使“隐形”平台结构的建造成本与上层建筑的成本合二为一。
▼剖面图,section
Our proposal approaches the problem from the other end. Instead of installing an initial platform, we have suggested suspending the platform forming the roof over the rails from the bridging building. This new theory changes the economic equation, allowing the cost of the invisible platform structure to be integrated with that of the superstructure of the building, this particular geographical arrangement allowing for a different kind of architecture.
▼桥梁式的大楼,轨道两侧的体量相隔58米, the project is designed as a bridge-building resting on either side of the tracks, which are 58 meters apart ©Camille Gharbi
按照设计,该项目将被建造为一个桥梁式的大楼,16000吨重的体量横跨于轨道上方,轨道两侧的体量相隔58米。这样的建筑结构使得建筑的自重应力得以被集中在桥梁结构当中,从而解放了其他部分的承重负担。这些悬挂或依附于主体结构的部分有着不同的厚度,可以根据朝向和视野被用作露台、阳台、凉廊或夹层等,为大楼的办公区域带来舒适的补充性空间。
As designed, the building thus becomes a bridge-building resting on either side of the tracks, which are 58 meters apart, its 16,000 tons being suspended above the trains. The effect of this structural arrangement is liberating, making it possible to make particular use of gravitational stresses. Since the stresses are concentrated in the floors forming the bridging structure, the other parts of the building are free. Suspended from or resting on the main structure, they can vary in thickness and embrace elements such as terraces, balconies, loggias, or mezzanines all different ways of expanding the working space depending on orientations and views.This choice of structural design makes it possible to develop comfortable tertiary spaces.
▼大楼立面,building facade ©Camille Gharbi
▼内部庭院视角,view from the inner courtyard ©Camille Gharbi
办公室的延伸区域和空间或向城市敞开,或通过挑檐带来荫蔽的空间。办公区域可以充分地与这些区域形成连接,并满足共享和单独使用的需求。
The different areas and spaces extending from the office areas open onto the city or are screened from it by the use of corbelling. The working areas are able to enjoy these extensions, whether shared or individually acquired.
▼户外露台为大楼的办公区域带来舒适的补充性空间,terraces and balconies expand the working space depending on orientations and views ©Camille Gharbi
▼从露台望向建筑内部,view to the interior from the terrace ©Camille Gharbi
▼城市视野,view to the city ©Camille Gharbi
有意思的是,正因为考虑到桥梁本身的结构限制,设计团队才提出了让建筑横跨轨道的方案,使宽敞的布局和空间得以实现。相反,建造低效的支撑平台只会增加额外的成本。该方案还使建筑的连贯性得以提升,同时将支撑结构巧妙地与建筑结合起来,不会引起人们的注意。
Paradoxically, these very generous arrangements are the result of the structural constraints of the bridge design and the resolving of the problem of the railway lines by integrating the roof over the tracks into the design rather than using an inefficient supporting platform that would only increase the overall cost of the project. The architecture gains in coherence and the structure itself is implied without drawing attention to itself.
▼从室内望向下方的铁轨,view to the railways beneath ©Camille Gharbi
在未来,既有的铁路也许将与新建筑下方的整体网络一同消失,但Panorama大楼的存在将继续强调出它们的存在。主桥的横梁被集中设置在两个楼层,大型的空腹桁架犹如“穿透”楼板,并从透明的立面上清晰地呈现出来。不论是悬空的楼层还是受到支撑的楼层均设有露台。关于制作阶段和施工阶段的记忆在建筑的外观上被一一体现出来,丝毫没有掩饰场地初始的形态和条件。整个项目完美展现了这种连贯的观点:建筑的实现过程最终成为了建筑本身。
Tomorrow, the railway lines below will disappear along with the whole network beneath the new construction, but the extraordinary method used will continue to evoke their presence. The beams of the main bridging are concentrated in the floors with façades pierced with a pattern recalling the Vierendeel beams used. The terraces included on the suspended or supported floors are freely varied. Both the memory of the fabrication process and that of the work site are embodied in an architecture that does not necessarily flaunt its muscles but which reveals itself without camouflage, without concealing its initial determining geographical condition. The project sprang from this coherent view; its realization becomes architecture.
▼主桥的横梁被集中设置在两个楼层,大型的空腹桁架犹如“穿透”楼板,the beams of the main bridging are concentrated in the floors with façades pierced with a pattern recalling the Vierendeel beams used ©Camille Gharbi
▼室内细部,interior detailed view ©Camille Gharbi
▼夜景,night view ©Camille Gharbi
▼场地平面图,site plan
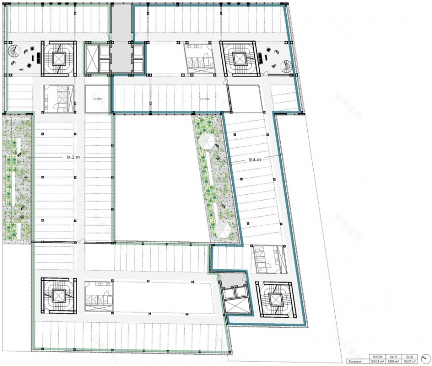
▼首层平面图,ground floor plan
▼2层平面图,plan R+1
▼6层平面图,plan R+5
PROGRAM: Construction of the bridge-building «Panorama» in Paris
PROJECT SUPERVISOR:
Architect: Marc Mimram Architecture & Associés
Partners : Marc Mimram Ingénierie : structure et economy, Edeis : fluid, VSA : facades, Greenaffair : environment, Léopold Fauconnet : interior designer, Franck Neau : landscaper, Base : land- scaper
Project team Marc Mimram Architecture Ingénierie : Guillaume André, Emilie Ballu, Maxime Lefranc, Jacques Durst, Denis Muet, Sergio Pauletto
CLIENT: ICADE
Investor : AG2R LA MONDIALE MATMUT, via sa foncière AGLM immo
CONSTRUCTION FIRMS
Victor Buyck : metal frame, Prologis : essential structural, Rinaldi Structal : facades, Ogim : roofing/waterproofing, Vinci énergie : electricity-plumbing, MRG : equipments-hoods, S.N Falleau : green space, Spie Batignolles : architectural interior works, Alma : drywalls, TSM : locksmith / metal work, Thyssenkrupp : elevators
COST OF THE CONSTRUCTION: 50 M€
PLANNING: winner of the competition in 2012 – beginning of the construc- tion in 2014 – project delivery in 2019
AREAS: 16 000 m2 – 15 000 m2 – offices and 1 000 m2 – shops
KEY DATA: 58 meters span – 6000 tonnes of steel
客服
消息
收藏
下载
最近























