查看完整案例


收藏

下载
UOOYAA是一家年轻的女装品牌,是设计师送给自己女儿的礼物,希望女生可以保持自由、真实和有趣的本质。在UOOYAA杭州湖滨银泰店的设计中,我们希望通过营造一个沉稳、厚实且有力量感的空间来匹配品牌精神。
UOOYAA is a rising fashion brand of ladies apparels. The brand itself is a gift from the founding designer to his daughter, to inspire her, and every girl, to stay liberal, authentic, and fun. We want to create a space that is steady, calm and powerful in order to align with the brand spirit in UOOYAA Hangzhou IN77 project.
▼室内概览,Interior view
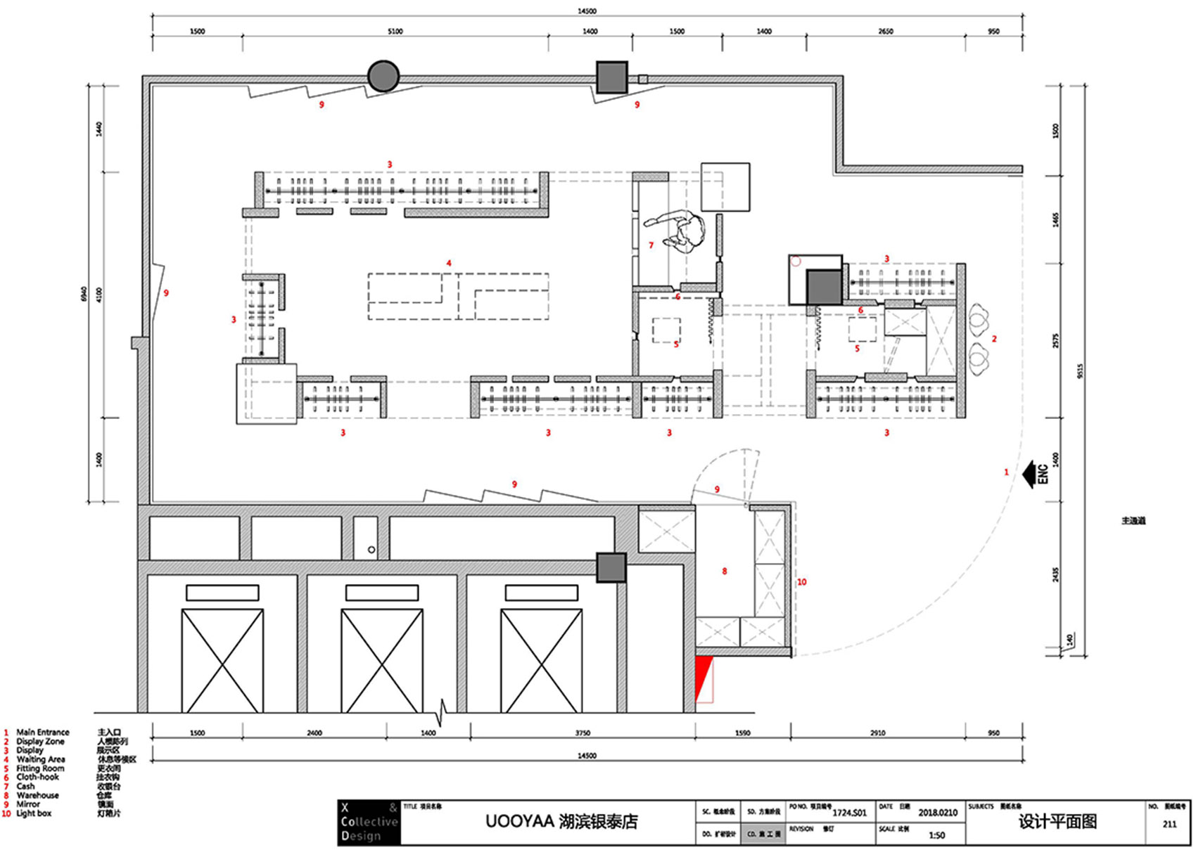
在现代商场的环境下,每家店铺都在尽可能的展现展品,通过造景去吸引眼球,这样的环境总是难以让人放松下来。我们希望构筑一个内向的,放松的场所,在空间布置中,我们将产品“隐藏”在空间中的“通道”位置,同时利用回形动线的指引,让顾客轻松顺畅的完成产品的浏览,将产品作为路径的引导而非最终的目的地。
▼平面图,Plan
In modern shopping mall, every store is trying to grasp customers’ attention through its window displays, which is hard to bring out a relaxing environment. However, relaxing is what UOOYAA Hangzhou IN77 project wants to achieve. We try to let the products be the lead for customers, thus we arrange them in corridors. Because of an end-to-end circulation, customers will not find it hard to browse all the products.
▼将产品“隐藏”在空间中的“通道”位置,We arrange the products in corridors to let them be the lead for customers
▼利用回形动线的指引,让顾客轻松顺畅的完成产品的浏览,An end-to-end circulation make customers browse all the products easily
▼回望入口,Looking back to the entrance from interior
我们希望店铺不只是商业销售空间,而是品牌精神的展示场所,是有同样审美及价值观人群的聚集场所,具备不同的空间属性,所以我们在空间的中心位置构筑了一个独立的空白空间,这里可以成为“画廊”、“休息室”、“培训教室”等各种属性的空间。
We believe that a store is not simply a place that sells products; it should rather be a place which conveys its brand philosophy and accommodates like-minded people. A store should offer different functions. Therefore, we leave an independent area in the middle of the space. This is expected to be a versatile place where it can be turned into a gallery, a lounge, a classroom, etc.
▼从走廊看中心空白空间,Independent area from corridor
▼中心空白空间,Independent area in the middle of the space
我们尝试尽量弱化对材质进行二次装饰,通过木模混凝土、素面石膏板、老榆木等材质的应用,去强调并展示材料的原真性。
The materials we applied, for example concrete, plasterboard, old elm, are remained to its original appearance, which is a way to show the authenticity of the space.
▼材质细部,Material details
客服
消息
收藏
下载
最近

















