查看完整案例


收藏

下载

翻译
With integrated, organic and open academic buildings setting a prevailing new trend in Shenzhen, campus building design no longer rigidly adheres to the conventional layout. Instead, it now focuses more on integration with communities to address the land shortage for urban public functions. While academic buildings within the urban area are mostly challenged by limited site or more needs for renovation than new construction etc., new school projects in urban periphery primarily have to consider how to utilize surrounding resources, enhance urban image along the roads and rationally provide integrated functions in campus design.
Shenzhen Haixi (Future) Primary School is located in Dameisha resort in Yantian District, with Shenzhen’s renowned tourist destination OCT East on the north, large shopping mall and Vanke Center on the south, and residential districts on the east and west. Favorably sited in Dameisha resort, the campus enjoys rich landscape resources including the high mountain ranges of OCT East, and the southern artificial lake and sea views. Apart from designing a primary school for 30 classes, 497 public parking spaces also need to be provided. Due to the transition from a conventional “enclosed campus” to “a campus with educational facilities open to the public”, the design also needs to incorporate available surrounding resources, explore alternating functions during different time periods for campus spaces and study the corresponding management mode.
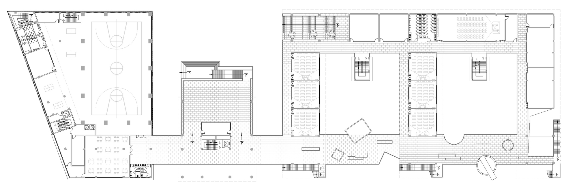
The seemingly ordinary public parking functions provided on B1 and B2, in fact, affects building layout in a number of ways. After comparison of multiple layout options, the site is divided into east and west parts. Building volumes are mostly concentrated and orderly arranged in a rectangular area in the east part to maintain the original extension of urban space in longitudinal direction. A 200m standard track is provided in a triangular area in the west section along with several outdoor basketball courts and other sports areas. The multi-purpose building right opposite the playground is designed with large steps under the elevated lecture hall for relaxation and game watching.
The orthogonal grid design skillfully balances maximum parking spaces and flexible building layout. The entrance and exit of the parking spaces are separately provided on the existing municipal road on the east and the planned municipal road on the north to avoid traffic congestion. BOH services, all-weather playground, administrative buildings and other spaces for non-teaching purposes are distributed along the noisy traffic interface on the northeast. In this way, noises can also be blocked. Extending to the east and joining the multi-purpose building, they together form the main entrance to the campus. Three rows of teaching buildings are arranged in an E shape in the south. A half-enclosed inner courtyard is planned to face the better landscaped west side, creating spaces for activities. Meanwhile, buildings along the east roadside can remain holistic, establishing a continuous urban interface.
An S-shape building corridor extending from south to north integrates and connects key nodes in the teaching, administrative and BOH areas, creating a multi-level system featuring individual and series of highlights. It also links up the dynamic square at the east main entrance, and the tranquil west-oriented inner courtyards between the sports area and the teaching buildings. Various courtyards are interconnected and integrated via elevated corridors, upgrading the conventional campus traffic spaces into major relaxation, interaction and viewing spaces for students. With such highly-integrated functional design, a highly recognizable new campus is established.
Campus buildings present a bright and warm overall appearance. The continuous east facade uses grating as a consistent architectural language, conveying an introverted campus style. The multi-purpose building facade, by adjusting grating size and interval, improves recognizability and provides easy orientation and way-finding, thus enhancing the public nature of the entrance space. The teaching building facade facing the playground is designed with semi-outdoor stairs, with bright colors of handrail design on the inner side. This not only injects fun elements into the buildings specially designed for elementary school students but also enhances the students’ sense of belonging in different teaching buildings.
Campus parking and public parking functions alternate during different time periods. On weekdays, school vehicles and pedestrian access are prioritized and the public parking spaces mainly serve parents picking up/dropping off students. During holidays, public vehicles to tourist destinations are prioritized to relieve tourist traffic burden. The alternating parking functions during different time periods can be managed relatively independently. In this way, the infrastructure also reciprocates tourist resources, thus realizing harmonious coexistence of school and public parking spaces.
客服
消息
收藏
下载
最近

















