查看完整案例


收藏

下载

翻译
The site is surrounded by factories, parking lots, and fields. The client requested that the house be both "closed" to ensure privacy and "open" to the garden. The site is a flagpole-shaped lot that was subdivided from his parents' land.
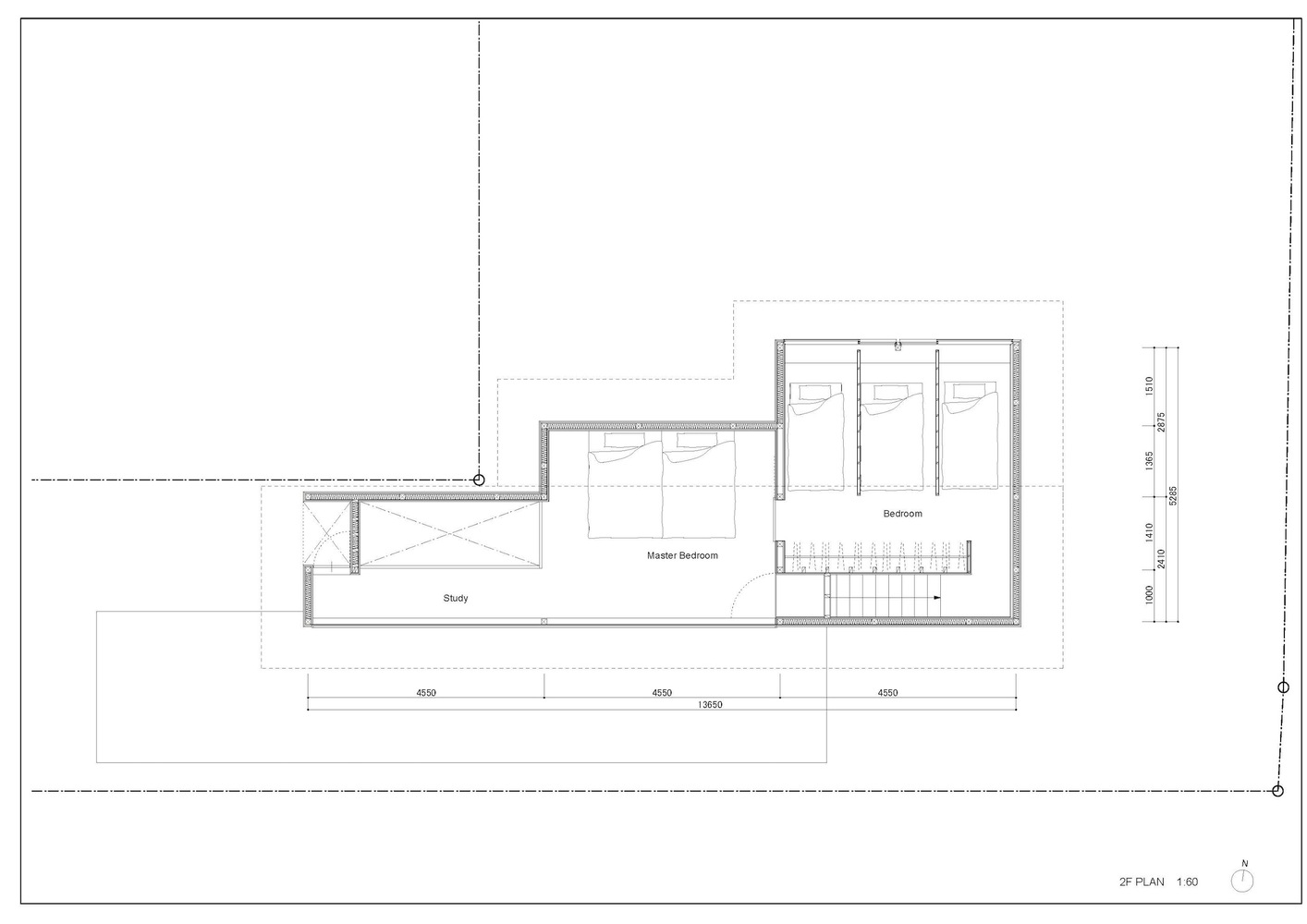
We placed a small strip of volume in the alley portion of the flagpole site and planned a layout in which multiple strips of volume are connected toward the back of the site. We proposed to avoid the existing plantings and create a new garden at the back of the site. The long and narrow strips overlap in the rooms where many people gather, and they are used as a wide space for various purposes.
To reduce the feeling of oppression in the neighborhood, to secure privacy, and to obtain sunlight in the fields, a sloping roof was adopted and set low toward the surrounding area. The space between the roofs is open to allow the outside environment to enter.
On the first floor, life in the house extends into the external environment, including the fields and garden, while on the second floor (bedrooms), when sleeping or sitting, the view of the sky expands while blocking the surrounding view and the building. The connection to diverse external environments such as "ground" and "sky" is realized in one building, which enriches life in this place.
客服
消息
收藏
下载
最近





























