查看完整案例


收藏

下载

翻译
RATP Habitat received in 2021 its new headquarters at 158 rue de Bagnolet in
’ 20th arrondissement. Atelier du Pont designed a wood frame, three-story building for this project nestled amidst a densely constructed block. Sculpted into different levels, the south-facing terraces make the rooftops fully inhabitable, blending architecture and nature.
The studio also designed all the interior spaces, furniture, and signage, working with the client at all stages to define its new workspaces. The interior spaces are flexible and upgradable. Emphasis was given to the sociability, adaptability, and domesticity of the various work areas. The project was designed to promote interaction and exchange among everyone who works here, both in and outdoors.
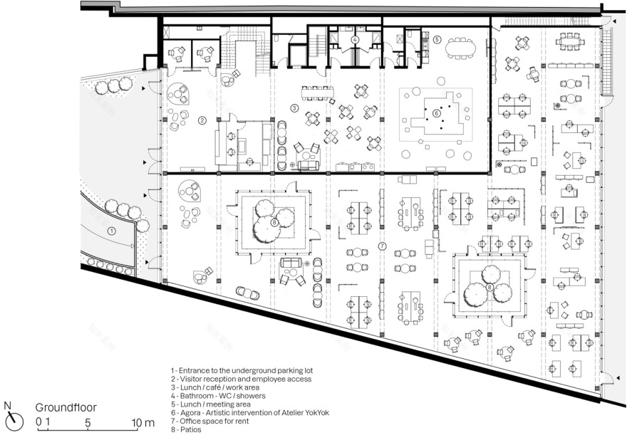
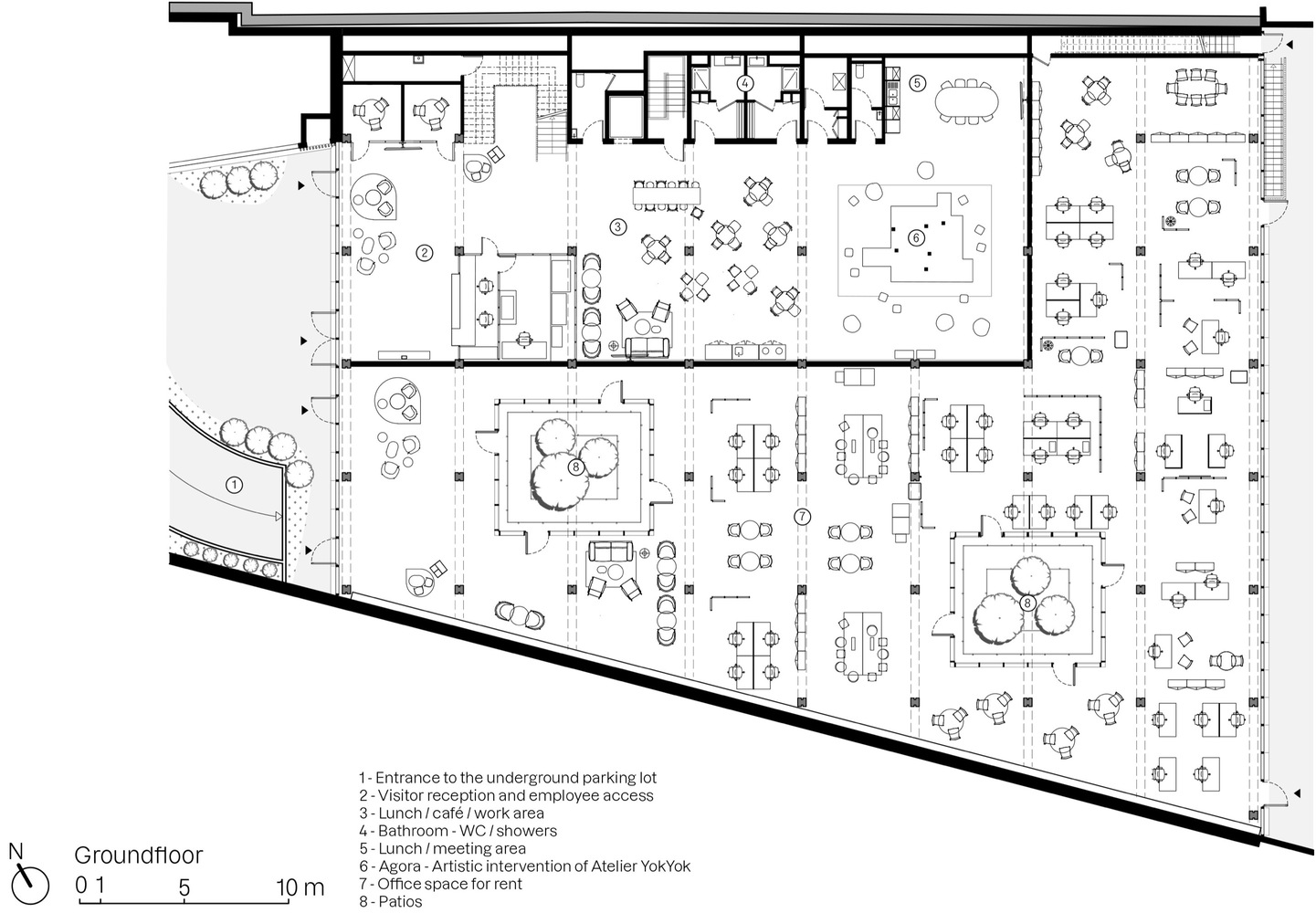
The new RATP Habitat headquarters are accessed through the portico of a housing complex. The building takes up the entire parcel, and so, the space that is fully occupied on the ground level is offset by the succession of open rooftop gardens. Its post and beam framework is in glued-laminated timber. The grid of the timber framework is aligned with the existing parking structure, limiting the structural rework below ground. During the construction, this method lowered noise levels for the neighboring buildings.
The space is organized around two patios and an atrium that distribute natural light evenly across the entire building and provide an effective source of natural ventilation. The services (bathrooms, reprographics, storage, and others) were consolidated along the north side of the building to create large workspaces that can be reconfigured at will.
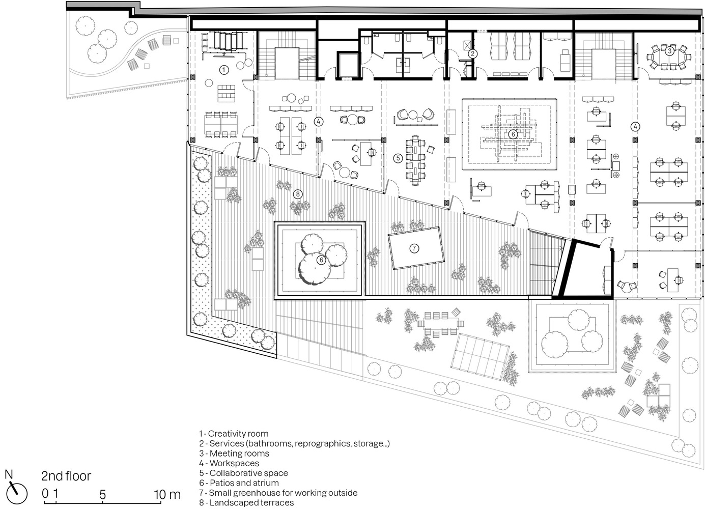
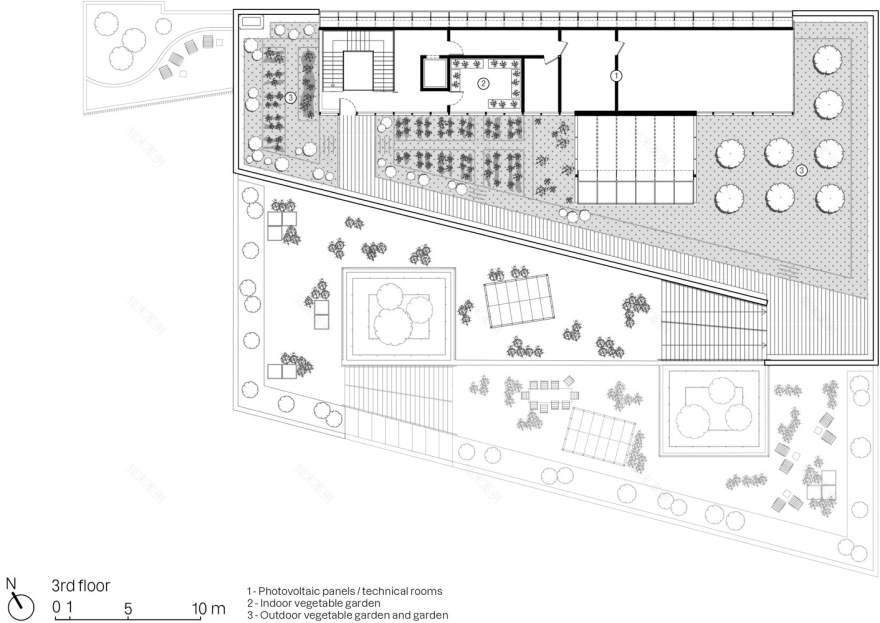
The green rooftops are for RATP Habitat employees to enjoy. With full exposure to the sun, they allow people to work and relax, all while being in the middle of
. Plant-filled beds and pots line punctuate the various spaces on these terraces, where people can come to have lunch, take a break, chat with their colleagues, or engage in soft athletic activities such as yoga or ping-pong. The uppermost level is entirely devoted to a vegetable garden. Small greenhouses located on the lower two terraces can be used to hold meetings, organize brainstorming, or just work alone in a covered space.
The building’s interior layout fundamentally disrupts the traditional office model to meet the needs of today’s workspaces: flexibility, upgradability, multiple use, and creativity. It provides a good balance between the individual and the collective. The spaces were designed to be occupied in different ways throughout the day, from work to coffee breaks, relaxation, meetings, videoconferences, and beyond.
The two floors of offices were designed as an open floorplan that can be reconfigured with mobile partitions to adapt the space to different practices—from shared to closed offices, open space, nomadic offices, informal work and meeting areas, collaborative spaces, and creative spaces—and their future evolutions.
The colors are warm and soft, the wood has been left with a natural finish, and the fabrics are comfortable: the subtle interplay of the furniture selected creates a domestic ambiance that renders the offices and the collaborative spaces cozy and friendlier.
客服
消息
收藏
下载
最近






























