查看完整案例


收藏

下载
前言 Preface
建筑设计灵感来自于重工领域的燃料塔和喷射装置,以“蓄能”与“喷发”的动势统领创作。用凝练的语言转译为符号化的建筑空间。契合美式复古银饰品牌 Rock&Ride 的内核精神,富有激情与力量感,寓意给自由的骑士注入源源不断的动力。
The architectural design inspiration for this project originates from the heavy industry domain, drawing from fuel towers and jet propulsion systems, with a focus on the dynamics of “energy storage” and “ejection.” It translates into a symbolic architectural space using concise language, aligning with the core spirit of the American retro jewelry brand Rock&Ride.
▼正立面,front facade© SFAP
街区型商业的突破点在于开放的拥抱城市空间,营造良好的城市生活体验。同时,建筑形象的打造需要平衡艺术性和全群体覆盖的大众包容度,这样一来,极具辨识度的商业空间可以助力品牌的发声,也为城市面貌的更新注入新的活力。
The design is rich in passion and power, symbolizing the infusion of continuous energy into the free riders. The breakthrough in the context of block-type commerce lies in the open embrace of urban space, creating a favorable urban living experience. Simultaneously, the construction of the architectural image must strike a balance between artistry and mass appeal, allowing for a distinctive commercial space that can amplify the brand’s voice and inject new vitality into the urban landscape.
▼街道视角,street view© SFAP
一、现状与挑战:Current Situation and Challenges
项目位于深圳万象天地,地处商业街入口同时也是人流聚集的核心地段,场地中央有一个保留的雨棚。如何处理新建筑与城市的关系,如何平衡快闪店的“轻”与品牌的“重”,如何解决雨棚对建筑形式的影响,是本项目的突破点。
▼场地原状,original state of the site©WBS 里外工作室
▼概念分析,analysis of the concept©WBS 里外工作室
The project is located in Shenzhen MixC World, at the entrance of a commercial street and a core area of pedestrian traffic, with a retained canopy in the center of the site. The key challenges include how to manage the relationship between the new building and the city, how to balance the “lightness” of pop-up shops with the “heaviness” of the brand, and how to address the impact of the canopy on the architectural form.
▼新建筑与城市的关系,relationship between the new building and the city© SFAP
▼街道夜景,street view at night© SFAP
二、建筑设计 Architectural Design
我们首先将耐候钢质感的圆柱满铺场地。场地雨棚面向主街有一个悬挑趋势,我们顺势而为,将建筑主立面后退至雨棚斜柱边缘,地面局部抬起,范围延至场地红线,最大化城市灰空间。主立面上部体量则外挑,并被一个面向主街翘起的斜面切断,漏出圆柱内部空腔,空腔内置入锥形金属内壁,拟合喷射器的形态,并配上火焰般的灯光,将入口前场空间打亮,形成浓厚的氛围感。主立面悬挑部分的微微翘起,也保证了主街人流可以看到出挑雨棚下方的立面表情,最大化立面张力的呈现。建筑背立面面向一片安静的花园,于是此立面采用低调沉稳的处理手法。
▼分析图,analysis diagram©WBS 里外工作室
We first use weathered steel cylinders to cover the entire site. The canopy over the site has a cantilevered trend facing the main street. We adapt to this trend by setting the main facade of the building back to the edge of the canopy’s inclined columns. The ground is partially raised, extending to the site’s boundary, maximizing urban open space. The upper volume of the main facade extends outward and is intersected by a sloping surface facing the main street, revealing the interior cavity of the cylinder. Inside the cavity, a conical metal inner wall is installed, resembling the shape of a jet, and paired with flame-like lighting to illuminate the front entrance space, creating a strong atmosphere. The slight lift of the cantilevered portion of the main facade ensures that pedestrians on the main street can see the expression of the facade, maximizing the presentation of the facade’s tension. The back facade of the building faces a tranquil garden, and therefore, this facade is treated with a subdued and dignified approach.
▼主立面上部体量外挑,the upper volume of the main facade extends outward© SFAP
▼背立面面向一片安静的花园,the back facade of the building faces a tranquil garden©UK studio
▼背立面细部,details of the back facade© SFAP
▼侧立面,side facade© SFAP
▼细部,details© SFAP
三、建筑的城市角色 The Urban Role of the Building
街区型商业最大特点在于城市空间的体验感。我们采用了以退为进的方式形成充足的城市灰空间,解决了快闪店人流高峰期室外排队的遮阳避雨问题,同时将场地还给城市,用开放的态度拥抱公共人群,成为城市生活的发生地。这种“退”撕开了商业空间与城市空间的区隔,为室内空间创造了层次丰富的接口。
▼分析图,analysis diagram©WBS 里外工作室
▼分析图,analysis diagram©WBS 里外工作室
The most significant feature of block-type commerce is the experiential aspect of urban space. We use a “step back to advance” approach to create ample urban open space, solving the problem of shading and shelter for outdoor queues during peak periods of pop-up shops. At the same time, we return the site to the city, embracing the public with an open attitude, becoming a hub for urban life. This “step back” breaks down the barrier between commercial space and urban space, creating a rich interface for indoor spaces.
▼面向主街翘起的斜面切断,the main facade is intersected by a sloping surface facing the main street© SFAP
▼圆柱内部空腔与锥形金属内壁,the interior cavity of the cylinder with conical metal inner wall© SFAP
▼锥形金属空腔拟合喷射器的形态,the cylinder 类似于喷射器的形状© SFAP
▼火焰般的灯光,flame of light© SFAP/UK studio
▼近景,closer views© SFAP
四、建筑的商业角色
The Commercial Role of the Building
建筑|Building
建筑通体采用耐候钢饰面漆,最大化快闪店的厚重感,创造最直给,最容易被公众辨识的符号化形象。将品牌“轻”的快闪行为变成建筑化的“重量级”发声。将建筑沿街面完全打开,通过玻璃幕墙将室内商业氛围展现给公众,形成虹吸效应。顶部设置美式公路牌,突破建筑限高将品牌信息传达至整个商街。
▼长凳分析图,analysis diagram of the benches©WBS 里外工作室
The entire building is covered in weathered steel finish paint, maximizing the weight and recognition of the pop-up shop, transforming the “light” brand behavior into a “weighty” architectural statement. The building is completely open along the street, showcasing the indoor commercial ambiance to the public through glass curtain walls. American highway signs are placed on the top, surpassing the building’s height limits to convey the brand message throughout the entire street.
▼檐下空间成为室内外的过渡,the space under the eaves becomes a transition between interior and exterior© SFAP
▼细部,details© SFAP
室内|Interior
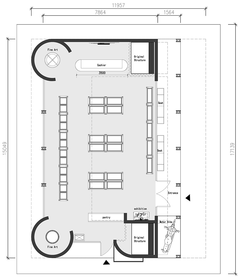
室内布局采用高效的布置方式,沿幕墙设置贴边展柜,最大化产品识别度。在环形动线的节点区域,将建筑外部的圆柱体插入室内,与建筑语言形成呼应,并在空腔内设置艺术装置。在空间上空利用原始雨棚承重,悬挂二手波浪板制作的条状天花,勾勒出空间走向,同时提升与外立面呼应的粗粝感。装置艺术家创作的机械心脏及花艺装置则弥补了与银饰呼应的精致感和灵动感,增加室内空间艺术氛围和视觉记忆点。
The interior layout adopts an efficient arrangement, with display cabinets along the walls to maximize product visibility. In the nodal areas of the circular circulation, external cylindrical elements are inserted into the interior, echoing the architectural language and housing art installations within the cavities. Overhead, wave-shaped ceiling elements made from recycled corrugated panels outline the spatial direction, enhancing the rough texture that corresponds with the exterior facade. Mechanical heart and floral art installations created by artists compensate for the delicacy and fluidity that resonates with the jewelry, adding an artistic atmosphere and visual focal points to the interior space.
▼室内概览,interior view© SFAP
▼波浪板制作的条状天花,勾勒出空间走向,wave-shaped ceiling elements made from recycled corrugated panels outline the spatial direction© SFAP
▼室内布局采用高效的布置方式,沿幕墙设置贴边展柜,the interior layout adopts an efficient arrangement, with display cabinets along the walls© SFAP
▼机械心脏及花艺装置,the mechanical heart and floral art installations© SFAP
▼柜台,counter© SFAP
▼空腔内设置艺术装置,the art installation© SFAP
▼细部,details© SFAP
五、母题的贯穿
Consistency of the Theme
从室内家具到城市座椅,再到 Logo 设计,都是圆柱符号的变体,母题的统一将设计的整体性提升到新的高度。
▼logo 设计,logo evolution©WBS 里外工作室
From interior furniture to city seating, and even in the logo design, variations of the cylindrical symbol are used, unifying the theme and elevating the overall design to new heights.
▼正立面夜景,night views of the front facade© SFAP
▼夜景鸟瞰,aerial night views© SFAP
▼背立面夜景,night view of the back facade© SFAP
▼结构分析图,analysis of the structure©WBS 里外工作室
▼总平面图,master plan©WBS 里外工作室
▼平面图,plan©WBS 里外工作室
▼立面图,elevations©WBS 里外工作室
▼剖面图,section©WBS 里外工作室
客服
消息
收藏
下载
最近

































































