查看完整案例


收藏

下载
案例简介
Case description
此次项目是武汉实力网红大盘,香港置地与光明地产共同开发的印湖云著,项目位于后官湖畔,地处经开主城区核心位置,无论是交通资源、教育资源还是自然资源都属顶级。
本案以都市核心场域的高阶气韵,深研高端圈层的生活本质。
探索城市与自然共生相融,以设计之力,塑造城市人居新中心,以雅舍的精致拾光,再绎圈层生活新范本。
ELEGANT
恰好,在对的时间里
达成视觉与感知的平衡
恰好,在对的情境中
成就与灵魂契合的气质
WU HAN
武汉简称“汉”,别称江城,拥有众多湖泊河流,独特的自然风光孕育出深厚历史文化底蕴,在时代的更迭中,中西文化对弈后又共融,凝练至今,便形成了如今中西气质交汇的独特氛围。
此次项目是武汉实力网红大盘,香港置地与光明地产共同开发的印湖云著,项目位于后官湖畔,地处经开主城区核心位置,无论是交通资源、教育资源还是自然资源都属顶级。
本案以都市核心场域的高阶气韵,深研高端圈层的生活本质。
探索城市与自然共生相融,以设计之力,塑造城市人居新中心,以雅舍的精致拾光,再绎圈层生活新范本。
01
抛尘入堂
由外步入室内的连接点
是回家的第一仪式感
仪式的意义在于身,更达于心
在身处繁华与多样的时代中庸
保有朴素的初心和对简单的坚守
在凡尘俗世中觅得一处桃花源
这一过渡空间在功能属性上
以空间结构的动线去做引导
由喧嚣紧张步入舒缓私密区域
承载归家后卸去所有累赘与疲惫的轻松
巧妙用心的收纳系统,让屋外的凡尘
在这个空间被小心典藏
让家的归属感,是目之所及的温暖
理想中的家,大抵就像隐形的臂弯
拥每一个天涯倦客入怀
02
拾光静语
客厅空间以摩登都会内核延伸塑造
运用纯粹高级的现代手法进行重构
无形成界,彼此渗透
简约的空间动线流动着自由气息
满足多层次场景随意切换
结合极简的设计美学
当代奢华艺术以及工艺的审美品质
营造精致典雅的现代轻奢体验
在有限的空间内雕琢属于自己的美妙人生
和家人围坐,和心灵共舞,和灵魂座谈
充满质感的白色皮质沙发加上精致车线元素的点缀
体现了主人品味的高雅,在柔和的灯光下
呈现出简单大气之中又藏着温馨的气息
石背景墙经历了自然的雕琢澄净清雅
与手工地毯、奢石金属拉丝茶几穿插对话
从线到面的层次递进
构建了现代奢居的品质格调
独特的气韵和自然灵性油然而
03
细水流连
餐厅在烟火气息里感受内心的宁静
有生命力的空间
总是在不断生长的过程中呈现
石材、金属与跳跃的玻璃构成食享空间丰富的层次细节
线条勾勒生活的艺术雅奢
重构当代日常栖居的诗意细节
以”烟火气·舒适”为核心
三口之家共筑共聚
既有孩童的陪伴成长空间
也容下成年人的栖息舒展
“四方食事,不过一碗人间焰火”
餐厅不再只是传统的就餐而是多种功能复合的
“早C晚A”也成为缓解一天疲惫的生活方式
04
灯火阑珊
岁月静好
阳光通过窗户透进房间
一习一梦都讲述着岁月相伴的幸福美好
优雅贯穿于每个角落
艺术的氛围延续至卧室的细节之中
软装物料从色彩、材质、形体上
均结合雅奢的韵味,凸显主人气质
这里容得下对生活的不将就
温馨的休息空间也增加了更多的功能
人间烟火气,最抚凡人心
阳光正好,清风微拂
自然与艺术的对话慢慢发生
偏爱这一隅之地,观察日落黄昏
与光影撞个满怀,闲暇时的小憩
在这忙碌的城市里可以享受时间缓慢流淌的痕迹
05
叹茶光阴
一拉开窗帘,跟阳光撞了个满怀
这里是表达生活热忱
也是安静思考的私享领域
宜人香氛萦绕,小酌红酒,自我放松
触发想象穿越时间洪流的美好时光
以安静的生活作为背景
随着日出日落安然的生活,不急不躁
雅致的格调被艺术的笔触描摹、铺叙
使美学的体验达到最大化
也让生活的情趣有了恰到好处的展现
06
奇妙物语
女孩的卧室采用浅粉色为主调
为孩子甄选尽量圆角的家具
从细节处保护孩子的纯真与浪漫
精致的小物件也凸显个性与美好向往
色彩不仅仅是我们看到的五彩斑斓
亦是小朋友对奇妙世界的情绪反馈
它藏着小女孩的浪漫幻想和无穷的创造力
粉色的小屋是她描绘世界的开始
充溢着浪漫、甜美和纯真
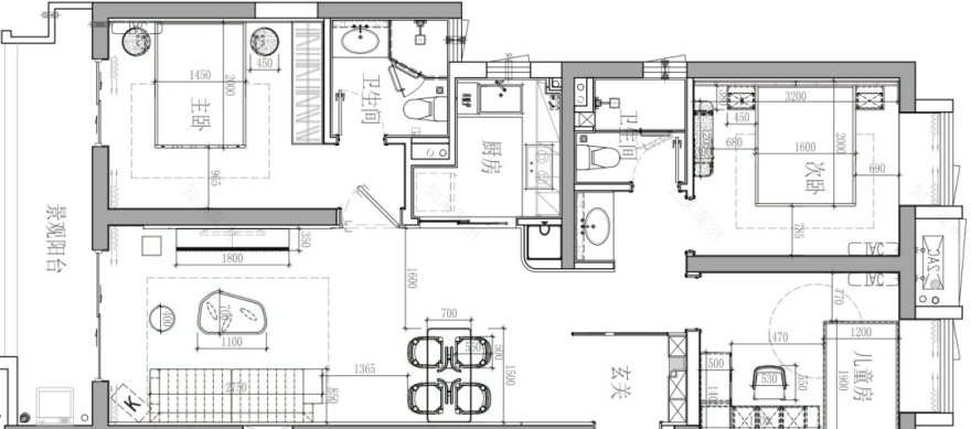
户型图
项目名称 | 印湖云著
业主单位 | 香港置地、光明地产
项目位置 | 武汉经开·东风大道旁·后官湖畔
项目类型 | 样板间
设计面积 | 约100㎡
完成时间 | 2023.6
甲方团队 | 梁晓丹、王雅洁、孙珺
设计公司 | 海力空间设计
设计范围 | 硬装+软装
客服
消息
收藏
下载
最近



























