查看完整案例


收藏

下载

翻译
The plot has a significant slope of terrain to which the house has been matched. The main idea was to protect and highlight a view after entering the plot. That's why the hole comes to existence.
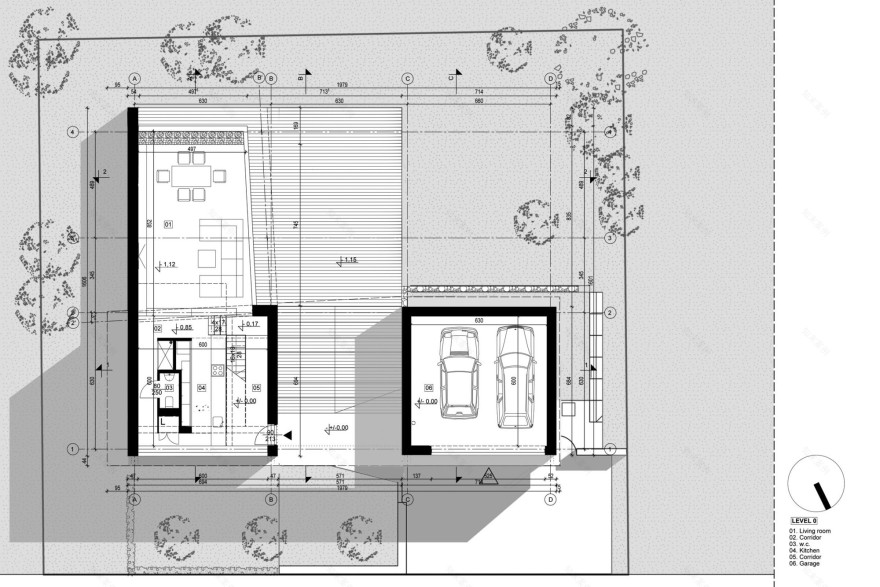
The levels of the daytime part situated perpendicularly to the road are lowered in accordance with the existing terrain. A garage has been located in a separate part. Both blocks are connected by a higher situated bedroom part. After entering the plot you can immediately find yourself on the terrace, which leads directly to the living room space. Thanks to the large glazing part in the living area, the terrace has been extended significantly. The house is largely glazed on the west and south sides. Protection against overheating is the system of external blinds, appropriate selection of glass and mechanical ventilation. Wooden terrace and a garden are located behind a building on the south side.
Inside, the space is maximally open. Applies to both day and night parts. The living area is dominated by the blackness of the walls, concrete ceilings are left without plastering. The addition is ash solid wooden elements – stairs, shelves, rungs. A big plant pot was placed on the floor in front of the southern glass wall.
The night part is kept in white. Also, here concrete ceilings were not plastered. Large glazing is completed by two big skylights - above the living area and above the bathtub and washbasins in the sleeping area.
客服
消息
收藏
下载
最近









































