查看完整案例


收藏

下载
架构师提供的文本描述。Krostoszowice是西里西亚(波兰地区)南部的一个村庄。投资者拥有很大的地块,东面有很大的坡度。建筑物应该站在包裹的最高点,靠近道路,在西北角。
Text description provided by the architects. Krostoszowice is a village in a southern part of Silesia (region in Poland). The Investor owns large parcel with a significant slope in the east. The building should to stand on the highest point of the parcel, close to the road, in the north- west corner.
© Tomasz Zakrzewski
c.Tomasz Zakrzewski
周围的建筑非常多样和混乱。主要有二十世纪六十年代和七十年代的房屋。
The surrounding buildings are very diverse and chaotic. There are mainly houses of the 60's and 70's of the twentieth century.
Floor Plan Level 0
楼层平面0级0
周围的景观让我们感兴趣的不仅仅是平淡无奇的开发环境。山地和森林的背景已经成为一个主要的参照点。这座建筑符合现有的地形,与景观相吻合。房子对最有趣的景色开放,与最近的建筑物分开。
The surrounding landscape interested us more than unexciting development context. Hilly area and forest in the background has become a main point of reference. The building fits to existing topography, coincides with the landscape. House is open towards the most interesting views and separate from the nearest buildings.
© Tomasz Zakrzewski
c.Tomasz Zakrzewski
从街上我们可以看到有车库和玻璃门厅之间的单层建筑。建筑物的这一特色主体有当地法律要求的倾斜屋顶,它们完全覆盖着石板。混凝土栅栏墙标志平台与建筑物,入口地区,车道和木制露台悬挂在地面上。
From the street we can see single-storey building with garage and glass foyer between. This characteristic body of the buildings have a required by the local law sloping roofs, they are covered totally with slate. Concrete fence wall marks platform with building, entrance area, driveway and wooden terrace suspended over the ground.
© Tomasz Zakrzewski
c.Tomasz Zakrzewski
卧室在楼下。这部分建筑部分被地面覆盖,从街道上看不见。在上面的露台下面,地面是第二层,完全覆盖着露台。外悬臂楼梯连接两个梯田。
Bedrooms are located downstairs. This part of the building is partially covered by ground and invisible from the street. Under the upper terrace, at the ground level is second, fully covered terrace. Exterior cantilevered stairs link both terraces.
© Tomasz Zakrzewski
c.Tomasz Zakrzewski
在室内,白色的墙壁表面和倾斜的天花板由玻璃,抛光混凝土和天然木地板,木楼梯和深色附件补充。
In interiors, white surfaces of walls and slanted ceiling are complemented by glass, polished concrete and natural wood floors, wooden stairs and dark accessories.
在顶层有开放式的起居室。厨房、书房、厕所和厨房都藏在白色长方体里。长方体上方有带书架的夹层。木楼梯是客厅的显眼部分。
On the top level there is open living room. Pantry, study room, toilet and kitchen were hidden in white cuboid. Above cuboid there is mezzanine with bookcase. Wooden stairs are a conspicuous part of the living room.
© Tomasz Zakrzewski
c.Tomasz Zakrzewski
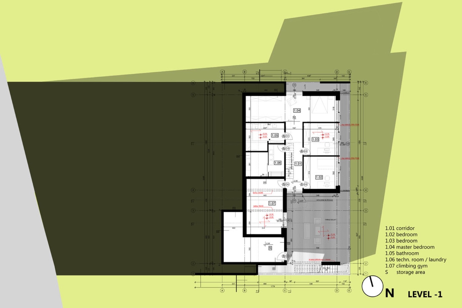
当我们下楼时,我们可以直接走到较低的露台。这层有2间儿童房,主卧室有更衣室,卫生间,技术房有洗衣房和攀岩健身房。此外,从外部进入的储藏室位于较低的楼层。
When we go downstairs we can walk out directly to lower terrace. On this floor there are 2 rooms for children, main bedroom with dressing room, toilet, technical rooms with laundry room and climbing gym. In addition, a storage accessible from the outside is located on the lower floor.
© Tomasz Zakrzewski
c.Tomasz Zakrzewski
产品描述:我们用天然板岩覆盖所有主要固体(Rathscheck Scheer)。我们想要创造黑暗的均匀固体和选择板岩是一个完美的解决方案,覆盖屋顶和墙壁上的一种持久的材料,组成真的很好的混凝土和天然木材。
Product Description. We covered all main solids by natural slate (Rathscheck Schiefer). We wanted to create dark homogeneous solids and choosing a slate was perfect solution for covering roofs and walls by one lasting material, composing really good with concrete and natural wood.
Architects RS+ Robert Skitek
Location Krostoszowice, Poland
Category Houses
Architect in Charge Robert Skitek, Jakub Zygmunt
Area 305.0 m2
Project Year 2016
Photographs Tomasz Zakrzewski
Manufacturers Loading...
客服
消息
收藏
下载
最近




































