查看完整案例


收藏

下载
房屋,美国
设计师:Walker Warner Architects
面积: 3600 ft²
年份:2019
摄影:Matthew Millman
设计负责人:Greg Warner
高级助理:Clark Sather
项目经理 :Amadeo Bennetta
室内设计 : Philpotts Interiors
景观设计 : Dan Pearson Studio
建造者:R.S. Weir General Contracting
国家:美国
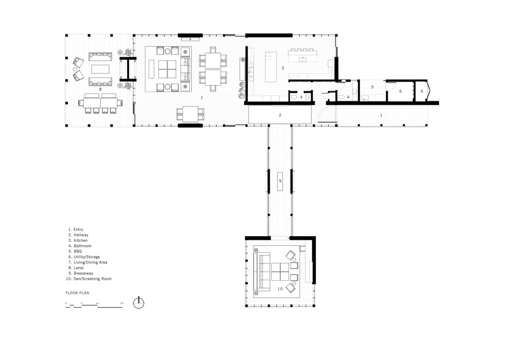
Kalihiwai馆位于可爱岛(又称“花园岛”)上,是14英亩沿海物业的最新建筑,坐落在俯瞰太平洋和周围群山的风景秀丽的悬崖上。 多功能凉亭的构想是一个灵活的聚会空间,房主经常招待来访的客人,可以举办各种私人聚会,从家庭聚会到社区活动,最多可容纳400人。
为响应环境的元素之美,设计团队通过设计强调透明性和与室外的连接以捕捉岛上奇特自然风光的结构,迎接了创建如此高度适应,宽广感和人性化空间的挑战 的环境。
该设计充分利用了夏威夷的海风,这是因为主起居区设有宽大的推拉门,而门廊则提供了进入这些元素的通道,同时又保持了阳光的遮挡。 精心选择了耐久的硬木和石灰石材料制成的天然饰面和泥土色调,以承受热带雨,风和日光的剧烈照射。 独立的入口为酒店提供了双重用途:更大规模的聚会场所适合较小的聚会场所,大型通风道入口可直接进入草坪进行较大聚会。
对于这个现代化的展馆,建筑师巧妙地利用了壮观的环境,使建筑看起来像落在地面上,而远处却像漂浮的灯塔一样。
项目完工照片 | Finished Photos
客服
消息
收藏
下载
最近

































