查看完整案例


收藏

下载

翻译
Premeditation, transparency and marketing as the basis of corporate identity are the starting point for new modern central office building of company Gumex Slovakia.
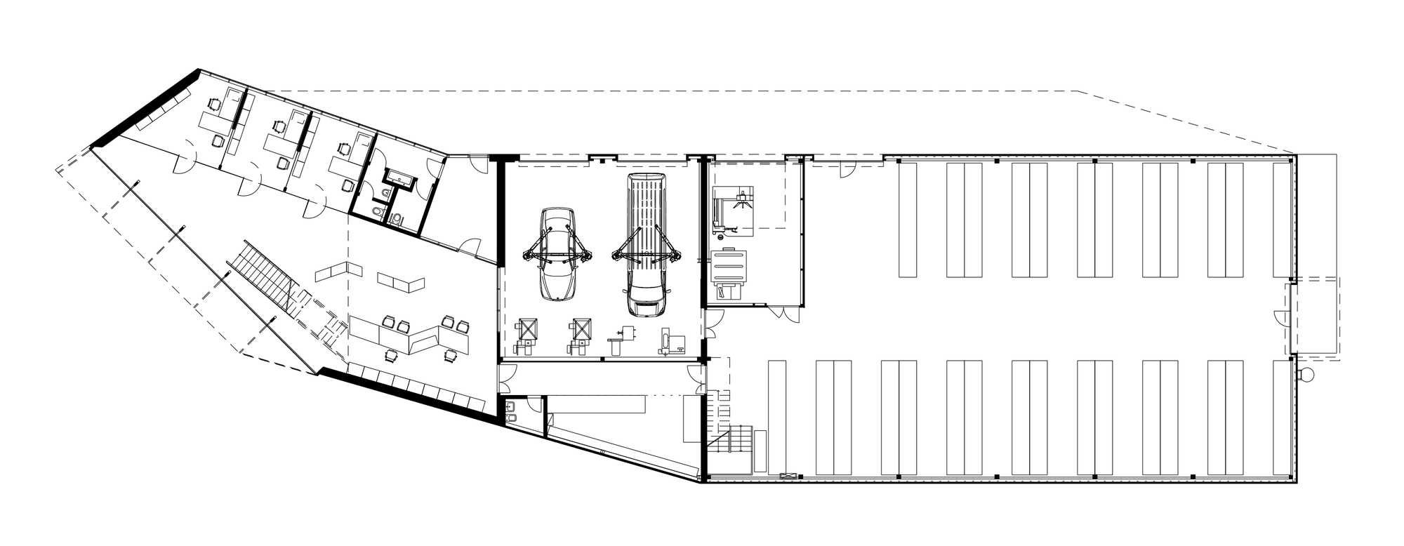
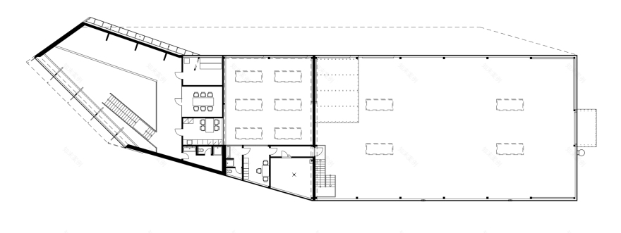
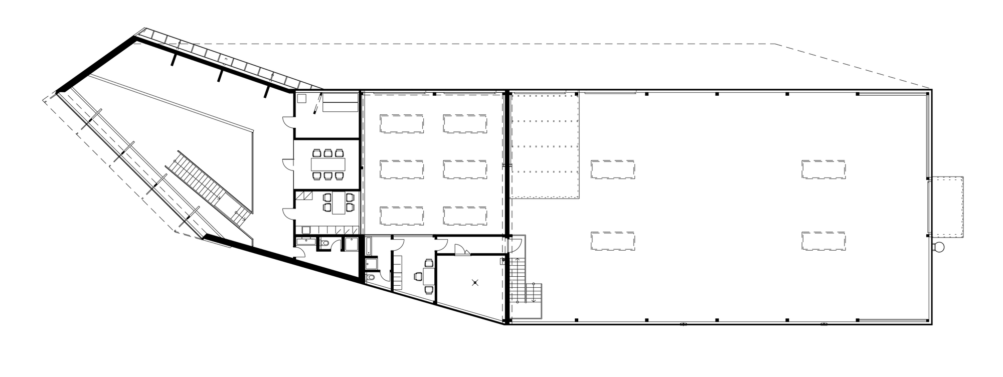
“Openness and transparency towards their clients “ as a strategy of corporate policy, the starting requirement for new central office building of company Gumex Slovakia. The site is located in the triangle, formed by crossing of two roads - R1 expressway and Cabajská road. The advantage of the building site is its position in terms of marketing. The strategy of the company is reflected in the design itself. Therefore, the new building is designed to be visible from the surrounding roads and reflects the operation of the area and the fire distance from the surrounding buildings.
New building is situated by its longitudinal side parallel to the speed way R1. An administrative and sales part are located close to the Cabajska street. The big glass wall opens the view to the sales part. Consequently, the big space in the middle of the building will be visible from the both sides of the building and will be shining during the night trough the glass walls.
Product Description:
客服
消息
收藏
下载
最近


























