查看完整案例


收藏

下载
办公空间入口交流区 ©摄影师张超
理念阐述 -- “无界之诗”
无界是一种状态,代表了开放的心态,对待任何可能性的包容;无界更是一种理念,它就像“雾”,看不见边界,但无处不所及。
雾的起源
从首层看向中庭空间 ©张超摄影工作室
区位分析图 ©一乘建筑
该项目位于深圳宝安区内,沿街处的一栋 5 层楼的空间改造项目,以空间探索者的角色,寻觅更多可能。
“无界”
办公室二层空间 ©张超摄影工作室
我们通过一次次与甲方同事交流中,感受到的一种企业文化,无论是与哪个岗位的同事对接,都能感受到大家对于可能的兼容,以及不断尝试的突破心态、对卓越的追求。
正是这样体验让设计师感受到了强大的企业文化,于是我们想把这样的观念以空间体验的形式表达出来,让大家在为企业为社会创造价值的时候,也被有这样价值观氛围的空间包裹。
概念分析图 ©一乘建筑
以“无界”的理念为基点,尝试突破原场地每层楼的独立界限,在保留原有垂直交通动线的基础上将三层楼的楼板释放局部界面,形成一个无形的腔体,来突破空间与数据的界限,增加人与人,人与空间之间的“跨界”对话。
现场与建成的对比照 ©一乘建筑 - 张超摄影工作室
“无限延伸的线”
一楼通过对原有层高的利用,来构建一个无限延伸的空间使用可能,改变原有楼梯的走向方式,设置连廊,连接原有楼梯与新空间,呈现一种开放轻松的状态,接待区周围上下动线互不干扰,又可联动交流。
空间生成动图 ©一乘建筑
“克莱因蓝雾”的生长
首层入口交流区 ©张超摄影工作室
无限延伸的蓝色的“线”
蓝色楼梯 ©张超摄影工作室
“当我们走近一些,它好像是运动的,这一秒还是退到远处看到的天空,下一秒又像海浪翻滚,要将人吞没;正因为蓝得最为纯净,在它面前我们能想象一切”。
这是对克莱因蓝的感受,也是我们使用在空间中的缘由。
渗透的“克莱因蓝雾” ©张超摄影工作室。强烈纯净的色彩与原始墙面鲜明对比,保留原始建筑留下的印迹与故事,也是一种新旧融合与对话的姿态。
新与旧的碰撞 ©张超摄影工作室
原始楼梯的利用 ©张超摄影工作室
裸露原始楼梯的结构加固 ©张超摄影工作室
“克莱因蓝雾”的中庭 / 垂直联动空间
垂直空间维度上,打破局部界限,以克莱因蓝雾为线索,与一楼夹层呈有形的链接,靠近外立面主采光面,在垂直区域中置入了一个“光雾化的容器”,光线融入的同时,增加人活动与视线交互,激发不同的互动关系。
透过“克莱因蓝雾”的中庭 ©张超摄影工作室。我们想构建的,并不是固定的某种空间结构或形式,只是在设想人与空间联系后,与场所产生更多的可能性。
上下联通的“克莱因蓝雾”中庭 ©张超摄影工作室
“克莱因蓝雾”中庭与楼梯 ©张超摄影工作室
“克莱因蓝雾”中庭 ©张超摄影工作室
“克莱因蓝雾”的渗透 / 微休闲空间
蓝色中空部分周围设置的是一些休闲空间以及廊道,像是不同方式的眺望,而人在眺望的时候也恰好是放松的时候。
2F 从吧台看向微休闲空间 ©张超摄影工作室
在后期的使用过程中会发现,短暂停留放松的休闲区域,即“微休闲空间”使用频次最高。
该项目中每层办公区域设置了两个微休闲空间,可站可坐的茶水吧,与中空旁边的独立吧台,其中对独立吧台与眺望平台的长度控制,符合 2-3 人同时使用,促进有效交流。
3F 微休闲空间 ©张超摄影工作室
4F 微休闲空间 ©张超摄影工作室
水平联动区域
吧台作为活动功能聚焦点,各层集中设置,位置选择布置在交通空间附近作为联动其他功能的区域。
1F 吧台造型整体统一,像一些悬挂的“黑盒子”,自然形成区域感。
1F 吧台交流区 ©张超摄影工作室
2F 吧台交流区 ©张超摄影工作室
3F 交流吧台 ©张超摄影工作室
3F 会议室 ©张超摄影工作室
多功能模型室
模型室位于一楼的灵活办公与接待区,灵活使用三种状态:模型制作模式、材料展示模式、选材模式,满足多功能使用。
1F 多功能模型室分析图 ©一乘建筑
1F 多功能模型室 ©张超摄影工作室
爆炸图 ©一乘建筑
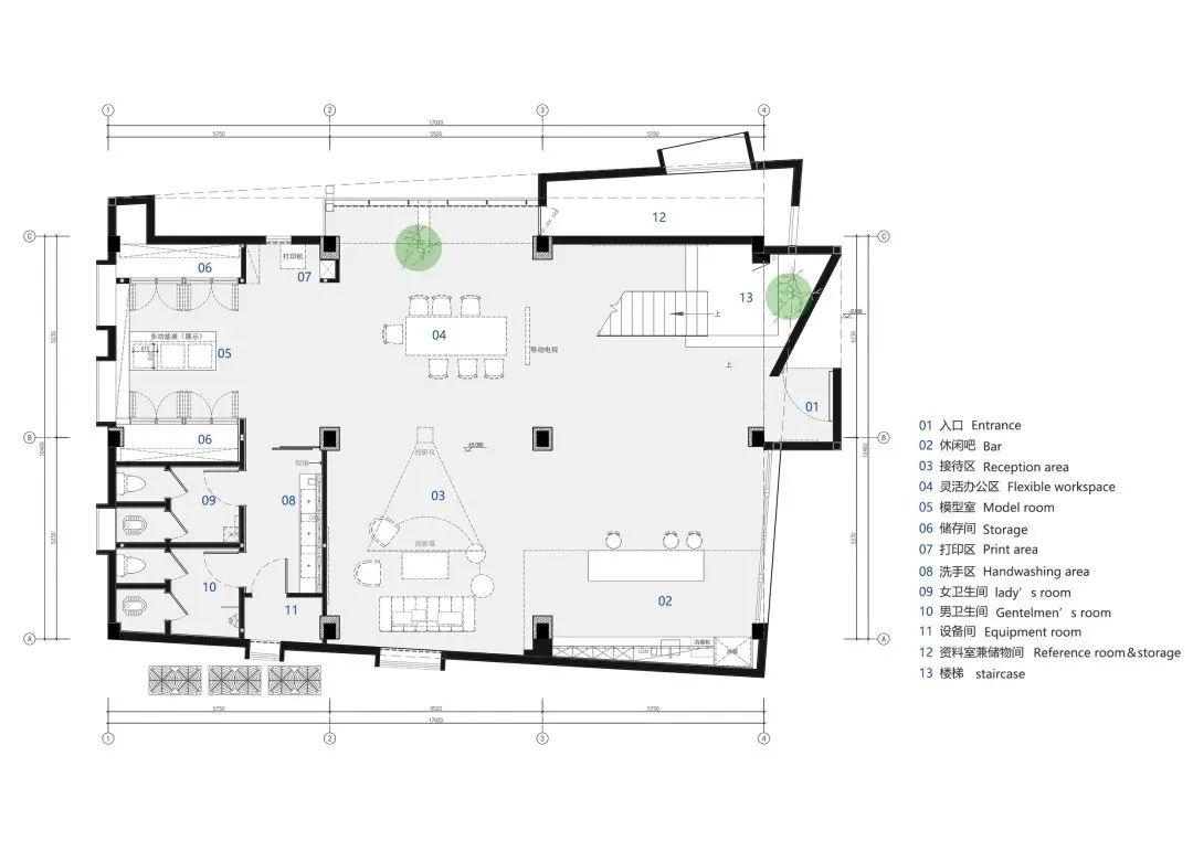
1 层平面图 ©一乘建筑
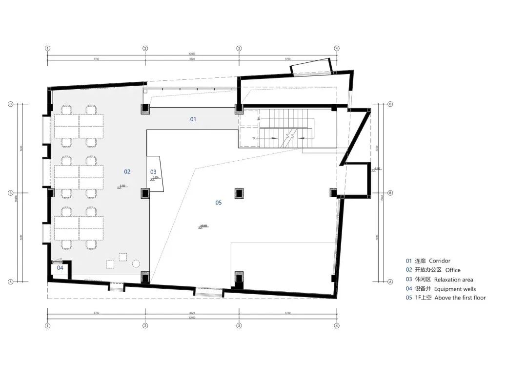
夹层平面图 ©一乘建筑
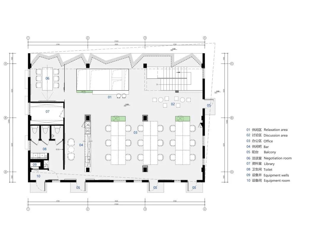
2 层平面图 ©一乘建筑
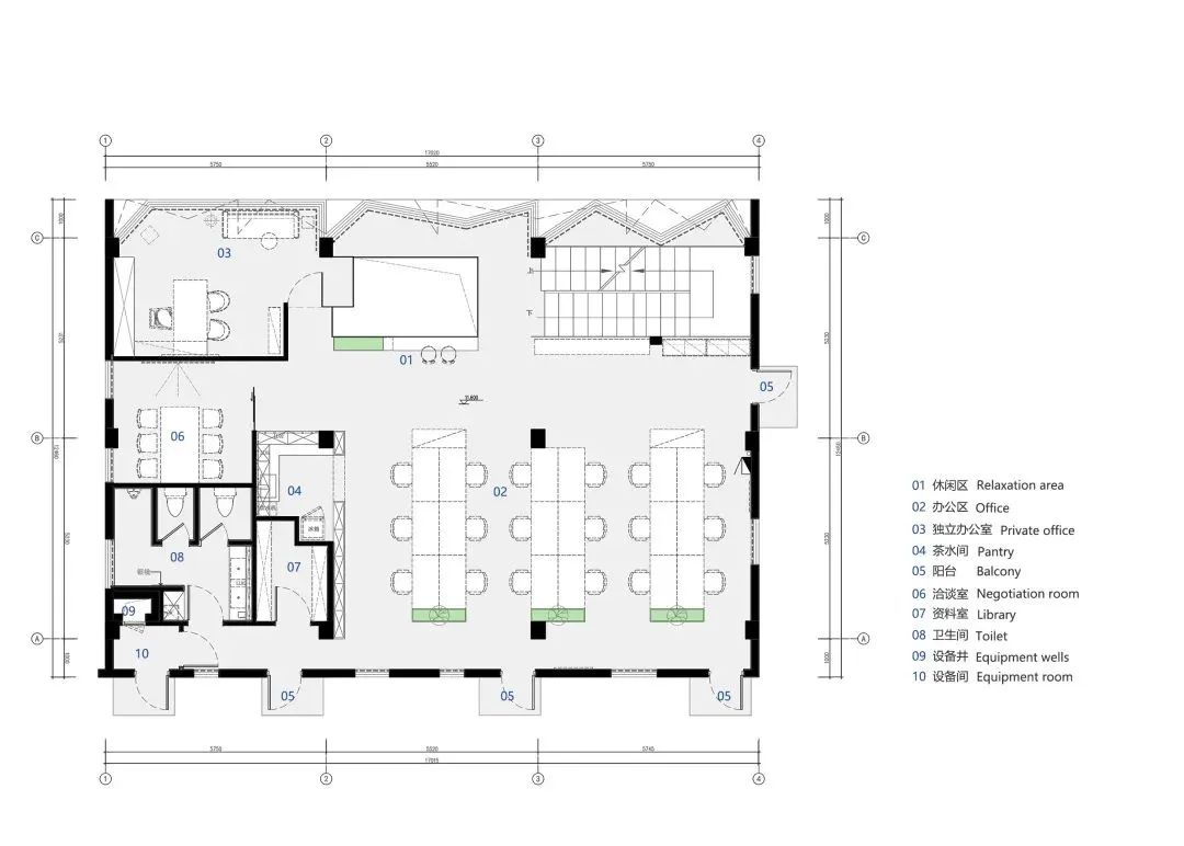
3 层平面图 ©一乘建筑
4 层平面图 ©一乘建筑
项目名称 | 无界办公空间
项目地点 | 广东,深圳
项目面积 | 998 平米
设计时间 | 2022 年 2 月
建成时间 | 2023 年 2 月
设计单位 | 一乘建筑
主持设计师 | 王晶晶
设计团队 | 贺子英、林国祥、张小龙、章加勤
摄影团队 | 张超建筑摄影工作室
一乘建筑,出发于空间的媒介属性,立足于“一”,继而进行建筑的原发性思考,触发与世界的趣味性联动的多种可能性。“乘”谓之“基本与根本起点的变化与转移”,从而介入未知领域的多元化实践。不止步于“建造”与“完成”,以空间的延续性为引,创建更为真实贴近生活的发生场所。
起始于建筑师张博与王晶晶对建筑思考与实践的热爱,一乘建筑于 2015 年成立于中国深圳。事务所的构成包含规划师、建筑师、室内设计师、工匠等多元化背景的专业人士。我们更加注重建筑的整体性、启发性、过程性、落地性,通过多方的设计交流,结合创意、材料、工艺、成本、施工、限制等诸多因素的过程性思考,在“启发”到“落地”的各方关系之间,通过建筑设计的系列化解决方案的定制,构建一个文化和精神体验过程的同时,也可实现一个最为舒适的空间体验。
新时代、新现象、新矛盾的城市现状之下,我们更加关注看似无序实则有机生长的城中村、充满时代烙印的工业厂房和前沿的艺术创意社区以及互联网时代诞生的新兴产业形态,并通过体系化的设计思考与实践给予回应。面对信息过载的大时代背景,我们坚信:设计是一种研究、提炼、内求、过程、转换的新职业诉求,通过草图和模型的推敲方式,形成了事务所相对秩序化的工作习惯。
客服
消息
收藏
下载
最近





































