查看完整案例


收藏

下载
现代建筑空间被赋予了更多的艺术形态,不禁引发设计师对于居住空间的重新思考,空间究竟该是什么样子的?
设计师通过对现代消费人群深入调研得出结论“居住空间应该回归最初的样子,舒适、自由,以人为主导核心”。
秉承这一理念,通过对现代都市年轻人居住理念以及生活态度的观察,融入当代艺术与美学风尚,打造以人为核心的精神空间。
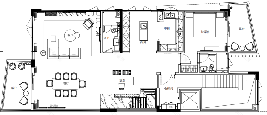
客厅与餐厅、茶室、西厨自成一体,在自由的空间中,追求国际顶级豪宅的质地和美感,同时融入流行的国际东方视觉,大道至简。
没有过多浮华、艳丽的色彩,却散发出别致的气韵,照应着人们内在的舒心与安宁。
长辈房,色调沉稳内敛,木饰面拼花背景墙极具韵律变化,庄重大气的床品静淌,调适出一种精致心境。
家庭室,以灰色系为主基调,采用如海水般图案的壁纸,与湘江景色相呼应,让风景融入生活,让阳光注满室内,打造舒适休闲区。
主卧,硬装采用皮革浮雕工艺展现出强烈的精致感,将颜色主要集中在床品上,用素雅高级的灰色,突显质感。
步入开敞式衣帽间,以虚实错落的自由姿态,实现合理分格且各异其趣,夹丝玻璃、镜面的精心设置,虚实交融,让空间有效舒展又凸显层次。
女孩房,以马卡龙色为主色调,不同层次的低饱和度粉色和清新的蓝色进行融合,营造出细腻而活泼的情绪氛围。
▲男孩房
一杯红酒,香醇的口感让身心得到完全的解放。在外,是绅士的品格;在家,是自由的灵魂。
以简约的线条、优雅的色调、至臻的细节以及非凡的型格,让设计与品质生活完美融合,承载一种大气不失雅致、低调却富内涵的生活方式,实力演绎都市新贵的居住典范。
▲三层
▲四层
项目名称:长沙珠江颐德公馆叠墅E1户型
业主单位:长沙固业工程有限公司
项目地点:湖南长沙
软装设计单位:美致空间
-END-
▲美致设计团队
客服
消息
收藏
下载
最近



























