查看完整案例


收藏

下载
楚辞有云:“浩浩沅湘,分流汨兮。”千百年来,湘江水浪滔滔,奔腾不止,浸染着湖湘文化,写下了浓厚的历史人文底蕴,也渐渐融化为这座城市的品性,弥散着清幽雅致的东方意蕴。
入户玄关,开门见山。大理石流动着的纹理,仿似在诉说着“一水护田将绿绕,两山排闼送青来。”
会客厅处处透露着对东方清雅生活意境的美好追求。汲取了水乡的湖蓝色,清雅的色调与现代简约形制融构于一体,在空间中铺陈出别有风致的现代中式美学意涵。
水纹的柔美点染于抱枕、地毯上,材质舒适而温婉。石材茶几加以精巧绝美饰品的轻微点缀,让空间在质朴雅致的意境中又提炼出一丝丝的当代气质与空间契合。
中式餐具的东方情韵,融入现代化的装饰手法,现代与传统的张弛收放,不动声色地展示了现代别墅应有的大气与格调。
品茶,也是文人的一种雅好,地清境绝,雅室焚香。以茶待客,乃古代人情交际的礼节,带来一种清幽隽永的意境,更被视为风雅之事。
走入老人房,一派“鎏金岁月”光景,宁静素雅的空间调性中运用了高贵金与黛蓝色注入活力,胡桃木饰面的沉稳、丝质软包的优雅、古典瓷器的温润,在艺术中沉淀生活的品位。
搭载了一个微缩的宇宙空间,将天马行空描绘得生动有趣,让孩子在这自由的空间中发挥无限的想象,探索星空宇宙的奥秘。
淡粉色的公主房,甜美又不失坚强,不管是贝壳造型的床背,还是白雪公主主题的挂画,每一种都在宣示着小公主可爱的领地。
琴房空间自然雅致,柜中错落的藏品、盆栽及挂画体现主人不俗的品味外,更营造了静谧的空间以供思考、交谈。
背景墙采用山水人文画作,浓郁的书香气息,突显温润质感。简雅大方的家具,中式纹样的床品,深灰与湖蓝的互映搭配,现代设计与东方文化的交织相融,品质承袭,色泽典雅。
茶香墨韵,书里芳华。案上设有笔墨纸砚,古物与雅玩,安放主人随性而起的诗意,展经史、阅书画,更以香炉焚香静气,为书案萦绕烟云,营造隽逸尔雅的书香氛围。
家庭厅的设计简雅大方,浅灰、木棕与湖蓝色互映搭配,现代家具的简约品相与饰品上装点的中式文韵交织相融,呈现空间丰盈且极致的内在精神。
一个茶香墨韵的收藏室,便能窥见主人的身份与品位,庄重典雅的氛围流露出深厚的文化底蕴,让人想一探究竟。
琴卿皆醉,满室风雅。静酿优雅,对话时光,将迁人骚客的情怀风骨融入设计。
在清净的空间与时间里,用平凡而朴素的物件,仔细诉说对东方清雅生活意境的追求。在繁复的城市生活中,以这样一处安静而有知味、透着厚度与质感的所在,安放身心,满足人们对家的期待。
▲ 一层
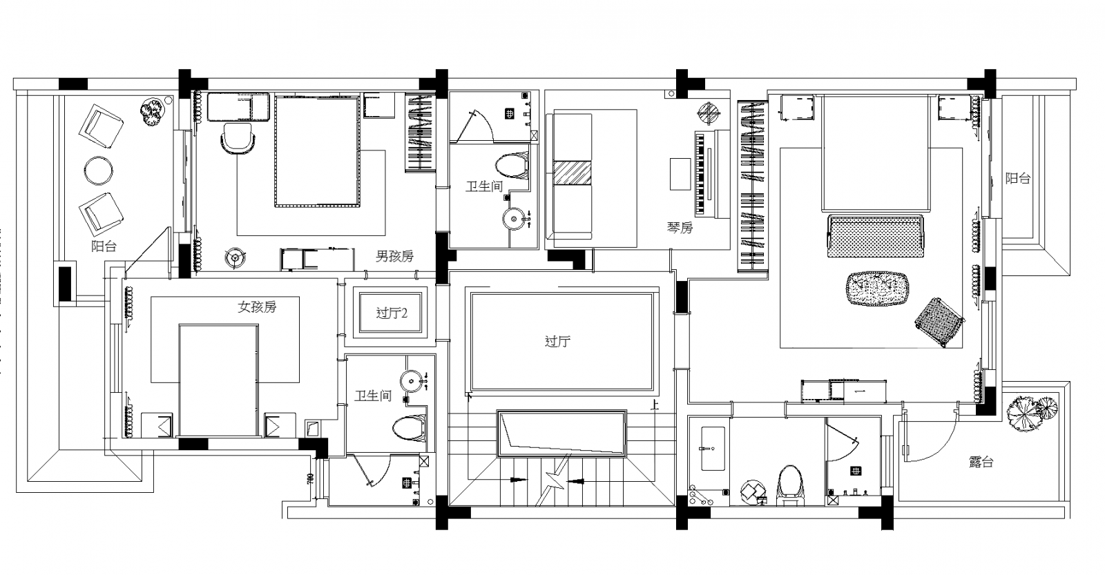
▲ 二层
▲ 三层
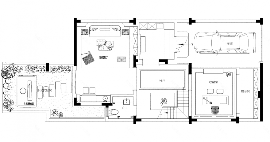
▲ 负一层
项目名称:长沙.大唐印象一期D25#楼
业主单位:大唐集团
项目地点:湖南 长沙
软装设计单位:美致空间
-END-
▲美致设计团队
客服
消息
收藏
下载
最近






























