查看完整案例


收藏

下载

翻译
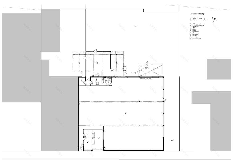
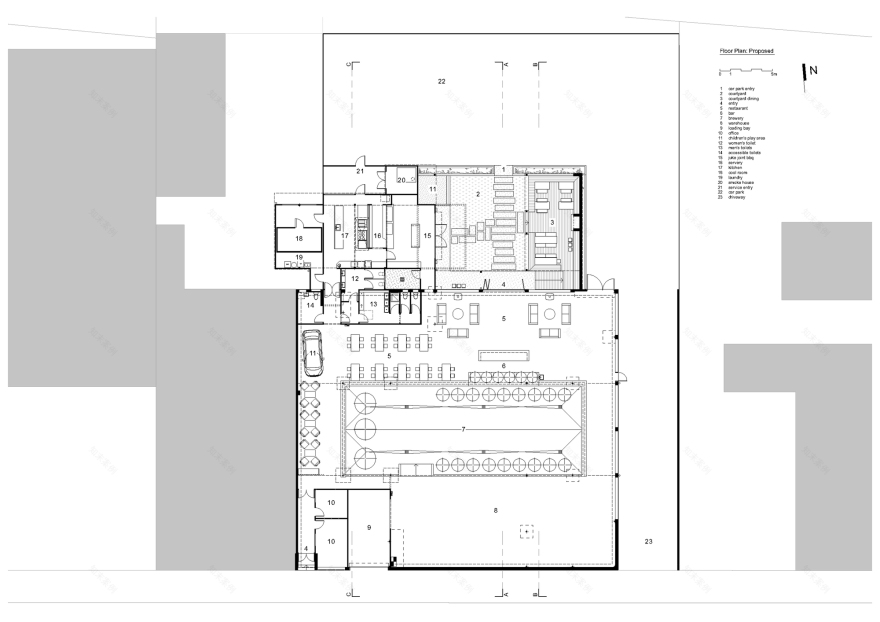
This project involved the adaptive reuse of a 1960’s warehouse into a craft brewery, restaurant, commercial kitchen and bar with a north facing courtyard and covered outdoor dining area.
The building is on a city fringe site located on the boundary of a mixed use and a residential zone, the latter dominated by Victorian character houses. The buildings public spaces are located at the rear of the building, the warehouse and brewery act as a buffer between these spaces and the character homes across the street. This also benefits the buildings new courtyard space, it receives sun all day, is protected from the prevailing winds and is furthest from the residential homes.
In this outdoor space we used timber and landscaping to provide relief from the harder surfaces of the old warehouse, while on a larger scale the courtyard provides a relaxing retreat from the city and a reward for those keen to seek out this tucked away site.
The courtyard also offers a warm welcome to customers entering from the car park, including families with small children who are enticed with a sand pit and a family friendly environment. The general fit-out inside is industrial but with a warm and inviting feel and while the main space is large it is not overwhelming. This is in part due to the brewery and bar occupying a central area in the old warehouse and breaking up the large floor area into different zones, the new brewery walls and bar are the only built elements that been inserted into the main space.
The brewery walls are simple masonry block, 1.2m high and capped with a concrete bar leaner, connecting the customers with the brewing process. While the low island type bar is designed to be more informal and welcoming than traditional bars, allowing bar staff to engage with customers more easily as they discuss the flavours and intricacies of the extensive beer range.
In the restaurant and bar the existing brick walls were sandblasted and concrete columns retained their distressed paint. In contrast the old offices, now the Juke Joint servery, were given a lighter touch. The walls were tiled and softer colours used, giving the spaces a distinctly different look and feel. In the Juke Joint customers are served authentic American BBQ by one of the chiefs at a servery and are then free to find a seat in the courtyard or one of the many seating options in the restaurant area.
As part of the project a structural upgrade was required to accommodate the new use of the building, which included earthquake strengthening to 100% of New Zealand's building code. The building was already using steel roof trusses to support a saw tooth roof, the project’s structural engineer inserted an abundance of new steel alongside this and throughout the building.
All steel was painted black, blurring both old and new and allowing the new steel to appear less obtrusive. In addition to this new steel beams are used as display shelves and columns and braces help divide spaces or create corridors.
This is a project where the architect and the client collaborated throughout, navigating the long bureaucratic process together as well as the design and construction phases. As an architecture practice we believe strongly in a collaborative approach and we are always heartened when the results are as fruitful as this one has been.
客服
消息
收藏
下载
最近

















