查看完整案例


收藏

下载
©DONG
北京 LONG 街城市更新项目地处北京,城市中轴线北延长之上。LONG 街是一个城市更新项目,原建筑为廉租公寓,地上面积为 9.54 万㎡,由数座四层建筑组成街区,一条城市道路穿过地块。业主希望改造后的项目以全新的街区氛围塑造北部城区商业的新中心。
©DONG
©DONG
©DONG
传统的商业街是线形的,顾客从一端走到另外一端。在北京 LONG 街的设计中,平面流线被延续到立面上,通过室外楼梯的设置,形成了一个可以“飞檐走壁”的立体商业街。行人跟随兴趣,上上下下地探索,很容易就会往更高的地方攀爬,从而提升了上层商业的人气,勾勒出一幅“空中街市”的生活场景。
©DONG
©DONG
LONG 街因为优秀的城市更新设计获得“北京最美街巷”的荣誉,并入围北京城市更新最佳实践。LONG 街的成功不止是因为立面形象的标识性,更是它的开放与包容,它与城市融为一体,它不同于高端的购物中心,它服务的人群是普通百姓。任何人都可以在这里找到舒适的空间和生活状态。
©DONG
©DONG
©DONG
为了商业之间更好的联系,设计将城市道路改造成一个开放的商业景观,新建两座跨街天桥将道路两侧建筑联系起来。因为是改造项目,原有的建筑结构和空间都需要保留或加以利用,改造用钢结构打造出多层次的环形商业主动线。
©DONG
©DONG
©DONG
通过立面增配扶梯和步行楼梯,将一至四层的商业流线联系起来,赋予了高层空间更多商业价值,并为行人提供了更多休憩场所。设计重新分割了室内空间,使之满足商铺的使用。
©DONG
©DONG
©DONG 设计为原建筑披上一件新“外衣”——木色“格栅”表皮,这是从古建筑构件里提炼出来的设计语言。“格栅”在视觉和空间上起到了隔而不断的效果。同时,格栅结构又可以避免日晒,强化通风采光,标准的外墙格栅模块组成了一个系统,可以根据日照通风需求进行旋转调节,形成不断变化的节奏,好似水墨山水画卷绵延不绝。
©DONG
©DONG
©DONG 传统造型的木色阳台为商业提供了额外的外摆空间,它们凸出在“格栅”之外,与扶梯一起成为立体交通的建筑符号,顾客可以根据这些特别的提示,规划自己的购物流线。
©DONG
场地原状
场地原状
草图
总平面图
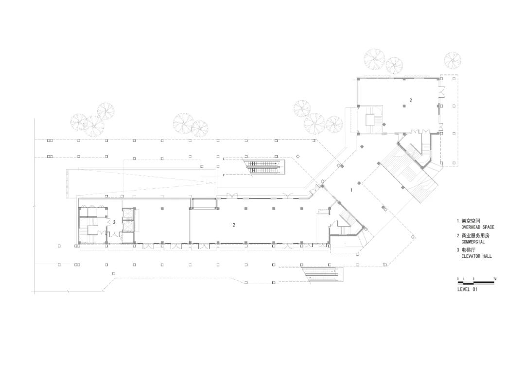
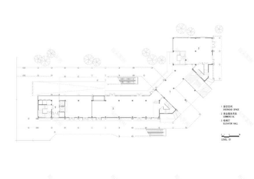
一层平面图
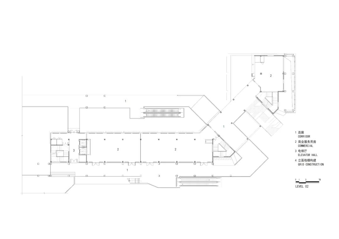
二层平面图
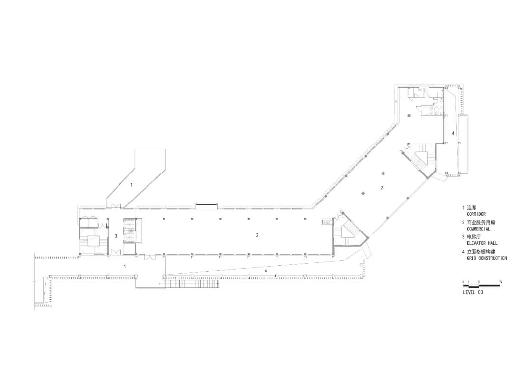
三层平面图
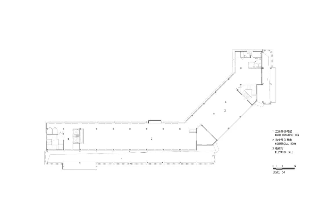
四层平面图
连廊二层平面图
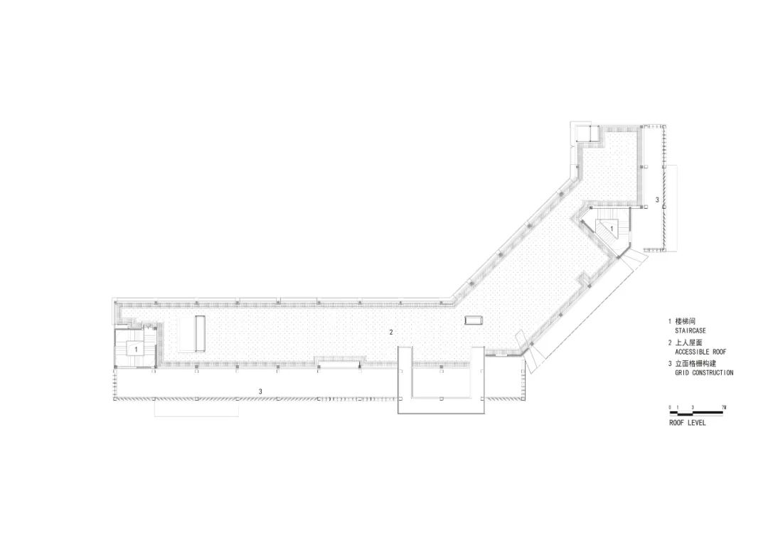
屋顶平面图
立面图
剖面图
改造分析图
模型
项目信息
项目名称:北京 LONG 街城市更新
设计单位:ZEN 正象设计
项目完成年份:2023.06
占地面积:29,936.9m²
建筑面积:75,106m²
项目地址:北京昌平区
主创建筑师:魏一鸣、孔德恺
摄影师:DONG 建筑影像
设计团队:丁玉生、胡波、林佳叡、张文婷、陆潇、何艺帆
委托方:北京首都开发股份有限公司
施工图设计单位:北京天鸿圆方建筑设计有限责任公司
景观设计单位:凯盛上景(北京)景观规划设计有限公司
展陈设计单位:悟悟建筑设计咨询(北京)有限公司
幕墙设计单位:北京标高时代工程咨询有限公司
客服
消息
收藏
下载
最近




































