查看完整案例


收藏

下载
家的简介
这是位于江苏南通如东的一套毛坯,屋主夫妇在当地经营着一家宠物生活馆,白天他们的工作主要是围绕着宠物,所以他们希望回家之后,会有放松的环境可以让他们卸下一天的疲惫,享受属于自己和女儿的温暖时刻,还有他们的毛孩子们。
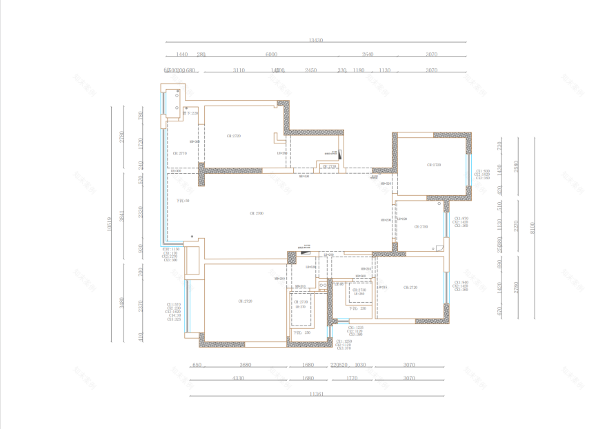
🔜原始户型图:
1:入户缺少玄关及收纳,门厅缺乏私密性,整个客餐厅一览无余。
2:厨房空间狭小,北边仅有的采光让厨房空间显得有些压抑,操作区域勉强只够中厨使用,而且无法容纳屋主想要的双开门冰箱。
3:西南卧空间狭长且浪费,东侧的隔墙让整个客餐厅空间显得有些逼仄。
4:主卧进门对着承重柱的阳角,过道狭小且昏暗,体验感极差。
🔜平面布置图:
1:正对大门的位置设计一组收纳柜作为鞋柜使用,通顶的柜子规避了入户门与卫生间门相对。收纳柜的南侧与餐桌相连接,一部分柜内空间可以充当餐边柜使用,矮柜的台面上可以放置了常用的小家电。
2:厨房设置了三联动移门,最大限度地释放了过道空间,我们在厨房与客卧之间开了一个采光洞,这样能够提升厨房的采光和空间体验感。
3:为了满足男主人想要一个开放式书房的想法,南次卧与客餐厅之间的隔墙被全部打开,仅保留承重结构,这样从空间上与客厅相连,书房南面的采光将原本昏暗的餐厅变的更加敞亮,也扩大了客厅空间尺度。我们还在靠近入户门墙角处为屋设定了一块更衣区,这样做可以补充入户收纳空间的不足。
4:我们将主卧的开门方向移至客餐厅之间的过道处,这样规避了进门对着柱子的尴尬场景,床尾的一排衣柜能够满足屋主的日常储物需求。原来的门洞堵住之后,北边的一侧的空间更加完整,我们将台盆柜移至主卫之外,台盆的一侧也设置了一组收纳柜,方便屋主日常洗漱用品的收纳需求。原本的狭小的主卫空间在经过空间优化后得到改善,主卫的干湿区分离设计提升屋主使用的体验感。
🔜门厅:
🔼改造前
🔼改造后
1、改造后在入户门正对的位置设置了一排收纳柜,收纳柜与餐桌相连,不仅能补充餐厅的收纳需求,还避免入户门正对卫生间门的尴尬场景。
2、门厅收纳柜的吊柜背面设置了一排开放架,开放格内放置了屋主常用的一些小家电,在满足日常收纳的同时,其内置的灯带为餐厅及过道区域营造出良好的氛围感。
3.在设计玄关柜时,我们结合了餐桌的功能需求,下柜划分为两部分,朝门厅的一侧作为鞋柜收归,靠内的一侧以及吊柜作为餐边柜使用,餐桌的桌面一直延申至玄关柜内侧,让整个空间更加协调统一。
4.入户衣帽间的地台设计一直沿用至北卧,地台的实木材质弱化了公区灰色地砖的冰冷感,原本并不宽敞的空间变得更加丰富起来,增加空间的趣味性。餐桌与玄关柜相邻的一侧设置了一排移动插座,方便用餐时的用电需求。
🔜客厅:
🔼改造前
客厅沙发背后用深灰色的护墙板作为背景,深色的背景让沙发的材质最大限度的得到提升,护墙板不到顶的设计是为顶面照明提供了空间,两侧的圆弧收口衔接减轻了承重墙体的的厚重感。
因为客厅电视墙与餐厅冰箱柜相连接,为了整个墙面的完整性,我们用与墙面颜色相统一的米白色墙板与木纹格栅相结合作为电视背景,背景墙中间预留了电视的空间,木格栅的横向排列拉长整个墙面的长度,让空间到达很好的视觉效果,墙面的门洞与电箱也设计融入在整个背景墙中。
🔼改造后客厅角落摆放了来自法国品牌Ligne roset 的TOGO系列,它酷似毛毛虫的外形深得屋主的喜爱,屋主经常会在这里享受她的休闲时光。
🔜餐厅
🔼改造前
门厅玄关柜与餐桌相连接,弱化了餐桌在空间中的孤立感,四周形成的洄游动线让整个空间动线更加流畅。
我们将入户门南侧的空间作为入户衣帽间,地面整体抬高的设计,让开放式的空间与过道形成区域分隔,但又不会让空间变得拥挤,其底部的灯光提升整体空间的层次感。
站在入户衣帽间看向餐厅,衣帽间一侧的全身镜方便屋主日常更衣需求,而且还放大衣帽间的空间尺度。
🔼从门厅看向客厅
🔼餐厅局部
餐桌上方的一字平板吊灯增强餐厅空间的序列感
🔜厨房
🔼改造前
🔼改造后
厨房采用了浅色的整体橱柜和与墙漆色相近的哑光砖进行搭配,整体的浅色让原本空间紧凑的厨房不那么拥挤,厨房与隔壁客房之间用一个采光洞拉伸了厨房的视觉宽度,厨房的采光也得到了改善。三联动的推拉移门让厨房可以保留尽可能大的通道
🔜书房
🔼改造前
书房采用了全开放式的设计方式,连接客厅的一侧承重墙上设置了一排开放书架,书架对面就是屋主的书桌,书房上方也同样放置了整排的吊柜,满足了屋主关于书籍摆放及收纳的需求。
🔼从餐厅看向书房
🔼从阳台看向书房
男主人是一个自由画家,书桌北侧靠墙的位置放置了一个实木画架,每当夜深人静时 他就会沉浸在自己的画境之中。在书房北侧的衣帽间下口,我们给屋主的小宝贝们预留了栖息的场所,专门定制了镂空的柜门。
🔜主卧
🔼改造前
🔼改造后
卧室北侧是屋主的位于洗漱与卫浴空间,因为女主人的睡眠质量不高,我们用同样的深灰色的木质推拉门将睡眠区与洗漱区分隔开,动静分区能够给屋主营造出一个好的睡眠环境。
🔜主卫
🔼改造前
🔼改造后
马桶的西侧墙角处在设计时利用墙体结构的落差挤出了一块收纳空间,看似狭小的空间给屋主提供了安放清洁用具的地方,马桶边的收纳空间还是非常实用的。
🔜次卧
🔼改造前
🔼改造后
客卧定义为临时备用房,平时既可以作为屋主的补充收纳区
在客卧可以透过百叶帘看到厨房内部空间,让原本狭小的卧室视野得到拉伸,为空间增添了趣味性。
🔜儿童房
🔼改造前
🔼改造后
儿童房沿用主卧的咖色基调,粉色的书桌点亮了整个儿童房空间。因为空间的限制,靠窗使用了榻榻米床,但是为了提高舒适性,在床垫下方预制了排骨床架,底部镂空增加了床垫的透气性。
🔜阳台
🔼改造前
🔼改造后
南阳台不仅作为屋主的洗衣晾晒区,在阳台中间的位置还给毛孩子们预留了狗厕,真心贴心又周到。
▼ 拍 摄 感 悟
狗狗永远保持快乐的秘诀就是时常能感受到生活的乐趣味,理解狗狗,成为狗狗,未来每一天的期待,以家为起点,从温馨舒适的生活环境出发,品味细节中的爱与被爱,人与宠物的和谐关系,家与生活的互融贯通,Future prospects :
客服
消息
收藏
下载
最近






























