查看完整案例


收藏

下载
-家的简介-这是位于江苏南通老城区的的顶楼复式,虽然房龄已经将近30年,各种配套设施也已经老旧,但是屋主在这里出生成长,经历了人生中的前三十年,对这个老宅有着深厚的情感,但是日益衰旧的装修设施对他们的生活造成了一定的困扰,他们决定将老宅进行翻新改造,为此我们从整体空间设计入手对这个顶楼复式老宅进行了改造,赋予它新的生命力。
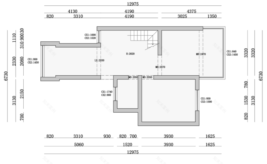
一楼原始户型图
1:入户缺少玄关收纳,无法满足屋主日常收纳需求。
2:厨房南北进深长,使得门厅空间占比缩小,空间略显拥挤。
3:客厅与餐厅之间的隔墙不仅阻碍了南侧的采光,还使得整个客餐厅空间异常压抑且逼仄。
4.二层卫生间空间占比偏大,公区空间狭小且采光不佳。
一层平面布置图
1:厨房移门向北内缩,给门厅预留了操作空间,冰箱柜的外侧作为入户鞋柜使用,既满足了屋主的功能需求,又放大了空间的视觉。
2. 拆除客厅与餐厅之间的隔墙,使客餐厅南北空间相连接,将南面的采光毫无保留的引入室内,而且增加南北的通风性。
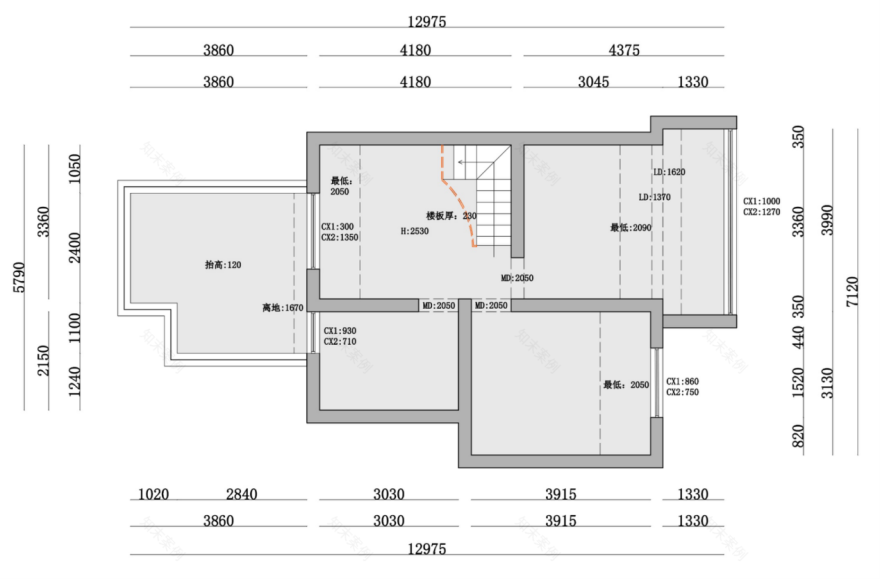
二层原始结构
二层平面布置图
1:卫生间向南内缩,缩小湿区的空间占比,将干区洗漱功能移至卫生间北墙,在靠窗处还放置了洗烘机套装。干区与洗衣区共用了过道空间,而且使其功能更具备灵活性,采光也得到了很好的改善。
2:楼梯北侧作为屋主的茶空间,我们将靠近扶手的地面局部抬高,使其与过道地面形成一个分界,强化了区域的划分,也让整个空间富有层次感。
3.考虑到书房的层高问题,我们将书桌设置在书房的北墙,书桌面向北侧的墙体局部拆除,预留了一个窗洞,不但提升空间的通透感而且提升了办公学习的体验感。
01FORYER://玄关
⬆️改造前
⬆️改造后我们把门厅和厨房之间采用一组通高的鞋柜来隐藏冰箱的位置,让整个门厅看起来更加清爽整洁。同时,厨房门洞也做了整体内缩设计,再加上全玻璃推拉门,南面的阳光就可以轻松涌入厨房,让空间更明亮起来。
我们专门在对门厅的角落处设置了一个简餐区,方便屋主和家人一起享受美食。而厨房延伸到门厅的地柜不仅可以提供充足的收纳空间,还给餐区增添了一份美感哦!而餐区的独立窗更是为屋主创造了极致舒适的用餐体验。
02KITCHEN//厨 房
改造前
改造之前的厨房收纳能力差,设备也老旧,真是让人头痛。
⬆️改造后
我们使用屋主喜爱的绿色地柜和白色吊柜,打造了一个清新欢快的厨房空间!墙面白色哑光面砖搭配白色石材台面,让整个厨房更加明亮清爽
我们采用了U型橱柜布局,让厨房的实用性更加出众。丰富的操作台面和储藏空间,让屋主的日常使用需求得到更好的满足。烹饪、备餐,一切都变得方便又得心应手!
03DINING ROOM//餐厅
⬆️改造前
⬆️改造后我们将屋主心爱的鱼缸设置在餐桌北侧,餐桌与鱼缸相连接增加了整个餐厅空间进深。
楼梯踏步延伸至餐厅空间作为餐凳使用,从而释放了更多的空间给过道。这样的设计不仅实用,还增添了点点小惊喜哦!
餐厅的卡座与楼梯相结合的设计使得餐厅空间更具趣味性。再也不用担心用餐时索然无味,餐厅丰富了感官享受!
餐厅平时除了用餐之外还可以为屋主提供随时办公的需要。
餐厅的南侧紧靠着客厅,南边的采光能够更好的引入到餐厅,明亮的空间给予屋主更好的体验感。
04LIVING ROOM//客厅
⬆️改造前
⬆️改造后客厅顶面的木饰面与卡座材质相呼应,让整个客厅空间更具包裹感。南侧大面的窗户让客厅空间得到更持久的光照。
餐厅的卡座一直延伸至客厅,卡座下方预留了部分开放格设计,这里可以放置屋主平时爱看的书籍。靠窗处搭配了绿色的毛呢沙发,让屋主拥有一个惬意舒适的休闲区。
屋主可以坐在软软的沙发上享受着自己的独处时光。
从餐厅看向客厅,阳光透过白色的布百叶帘给室内带来有趣的光影变化。布百叶赋予阳光独特的气质,让屋主感受家的温柔。
客厅一角
沙发东侧紧靠着卡座,卡座也可以充当沙发的边几使用,下方预留了收纳空间。
05STAIRCASE
楼梯间
⬆️改造后
楼梯相比较原来并没有做大的变动,考虑到楼梯原本的位置相对合理,而且原本楼梯的结构是埋入墙体内,钢材的用料也很厚实,不同于现在做的钢构梯的微震现象,这个踏步走上去非常稳,跟现浇踏步体验感很接近。我们保留了原楼梯的主体框架,将表面的钢板翻新上漆,更换了新的实木踏板,栏杆采用外挂的方式进行安装。拆除了之前楼梯间与客厅的隔墙,让整个一楼的采光得到很大的提升。
站在一楼看向楼梯间
我们在楼梯的平台处的墙面放置了一个壁灯,作为小夜灯使用,踏步的南侧用方管既作为装饰隔断,也可以作为楼梯护栏减少不必要的安全隐患。
楼梯的南北两侧分别是书房和茶室的功能区。
06BED ROOM//卧室
⬆️改造前
卧室用原木色的半高护墙作为床靠背,护墙上方的暗装灯带提升了空间氛围感。
床头采用了白色的悬浮床头柜,轻量化的设计让原本紧凑的空间在视觉上得到放大,床头柜与衣柜相互连接,使得整体空间更加协调。
儿童房墙面采用了局部跳脱的橄榄绿作为整个空间色彩的点缀。
儿童房的设置在靠窗处,这样可以让桌面具备更好的采光条件。
07TEAROOM://茶室
⬆️改造前
⬆️改造后
我们用半高砌筑实墙取代玻璃扶手作为二楼的平台围栏,实墙增加了茶室空间的围合感和私密性,茶室地面整体做抬高处理,与过道形成更好的区域划分
从茶室可以透过玻璃看到书房空间
茶室的储物柜与地台下方设置了隐藏灯带,为屋主饮茶提供了更好的空间氛围感。
茶室是一个能够让人安静放松的场域。
08STUDY//书房
⬆️改造前
二楼书房西侧用一排书柜布满整面墙,错落有致的开放层板减轻整面的书柜带来的体量感,层板上的灯光提供书房空间的层次感。
书房靠窗一角
我们在书房北侧墙面上打开一个采光口,更好地让南面的采光可以引入到楼梯间和茶室区域,而且让二楼空间更加开阔。入口的玻璃偏轴门的设计弱化室内外空间的界限。
09LAUNDRY
洗衣房
我们将二楼卫生间南侧的空间释放出来,作为干区洗漱空间,靠西侧的空间结合斜顶的高度腾出了洗烘套装的位置。原来的窗口处作为现在露台的出入口。
10TOILET
//卫生间
⬆️改造前
一层与二层的卫生间淋浴隔断都是使用了三联动的开启方式,更方便日常使用。马桶背后通过顶部开窗洞的方式增加卫生间的采光。
11TARRACE//露台
⬆️改造前
⬆️改造后露台地面铺设了棕色的防腐木,搭配黑色的铁艺栏杆,妥妥的露营风,在家随时体验露营的乐趣,开阔的视野体验感倍增。
-写在最后-时间是一场有去无回的旅行,总会留下岁月的痕迹。人不如故,衣不如新,房子也是一样。
老房改造不仅仅是翻新那么简单,它存在太多的人和事,一种童年,一种回忆故事,更是一种情怀,熟悉的地方,虽然回不到过去,但他会以崭新的面貌出现再次出现,再一次出现我们的生活。
客服
消息
收藏
下载
最近




















































