查看完整案例


收藏

下载
曼谷的邦纳(Bangna)地区以高速路而闻名,现如今正成为泰国东部经济走廊计划的重要通道。AIA East Gateway作为地区首个提供充满活力、积极友好工作环境的办公楼项目,旨在改变邦纳只有平庸办公楼和尘土飞扬道路的印象。
Bangna, a district in Bangkok known for its highways, is now emerging as a key logistic corridor to the Eastern Economic Corridor of Thailand. AIA East Gateway is the first workplace project that aims to transform Bangna from a place of mundane office towers along dusty roads into a vibrant, active and friendly work environment.
▼项目概览,Overall view © W Workspace
项目挑战了传统模式,人们不再进入空旷的广场等待电梯,然后在单调的小隔间中工作。这里人们首先会迎来入口的水景花园。这个大型生物滞留池,调节水位防止洪水的同时促进生物多样性。由于邦纳位于海平面下,雨季容易洪水泛滥,该水景花园尤为重要。屋顶和生态渠收集过滤的雨水汇入花园,功能和美学融合为一体。
AIA East Gateway was designed and developed to challenge the conventional office tower model, where people enter through a grand but empty plaza, wait for elevators, and work in bland cubicles. Here, people are welcomed by a water garden, a large bioretention pond that regulates water levels to prevent flooding in the area and promotes biodiversity. Stormwater is collected and filtered through green roofs and bioswales. The water garden is especially important in this project, as Bangna is below sea level and prone to floods during the rainy season. The proposal combines functionality and aesthetics in one design.
▼从裙楼屋顶望向大楼
View from podium rooftop © W Workspace
▼水景花园,Water Garden © W Workspace
▼建筑外观,Exterior view © W Workspace
在后疫情时代,居家办公成常态,高密度办公大楼是否仍有需求引发业界的讨论。CC及客户坚信,社交互动和社区环境对于提高团队合作和生产力至关重要。随着在家工作的缺点例如缺乏私人空间变得明显,我们更加确定在当下社会,依然存在对适当工作环境的需求。此外,高密度的工作场所能共享高效能源系统,而非分散成个人家庭能耗。合作也可比独自无交流更快地实现团队目标,就像乘坐公共交通工具比开私家车更速达一样。
There has been a question if high-density office towers are still relevant in the post-pandemic era, when many have adopted work-from-home arrangements. Creative Crews and our client believe that social interaction and community are essential for enhancing teamwork and productivity. As the drawbacks of working from home become apparent, such as lack of personal space and blurred boundaries between work and life, we reaffirm our conviction that a proper working environment is still needed in today’s society. Moreover, a higher-density workplace allows for the sharing of an efficient energy system in the building, compared to individual household energy consumption, similar to mass transportation. Together, people can achieve their team goals faster than working individually without communication, just like taking public transport instead of driving their own cars.
▼动态的外立面增强了塔楼的体块区分,A dynamic facade that enhances the tower massing © W Workspace
▼立面近景,Facade close-up view © W Workspace
▼遮阳格栅和空中花园,Fins & Skygarden © W Workspace
AIA East Gateway的立面采用绝缘玻璃,减少热传递和能源消耗。根据建筑物的朝向计算出遮阳格栅不同长度,创造出动态的外立面,增强了塔楼的体块区分。体块之间突出了空中花园所在的缝隙,形成通往顶部的螺旋效果。
The AIA East Gateway building envelope features insulated glass to reduce heat transfer and energy consumption. The sun shading fins are designed with varying lengths according to the orientation of the building, creating a dynamic facade that also enhances the tower massing. The tower massing is shaped to highlight the gaps where sky gardens are located at different floors, creating a spiral effect that leads to the top of the tower.
▼遮阳格栅和空中花园,Fins & Skygarden © W Workspace
▼空中花园,Sky Garden © W Workspace
▼夕阳下的建筑立面,Facade at dusk © W Workspace
设计通过提供比以前更宜居的环境来吸引人们回到办公室。疫情永久改变了工作方式,新的工作场所需要更多鼓励协作的灵活空间。更多锻炼空间、泳池、慢跑道和亲自然设计元素也促进了更健康和积极的生活方式。可食用花园,景观步道及景观台阶成为这座办公大楼的特色之一。
The workplace design aims to attract people back to the office by offering a more hospitable environment than before. The pandemic has changed the workstyle permanently, requiring more flexible and collaborative spaces. The design also promotes a healthy and active lifestyle by integrating exercise spaces, swimming pool, jogging track and biophilic design elements. Edible gardens, landscape trails for walking meetings, and landscape steps for informal gatherings or relaxation are some of the features that make this office building a new generation workplace.
▼建筑入口,Entrance © W Workspace
▼游泳池,Swimming Pool © W Workspace
▼露天剧场,Amphitheater © W Workspace
▼裙楼屋顶花园,Podium Rooftop © W Workspace
▼慢跑道,Jogging track © W Workspace
▼可食用花园,Edible Garden © W Workspace
▼屋顶景观,Overall landscape © W Workspace
▼锻炼区域,Exercise Corner © W Workspace
▼办公空间,Office area © W Workspace
▼协作办公区,Co-working area © W Workspace
▼露台,Terrace © W Workspace
该项目为邦纳地区的密集化设定了一个先例,展示了以可持续性、健康和创新为出发点的未来工作场所。
This project sets a precedent for densification in Bangna area, demonstrating how a future workplace can be designed with sustainability, wellness and innovation in mind.
▼建筑夜景,Tower night view © W Workspace
▼一层平面图,1st Floor Plan © Creative Crews
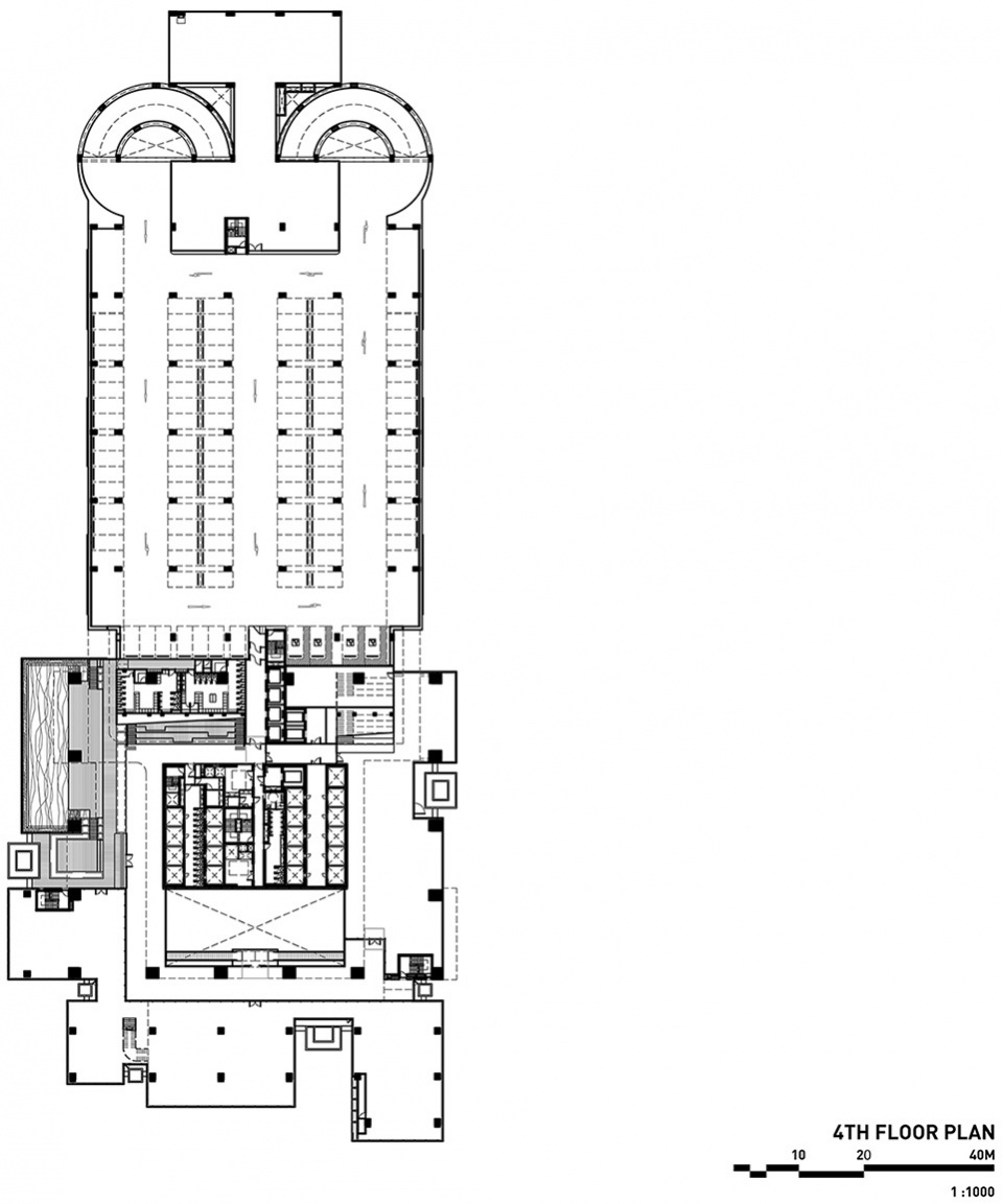
▼四层平面图,4th Floor Plan © Creative Crews
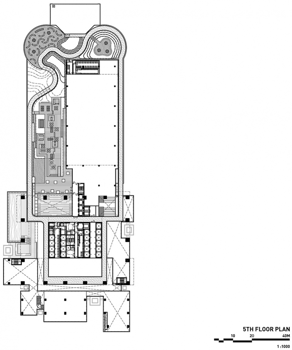
▼五层平面图,5th Floor Plan © Creative Crews
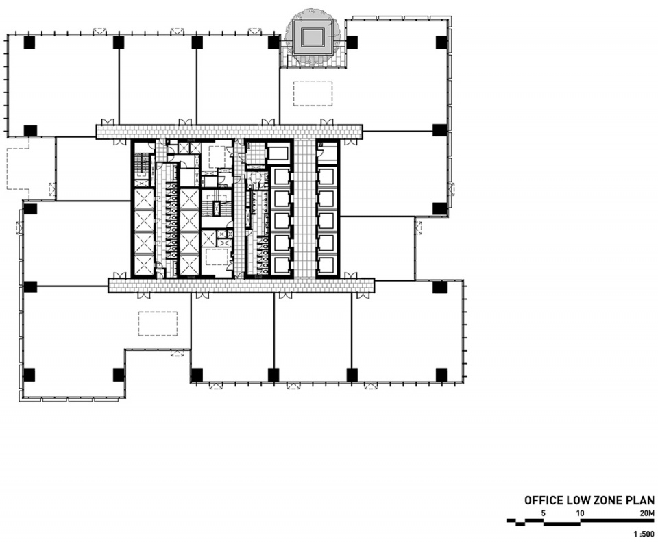
▼八层平面图(低层办公),8th Floor Plan -Office Low zone © Creative Crews
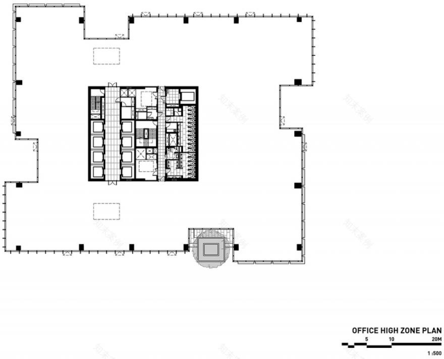
▼33层平面图(高层办公),33rd Floor Plan – Office High zone © Creative Crews
▼立面图,Elevation © Creative Crews
▼立面图,Elevation © Creative Crews
▼剖面图,Section © Creative Crews
客服
消息
收藏
下载
最近
















































