查看完整案例


收藏

下载
案例简介
Case description
家的介绍
设计师说:
本案的设计重点,是将一个三居室的毛坯房改造成四居室,能够满足三代人同时居住的设计需求。
业主是五口之家,一对年轻的夫妻,有两个可爱的孩子,一个姐姐一个弟弟,还有男主人的母亲同时居住,帮忙照顾孩子。男主人是一位汽车工程设计师,很有自己的想法和主见,不过是工科男,对空间和尺度的逻辑性很强,但是对于家居的感性与柔美稍微欠缺。女主人平时在机场工作,工作很繁忙。男女业主祖籍位于广西,大学毕业之后在天津工作多年,终于在天津有了自己的小家。对新家的期望满满,这是幸福开始的地方。
新家位于天津东丽区。缘于对新家的迫切期望,在还没收房之前,就预约好设计师对现场进行勘测了。
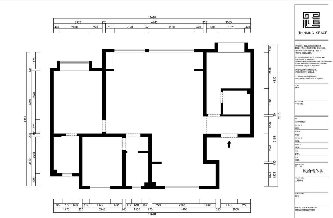
这是一个大三居的户型,南面两个卧室,北侧一个小卧室。客厅的开间特别大,有6米多。因为孩子年龄还小,平时也需要父母的照顾,这就需要房子满足5口之家的入住需求了。为了满足业主的需求,对户型进行空间拆改,由原来的三居变成四居室,是本案设计的重中之重。
对原始户型更改需求:
1.原户型的客厅开间有6米多,想从这个空间规划出一个小书房,男孩长大了可以睡在这个房间。
2.卫生间需要设计干湿分区,考虑洗衣机的摆放位置。
3.入户门玄关柜的尺寸太小了,想放的东西多一些。
4.需要考虑客厅的收纳储物空间,因为两个孩子,平时的生活需求都在客厅,玩具特别多,需要收纳整洁。
5.需要中西分厨的厨房设计,厨房电器设备特别多。厨房比较窄,怎样设计能够更显得宽阔明亮些。
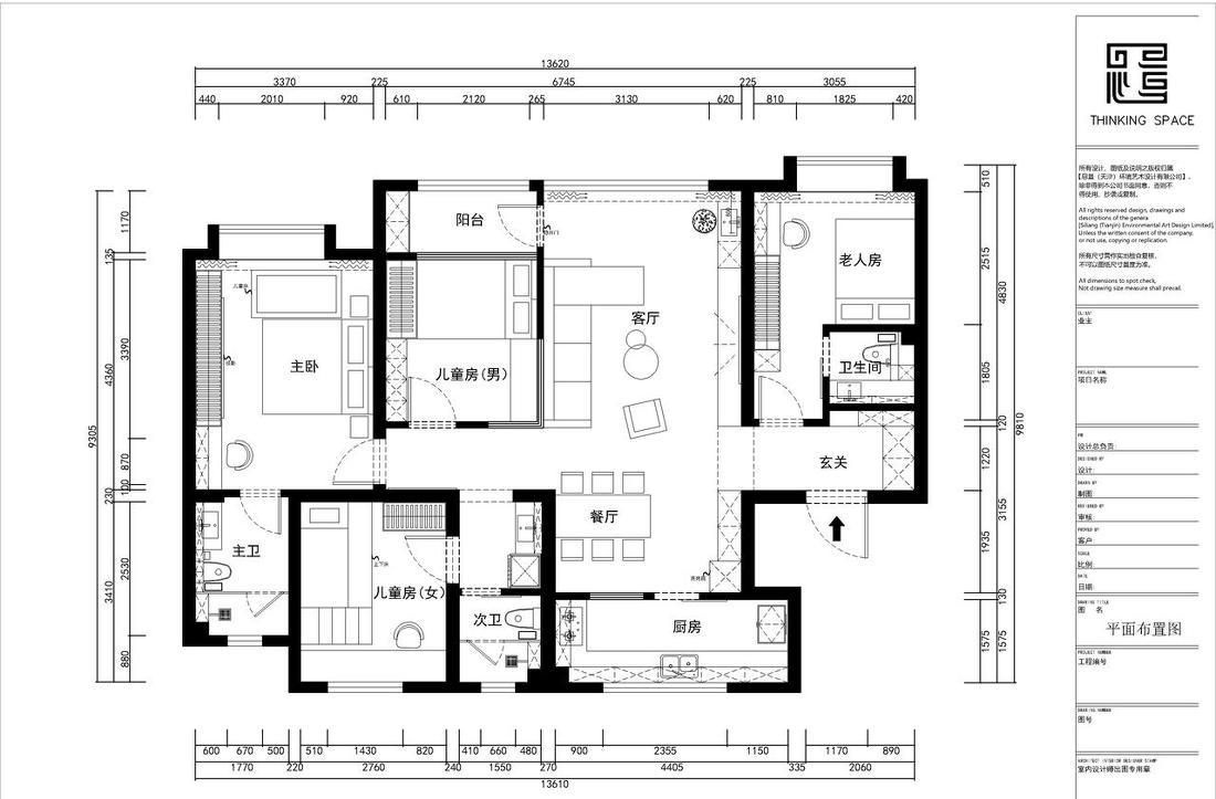
设计师规划的平面空间布局设计:
1.原客厅一分为二,3米做厨房,另外3.7米做客厅足够使用。
2.原卫生间的隔断墙内推,扩大卫生间干区的尺寸到1.4米,可以内嵌洗衣机和洗脸盆位置。
3.老人房的卫生间隔墙内推30公分设计鞋柜,增加入户玄关柜的储物空间。
4.客厅做组合柜,从阳台到餐厅一字排开,增加储物以及西厨位置,内嵌厨房电器。
5.厨房的设计,做了一个推拉开窗的设计,使空间更加开阔通透。#户型
全屋以无主灯的设计作为空间的灯光,让空间充满氛围感。新砌隔墙将客厅一分为二,书房的隔墙开窗做半开放式,不同空间尺度得以延伸,同时也满足了客户在客厅也可以关注到小孩子在房间玩耍的情况。#无主灯 #简约 #客厅
为满足客户储物的需求,做组合柜从阳台至餐厅一字排开,电视机内嵌至柜体,让空间整体协调统一。餐厅柜与客厅柜用拱形门洞相连接,增加空间的艺术性。#组合柜 #定制 #全屋 #客厅
空间里局部吊顶的设计,内嵌中央空调,加长黑色窄边框的空调出风口取缔掉以往的普通出风口,不会显得突兀,融合进吊顶空间。这里选用的是美的中央空调的风管机,主要是为了节省预算,用柜机的价格享受中央空调的品质了。 #中央空调
整体素色地砖,做了环氧美缝,让地面更加整体!#客厅 #素色砖
书房与客厅的隔墙开窗,让空间通透性增加#隔墙 #客厅设计
客厅区域与书房隔墙的玻璃窗,让空间得到延申,视觉上让空间变得更通透更敞亮。#客厅
客厅没有独立的阳台空间,但是在做电视组合柜的时候,规划出来了一小块的位置,留好上下水,放置洗水盆,就成为了一个阳台的功能空间。#阳台
墙面安装洞洞板,挂上小层板挂件,就可以养花浇花,旁边还加装了壁挂式的新风机,在北方干燥雾霾的天气里,可以使用。#阳台
厨房与餐厅之间的墙体开窗洞,增加餐厅的采光,让空间通透性更强,同时推拉窗的设计,可以作为一个传采口,方便使用。#餐厅
墙面做了圆拱形的造型墙设计,与走廊拱形门洞遥相呼应。#餐厅
L型的玄关柜,增加储物。开放格的设计方便放置一些包包和钥匙等,嵌入式座椅方便进出换鞋。走廊的门洞处设计拱形造型与电视墙的柜体做成一字柜体,融合为一体,让空间更加和谐统一。#玄关
因为厨房的空间比较狭长,所以在隔墙上开窗,让空间得以延申,不显得局促。L型的橱柜,抽油烟机煤气灶洗碗机等厨房电器内嵌进橱柜,功能应有尽有,满足现代家庭的厨房操作需求。木色与白色的搭配,让厨房空间色彩干净整洁。#厨房设计
厨房的推拉玻璃移门和推拉窗的设计,不占空间方便使用。厨房隔墙开的小窗,让空间看上去更通透,宽敞。同时也具有传菜的功能。#厨房设计
主卧的床头背靠利用石膏线条勾勒出墙面的层次,床头柜利用背景板设计成抽屉,并设计灯带增加氛围感。床对面整个墙面,设计一排组合衣柜,化妆桌与衣柜形成整体,白色与原木色的配色,让空间温柔而干净。
卧室在吊顶里面内嵌了投影幕布,夜幕降临,躺在床上看一场电影,别提有多惬意了。#卧室设计
新砌墙体规划出书房兼男孩房空间,半开放式的玻璃窗,使空间视觉上得以延伸,让空间显得特别宽敞不局促。地面做地台柜,既可以储物,又可以作为床铺来使用。书桌与地台柜相连接成为一体,成为休闲书房。男主人特别喜欢这个空间,可以一边工作,一边与客厅空间互动,让家居空间充满趣味性。#书房设计 #地台床
从书房的书桌看客厅,可以看到电视墙的位置。可以一边打游戏一边看电视,很是方便。而且也让书房的空间得以延申,让空间看着更加通透宽敞!
地台床的设计 既有储物功能 又能作为床来使用 非常的实用。
女孩房设置高低床满足多人入睡的需求,并在靠窗位置设计一排书桌满足孩子学习,墙面豆绿色的乳胶漆,更显空间的活泼。
客卫设计为干湿分区,满足了多人使用卫生间的需求,洗衣机内嵌进入洗衣柜,整体协调统一。一个玻璃隔断代替了传统的淋浴房,以及墙面的壁龛的设计,充分利用每一寸空间。墙面豆绿色的细条纹瓷砖,让空间更显活泼。#卫生间
主卧的卫生间设计了一排镜柜,可以在视觉上扩大空间。浴室柜的侧面也涉设计了小的壁龛,可以放卫生纸,或者手机灯等日常用品。石材台面从洗手盆的位置延伸到马桶区域,让空间更有整体感。因为空间有限,放弃了传统的淋浴房,一个玻璃隔断,既起到了遮挡溅水的作用,而且小巧不占用空间。在瓷砖的选择上,羽毛花片和素色灰砖的搭配,浪漫而温柔。#卫生间
客服
消息
收藏
下载
最近


































