查看完整案例


收藏

下载
我们拥有梦想...
我们致力于打造儿童的乌托邦...
大厅的设计采用自然元素与原木家具及吊顶的相辅相成,让孩子们置身于房间中又身处大自然给 予一种全新的体验,况且大熊猫是中国的国宝,更有利于孩子们认识大熊猫以及自豪感的延续。中庭的大树既给予室内生机绿意又仿佛孩子们沐浴在阳光下茁壮成长。
大厅设计/王刚
大厅设计/王刚
大厅设计/王刚
走廊及楼梯设计/王刚
走廊设计/王刚
图书角/王刚
图书角/王刚
走廊设计/王刚
手工坊/王刚
卫生间设计/王刚
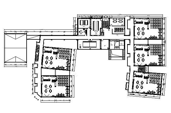
一层平面图/王刚
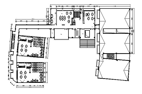
二层平面图/王刚
三层平面图/王刚
客服
消息
收藏
下载
最近















