查看完整案例


收藏

下载
空间设计的第一目的性是解决场所的功能性,人与人在空间的相互交流、传递信息。空间内的物件不仅在使用上好用与舒适,更能通过物与物、物与人、物与空间发生的情感连接,体现出背后的生活方式选择与精神境界的追求。
01 多重情境 MULTIPLE SCENARIOS
跟随均衡的韵律分区,并运用体块、色彩、质感营造敞阔观感。通过对于细节的雕琢,不同材质的相互碰撞,提升了空间品质,温柔地串起空间趣味性与互联性。
p.01
p.02
- 简洁的线条和低调的配色碰撞出空间的调性,给人赏心悦目的视觉享受。
p.03
p.04
- 简洁的线条和低调的配色碰撞出空间的调性,给人赏心悦目的视觉享受。
p.05
p.06
p.07
02时光知味 TASTEOF TIME
设计师立足精神追求,以五感六觉的舒适体验为目标,细化空间层次、互动关系、美学气质、虚实情态,透过纯粹基调描摹简约、诗意、唯美的氛围。
p.08
p.09-生活方式与现代审美被表现得淋漓尽致,保证了空间的实用性与仪式感,再简约的设计,也是有温度的。
p.10
p.11
03 间奏秩序 INTERLUDEOEDER
- 一体式的岛台餐桌则是其中最为生动的表达。高低错落的台面,张弛有度的线条,将人间烟火与优雅之韵在此处和谐交融。
p.12
p.13
于这样的一方庭院之中,享受宁静祥和,收获满怀喜悦。这里不仅是居者的精神家园,更是其对生活的感悟和向往。
p.14
p.15
04宁静致远 QUIET ZHIYUAN
黑暗中,星辉渐起,造就诗境。浅色雅调放映着光影下的动人故事,萦绕出松弛自在的情态,感性与理性共存。
p.16
p.17
p.18
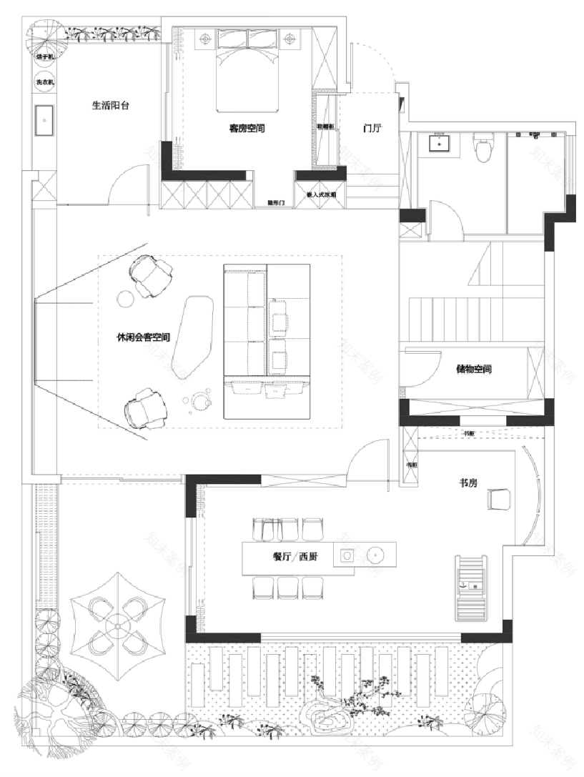
05设计图
DESIGNDIAGRA
左右滑动查看负一层平面
左右滑动查看一层平面
06项目信息
Information
项目地址:置地瑞玺
ProjectLocationZhiDiRuiXi
设计方:合肥启峰设计
Design side:Hefei Qifeng design
项目面积:300
ProjectArea:300m2
设计时间:2023 年 9 月
DesignDate:2023.9
客服
消息
收藏
下载
最近
























