查看完整案例


收藏

下载
Trellik Design Studio,位于伦敦的建筑事务所,将一座老摄影经纪人办公室变身成了东伦敦创意社区的宝地——One and A Half Studios。这个充满活力和创意的空间,原本是维多利亚式建筑,经过Trellik Design Studio的巧手改造,焕发出新的生机。
创始人Jean Dumas在2019年买下了这座建筑,怀着社区合作和跨学科创新的愿景,将它打造成了一个多功能工作室、制造商车间和咖啡馆的理想场所。整个空间采用了天然材料,巧妙运用各种颜色,使得原始特征得以保留,同时增添了现代氛围。
从外部看,你会发现原始木椽子得以保留,同时安装了新的绝缘材料和屋顶,保持了建筑的魅力。内部则是一个开放式的工作环境,巧妙地运用了再生织物和旧地板,使得空间充满了温暖和独特的氛围。
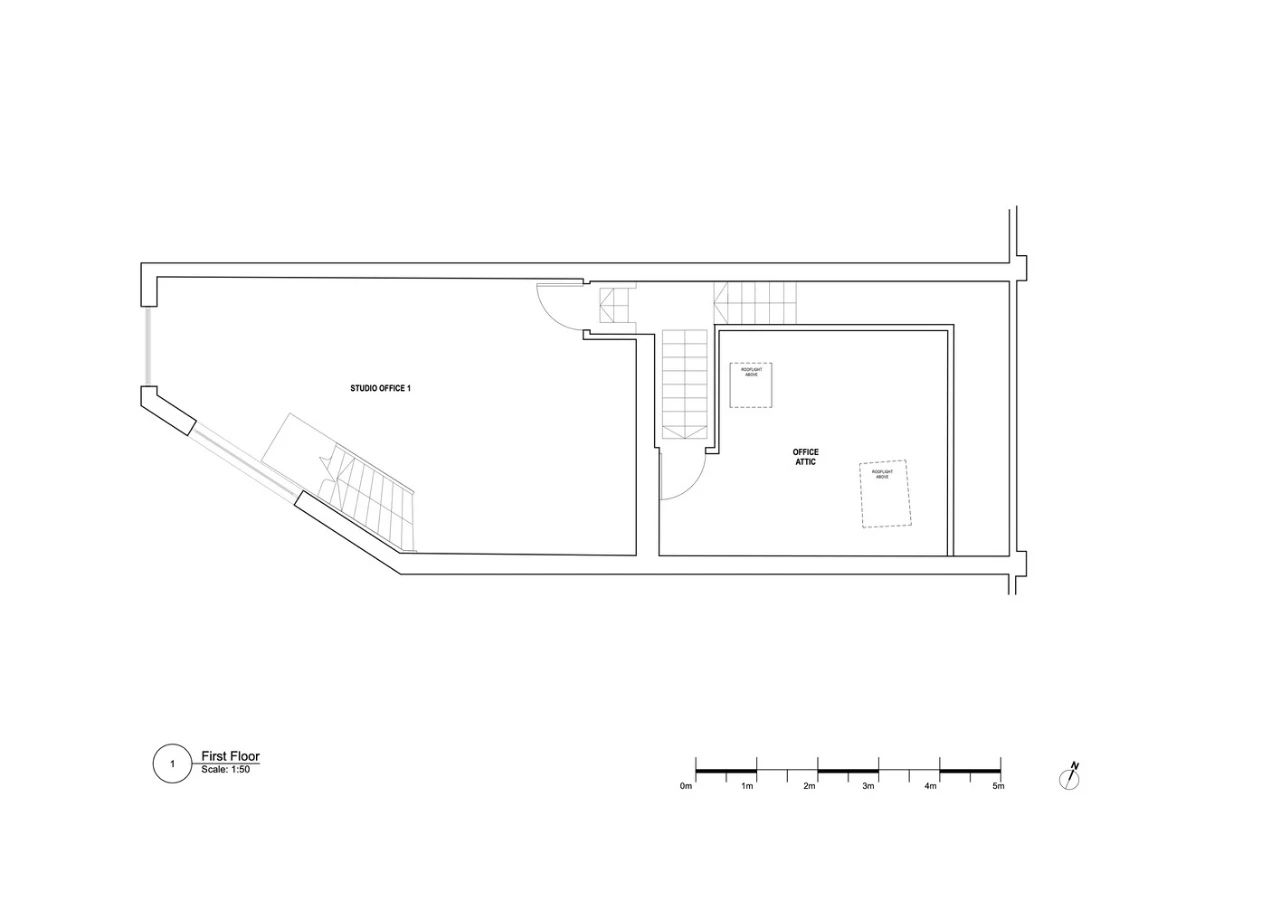
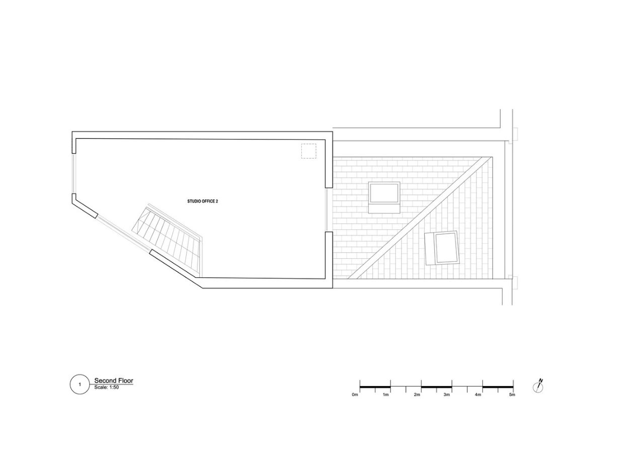
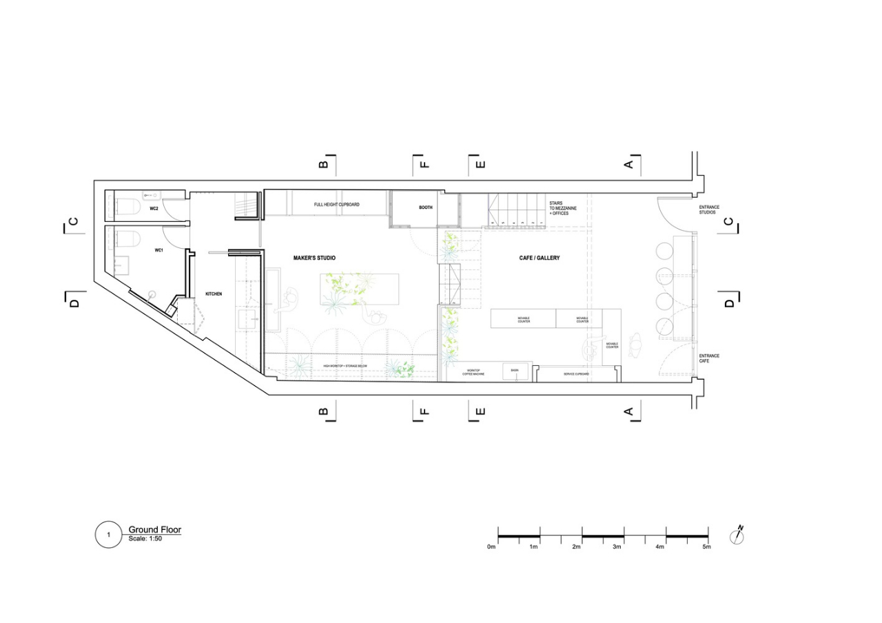
整个建筑分为三层,每一层都具备极高的灵活性,适用于各种不同的活动和工作需求。一楼的咖啡馆和活动区引人入胜,下沉式制造商车间则是一个天然织物染料工作室,让人仿佛置身于创意的海洋。
此外,Trellik Design Studio还注重了可持续性发展,利用回收材料如PET毛毡板进行装饰,既降低了噪音,又提供了固定墙面。
充满活力和创意的One and A Half Studios,是伦敦东部一个鼓舞人心的创意社区,为各种创意人才提供了理想的工作场所。
项目信息:
办公室内部•伦敦, 英国
建筑师: Trellik Design Studio
面积:124 平方米
年:2021
摄影:Ed Dabney, Mariell Lind Hansen
制造商:Ketley Brick,,ReFelt
结构工程师: Jero Works
主要承建商: HMT Building Services Limited
客服
消息
收藏
下载
最近

































