查看完整案例


收藏

下载
这套位于二楼的平层户型,最让人沉醉的就是窗外郁郁葱葱的绿色。风吹影动,四季轮换。从一开始迈进房子,视线、情绪就一直被它牵引着。
▲
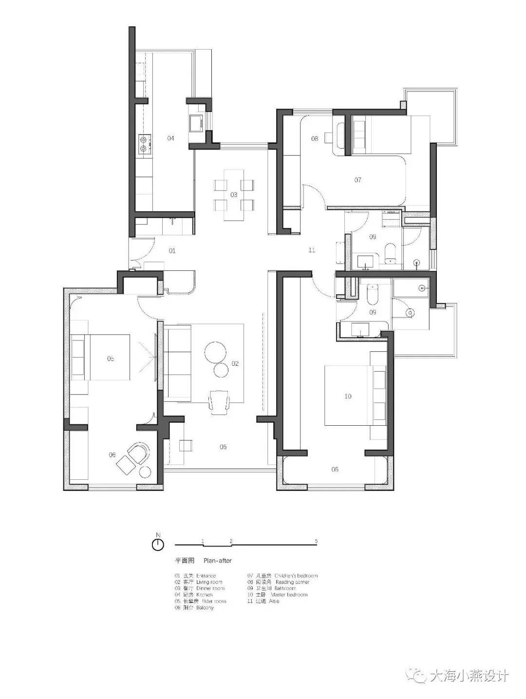
改造前
改造后
室内的设计如何去回应房子自身的环境?
01.
绿林“满”窗
在满足通风的前提下,用最大的窗户将翠绿引入内部,在每个房间都能获得“森林”般的体验。
客厅窗景
餐厅窗景
儿童房窗景
▲主卧室窗景
卫生间窗景
02.
“自然”土墙
内部材料取之于自然,橡木悬空柜镶嵌于天然粘土墙上,它们都是与温度、湿度共呼吸的材料。
刻意留下粘土批刮工艺的斑驳纹理,光线通过它被吸收后,压低内部空间边界的明度和饱和度,让明媚的绿色窗景成为焦点,悬于空间核心位置。
客厅土墙与悬空橡木柜
卧室土墙
餐厅土墙
03.
连续流动相互衔接呼应的弧线,柔化空间边界。
犹如达利《记忆的永恒》中柔软的时钟,流淌的空间语言,去触摸时光流逝的痕迹。
橡木格栅柜的弧形处理
墙角的弧形过渡
儿童房连续流动的空间
墙面微微掀起与灯光
04.
自然之补色
在自然森林,裸色土墙的基调下,土红成为了空间的补色。入户玄关,连接卧室的走道,以及主卧背墙,局部的点缀,而格外醒目。在自然与人工之间寻求某种微妙的平衡。
红色玄关与走道
红色走道
主卧土红色墙面
05.
四改三的闲适
我们尽可能地保持空间的松弛感。因此,原始的四房“逆势优化”为三房
。
将北侧过于紧凑的两个房间合并为一个儿童套房,双面宽中,融入睡觉、游戏、学习、阅读、画画等多样活动。
满足多项使用功能的儿童套房
最后,在自然的驱动下。内部空间与外部自然环境共同呼吸,去唤起关于居住、场地与时间的原始记忆。
项目信息:
建筑面积 180平米
房屋位置 上海
设计 大海小燕设计工作室
设计团队 郭东海 燕泠霖 曾一
摄影 Envan
材料 黏土/米耐岩/实木贴面
品牌 宅匠/梭曼/威克纳
完成时间 2023年
客服
消息
收藏
下载
最近























