查看完整案例


收藏

下载
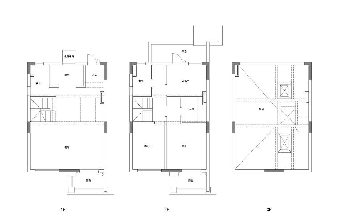
01.顶层阁楼
顶部是给哥哥的房间,这里安静私密, 我们并不设门,独享与共享并存。 空间有着复杂的高度变化,根据人体尺度适宜布置睡觉、游戏、阅读空间。
色调明快简洁,以不规则内嵌的绿色几何图案作为局部装饰,和谐自然,处处透着一股清新感。
对于孩子们来说,这样一间小小阁楼,是他们的秘密基地,也是童年里最美好的记忆。
圆形入口将此神秘空间镶嵌入框,屋顶天窗将外部蔚蓝天空映入阁楼。
02.跃层阁楼
二层儿童房垂直向打通后,获得了一个高阔的空间。 置入一个全新的木色阁楼,溶入卧室、衣柜、楼梯、窗洞,既是一个大家具也是游戏之屋。
上下层均可放置小床,阁楼上的“窗洞”外铺上一张安全网,它成为孩子们玩闹的天地。
阁楼的侧边均预留钢框绑上安全网,保证孩子的绝对安全。
阁楼与衣柜、书架、楼梯、书桌连为整体,形成的大家具, 沿空间侧边展开,创造连续的游戏路径,也留出完整的活动空间。
通往孩子们秘密基地的小楼梯。
03.主卧阁楼
父母,长大的“小孩”,同样也能拥有一个独特的阁楼。 进门较高的区域,下层设置透明的卫生间, 上层阁楼为开放式的衣帽间,与下层的衣柜电视墙组合一体。
电视、衣柜、楼梯、灯具在这个斜向空间中相映成趣。
木色阁楼重构空间。光线多维度上延伸。
天光的引入,这个小小的阁楼衣帽间如此的幽然自怡。
床背后的墙面涂刷砖红色的粘土,在光线的抚摸下,呈现细腻的质感。
砖红色粘土静谧又显温柔。
空间上下通透,宽敞透明,家人们可以同时享受清晨充沛的阳光。
04.长辈房
二层老人房采用极简风格,整体以纯白色为基调, 床头的几何形的内嵌空间,又一次木色与白色的碰撞,宁静、温暖。
为体现空间的流动性,除了主入口,我们在老人房另一侧也开了一扇门直通走廊的洗衣区域。
05.客厅
首层共享客厅是他们的汇聚点。 开阔的大厅一侧为孩子游戏手工区域,另一侧为一家休息、观影区域。
白墙上顶上设置投影幕布,是全家人在一起的娱乐活动。
客厅与阳台打通,简约的漂浮木柜从客厅的一侧延伸连通至阳台,增加了客厅整体纵深感。
中部的餐厅置入的木色体量成为视觉中心, 它将厨房包裹后形成的建筑感延续了家中“阁楼”主题。 餐厅与中式厨房相邻墙面嵌入式西式操作台,暖色调的原木色墙面给整个空间点缀上一丝温和的气息。
餐厅与中式厨房相邻墙面嵌入式西式操作台。暖色调的原木色墙面给整个空间点缀上一丝温和的气息。
一楼作为会客及休闲空间,该空间与上部主楼的联系变得至关重要。
考虑到这一点,我们将楼梯纵向设计, 并以长条形的餐桌分隔餐厅和客厅区域,相较之前略显繁重的横向楼梯,整体空间上更为明亮,开敞。
墙面弧形置物架缓解了直角楼梯带来的生硬感。 既能放置书本,盆栽,又不占用空间,简洁大方,实用美观。
06.楼梯
楼梯串联三层空间,首层整合西厨房操作台。
二层结合收纳搁架,顶层与下沉式阅读角融合,它集交通、展示、游戏于一体。
07.中厨房
玄关的左侧为中式厨房,两边均开门。整个流线从进门、进厨房、烧菜、端菜动线明晰,一气呵成。
08.玄关
由于别墅一层为日常生活空间使用,因此对功能几乎不作改变。玄关右侧摆放大型置物柜,黑色钢板镶嵌在墙内作为穿鞋凳。
09.卫生间
一楼的卫生间仅作为一楼的日常活动时使用,简单即可, 整体色调与一层偏温馨的色调相对,采用了暗色作为基调。
长辈房对面原来的传统卫生间改成干湿分离的卫浴。
主卧卫生间透明,粉红色的羽毛砖,是 “大小孩”的心底掩藏已久的童真。
客服
消息
收藏
下载
最近




















































