查看完整案例


收藏

下载
Mauro Galantino Architetto是由意大利建筑师Mauro Galantino创立的建筑事务所,这个由几位才华横溢的成员所组成的设计团队因其对于现代建筑的批判性表达而受到学界的关注。Mauro Galantino认为空间是理性且恒定的体验性产物,在现代建筑快速建造的时代,建筑师更应放慢脚步,重新审视当下与探索未来的意义所在。
01
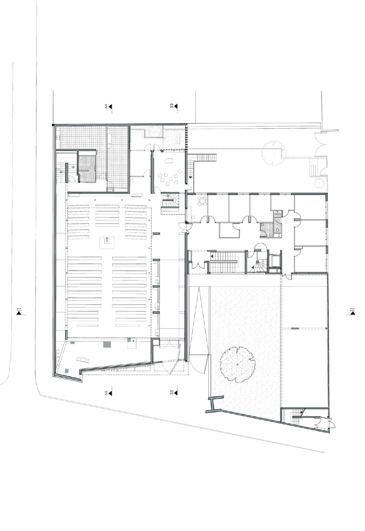
Church of Sant Ireneo
意大利·米兰
Church of Sant Ireneo位于米兰郊区的市镇Cesano Boscone内,建筑师希望一座教堂除了满足公共活动与宗教性的需求外,还能反映一定的思想价值。因此,团队在Michelucci的箴言中获取灵感,将历史与未来、城市与自然、情感与表现之间的杂糅关系融入设计,唤醒大众更深层次的认知与思考。
Mauro Galantino Architetto将教堂建筑分为功能性和环境适应性两种类型,后者主要用于调和建筑与场地之间的关系,因而通过门廊、露台等形式构成了一个阳光充足的内部流线。室内细腻的光线不仅中和了混凝土的清冷质感,更借助丰富的结构层次形成神性的光影变化,强调建筑的宗教属性。
△剖面图
02
Church of Gesù Redentore
意大利·摩德纳
Church of Gesù Redentore位于摩德纳大街内,是Mauro Galantino Architetto在赢得全国宗教建筑竞赛后负责修建的耶稣救世主教堂,这座建筑不再以传颂教义为主题,而是希望以更为平和的形式融入于当地的城市环境之中,通过独特的空间体验激发信众的精神共鸣。
教堂的主入口与开放性的广场相连,可同时成为周边居民提供活动与停留休憩的场所节点。室内则以建筑与自然的交互为体验核心,通过富有表现力的切口串联起种植着橄榄的庭院和大厅,构建简洁、有力的空间语境。
03
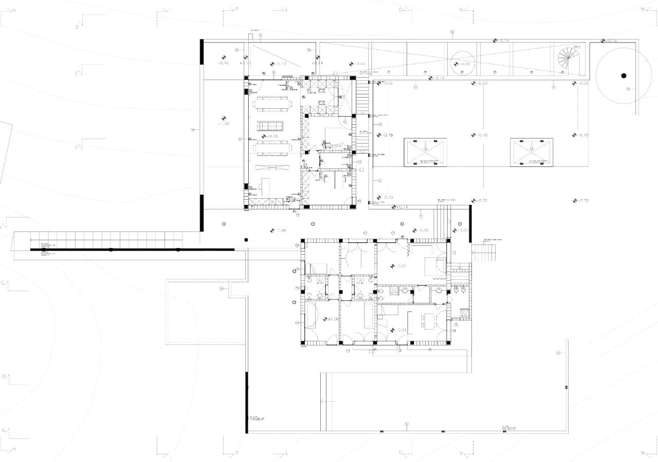
Church of Notre Dame du Rosaire
法国·巴黎
Church of Notre Dame du Rosaire于2011年落成,是法兰西岛大区在21世纪建造的第一座教堂,该建筑群取代了始建于1887年的老教堂,由ENIA Architectes、Mauro Galantino Architetto和数位建筑师合作共同设计。
为了在符合教区硬性规定的同时使教堂融入到现代化的城市背景之中,建筑师以简洁的线条勾勒立面,并在其中一侧墙上嵌入由法国艺术家Didier Sancey创作的彩色玻璃窗和绘画作品,将传统教堂的装饰元素通过简化与转译的方式与现代性建筑语言相结合。
△平面图
04
New Farmhouse
意大利·马蒂纳塔
马蒂纳塔是一个面朝亚得里亚海湾的意大利小镇,这座由Mauro Galantino Architetto设计的住宅坐落在一片视野开阔的坡地中,建筑师基于场地的现有条件,自屋顶延伸出一条露天的观景走廊,位于其下方的生活空间则充分利用原生植被将露台与庭院进行结合,营造寓于自然的家居生活氛围。
平面图
编辑:Ne
iWai
撰文: YouChuan
校改:YueQiu
编排:Holy
客服
消息
收藏
下载
最近














































































