查看完整案例


收藏

下载
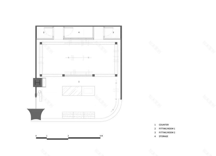
在韩国釜山的新世界百货大楼的四楼,坐落着一间名为 diagonal 的展厅。这个展厅由设计工作室 Oftn studio 负责设计,总面积65平方米。在过去的 Hannam-dong 地区,diagonal 就已经有一个展厅,而现在他们计划在釜山打造一个全新的展厅,以展现出一种全新的氛围。
整个空间的设计充满了巧思。为了能让顾客全方位地浏览展品,展厅的C形结构线条清晰,各种产品都按照既定的线路进行展示。六根柱子不仅明确了动线的分布,也赋予了空间一些结构上的差异,与现有的墙体形成了鲜明的对比,为空间增添了三维效果。同时,设计师们运用非彩色材料作为基础,展现了品牌追求简约和独特形式的设计理念。
天花上的一部分为空间增添了多样性,这部分设计更注重私密性,将焦点放在了柜台后墙隐藏的空间,即隔断的概念。混凝土物体、金属货架以及扬声器区都完善了物理属性的展示特性。这些物理属性都非人工且不装饰,意在它们的使用。而不锈钢隔断则像镜子一样反射着混凝土面板背后的空间,以及试衣间外的大镜子,这一切都使空间看起来更深、更宽。
━
项目信息
项目位置:韩国 釜山
项目设计:Oftn studio
项目摄影:Choi Young Joon
项目时间:2023年
客服
消息
收藏
下载
最近


















