查看完整案例


收藏

下载
医学研究机构, 办公设施, Gangseo-gu, 韩国
建筑师:Archium, In-Cheurl Kim
面积:631 m²
项目年份:2020
摄影师: Park Youngchae
主创建筑师:In-cheurl Kim + Archium
设计团队:Sungjin Kim
结构:RC structure
结构工程师:Dongyang Structural Engineer Group Company Limited
施工方:COAZ
City:Gangseo-gu
Country:韩国
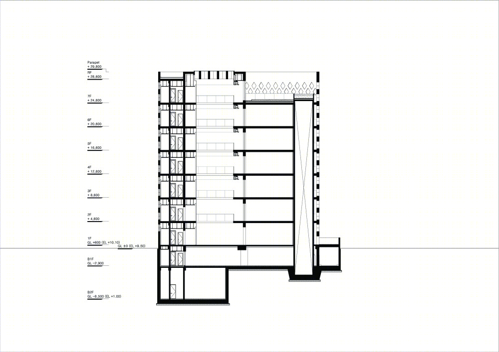
“麻谷蜂巢”的结构形式与2008年设计的“城市蜂巢”相同。通过将柱和梁以对角线排列,建立起使重力能竖直向下流动的结构墙,消除了应力线间的间隔。
分隔内部空间的玻璃墙与结构墙分离,结构墙成为外立面的表皮。方法基于传统韩屋的一个原理,韩屋的木结构后也存在一层表皮。这也可应用于现代结构系统,如钢筋混凝土结构。
七层高的中庭空间向天空开放,将研究、办公和辅助空间合为一体。中庭虽然中空,却不完全中空,充满从天窗而来的光线和每层楼来来回回的视线。
在午间,形状如钻石般的阳光穿过中层聚碳酸酯墙,散落在大厅夹杂白色石子的透明树脂地面上。一条条1800mm宽的透明带如同溪流,呈对角线连接着大厅,使空间流动起来。
译者:Ling
项目完工照片 | Finished Photos
设计师:Archium
分类:医学研究机构
语言:简体中文
阅读原文
客服
消息
收藏
下载
最近























































