查看完整案例


收藏

下载
最近在忙的项目也是一直合作的连锁品牌公司,期待柳州店完工开业#独立设计师
#早教托育加盟#早教中心设计#托育中心#托育中心设计装修#早教托育中心设计#早教中心设计[话题]##早教托育中心#幼儿园设计#幼儿园#幼儿园户外设计#幼儿园设计装修#幼儿园设计公司#武汉幼儿园设计#幼儿园设计师#柳州探店#柳州
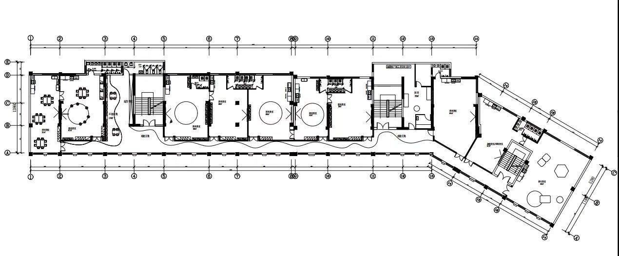
项目面积:室内1600平左右
项目位置:广西柳州市
设计结合现场情况及日常使用甲方投资预算做整体规划设计,一楼采取局部吊顶一方面节省部分成本一方面考虑空高问题,二楼公区反灯槽吊顶,教室做部分造型吊顶设计,地面采用地胶分区设计,设计角度考虑地面设计突出层次感,甲方老师反应卫生问题,一方面现在机构都配备有吸尘器所有这方面不用有太多顾虑,落差高度不高几mm厚度主要突出整体层次感,也可做同水平面拼接设计
客服
消息
收藏
下载
最近










