查看完整案例


收藏

下载
BMW一直以来都以其出色的驾驶乐趣而闻名于世。
无论是在市区街道上漫步还是在曲线崎岖的山路上驰骋,BMW始终能够带给驾驶者无与伦比的乐趣。
从巴伐利亚飞机厂到BMW VISION NEXT100,一片上升的螺旋桨是驾驶乐趣与速度的代名词。近日,广东汕头的宝马展厅经过空间重构,焕发出全新的魅力。它不仅实现了商业空间的重塑,更打造了与未来共振的奢华体验。让我们一起走进这个令人心驰神往的未来窗口。突破·承载空间重塑赋予商业更多的价值意义。
项目位于广东汕头的宝马原展厅,在设计中进行了空间秩序的重构,焕发出崭新的设计魅力。为了突围豪华品牌车市中的激烈竞争,设计师们超越传统标准,以独特的视角展现出新的空间形态。他们将BMW的品牌展示和观展者的美学与消费行为巧妙结合,给人们带来极大的满足。
设计过程中,BMW对于品牌展示的指引和标准有很多,这些都给了我们启示,但同时也带来了一些限制。然而,作为设计师,我们的重点在于如何让BMW在当下群雄逐鹿的豪华品牌车市中突围。就好比螺旋式上升循环往复的变化的发展过程,我们必须不断突破传统观念,才能真正承载BMW宝马领创前沿这个概念的重托。
重塑·演绎
打造人、车、空间共同形成的未来窗口
宝马展厅的空间设计充满了令人惊叹的创意与未来感。在保护原有外立面的前提下,设计师在右侧上方增添了宝马的经典标志,既延续了品牌基因,又展现了未知的锋芒。线条简洁纯粹的外观,在自然环境的映衬下,呈现出万千变化,具有灵活性和生动性。
展厅全景
顾客迈进舒展的挑空空间入口后,映入眼帘的是中央层层叠级的吊灯,使一楼与二楼紧密相连吊灯直吊屋顶,设置的空间轴线和视觉效果不约而同地营造纵向的空间延伸感,并将人们的视线引向天空和阳光射来的方向,以空间的精神力量给人以通往“上空”的无限遐想。
科技感十足的展示区与周围环境自然地巧妙地融为一体,这里所有的细节都经过了深思熟虑的考量。看似十分普通的材料与色彩,在设计师的手中,获得了新的生命和创意。这离不开设计师对材质的精准把控,以及对品牌概念的深入理解。通过对品牌价值的深刻洞见,设计师将品牌文化融入到了这一设计中。从展区整体氛围的打造到每一个细节的构思,都体现出品牌背后的核心信念和诉求。
展厅设计是一种艺术,它完美地诠释了一系列对立而共生的设计理念:藏与露,光与影,智能与实用,未来与当下。这种绝佳融合在展厅中得以展现,让人们惊叹不已。
在这里,设计师将传统元素与现代技术完美结合,营造出充满未来感的场景。
通过层层叠级的吊灯装饰衔接上下空间的感染力,让BMW宝马的忠实拥护者感受到BMW文化的积极向上以及传承中现在与未来的领创精神。
MINI展厅
事物的发展是螺旋式上升的,MINI展厅以其活泼时尚的视觉感受,展现出品牌的独特魅力。
绿色与黄色错位的弧形吊饰,形成了上升的形式,寓意着宝马品牌始终充满着不断前进发展的活力与动力。
这种设计不仅仅是为了美观,更是为了传达宝马品牌一直以来的追求和承诺。绿色象征着生命与活力,黄色则象征着创新与进取。两种颜色的错位组合,展示了品牌追求出众和与众不同的品味,以及对于品质和创新的执着追求。
交车区
交车区的设计灵感源自于螺旋桨的线性元素,通过对线条的重组和阵列,创造了一个动感十足的空间。
在这个区域中,灯光巧妙地环绕着走廊,引导着观众的目光,展现出宝马品牌不断前进、探索未来的精神。
宝马书廊
客户接待区
餐厅区
宝马新展厅在广东汕头展现了无限可能。通过空间重塑,它赋予商业更多的价值意义;通过创新设计,它打造了与未来共振、来自未来的奢华体验。展厅设计是一种艺术,它完美地诠释了一系列对立而共生的设计理念:藏与露,光与影,智能与实用,未来与当下。这种绝佳融合在展厅中得以展现,让人们惊叹不已。无论是展示区还是交车区,都呈现出宝马的领创精神,让人们感受到BMW宝马的忠实拥护者的积极向上。尽情享受驰骋在路上的奢华感受吧!
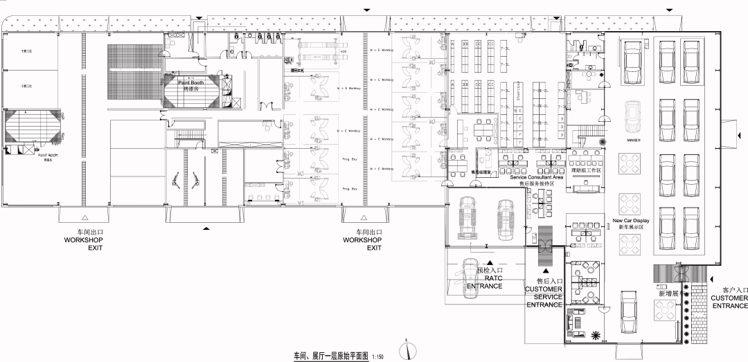
一楼原始平面
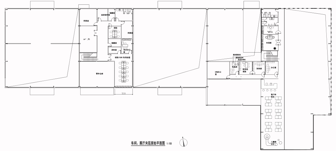
二楼夹层原始平面
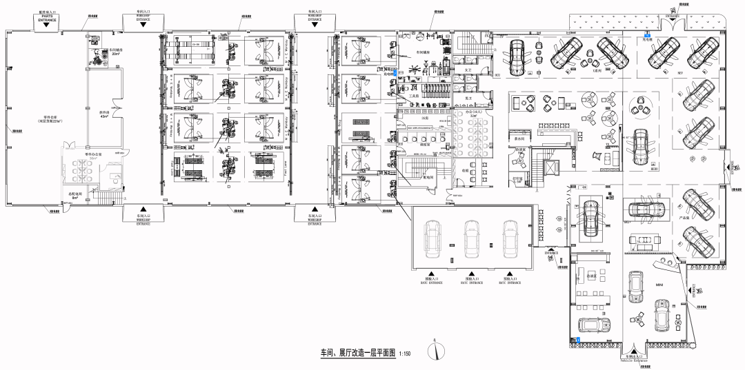
一楼改造后平面
二楼夹层改造后平面
Masion space design
美颂上镜|江景书香,自然温馨之居
美颂作品 丨 北山白云里 隐者自怡悦
用工装的专业度做好家装
用家装的服务做好工装
专注设计,落地整装
@美颂上镜室内建筑设计
客服
消息
收藏
下载
最近

























