查看完整案例


收藏

下载

翻译
Distinctly identifiable by its stepped terraces and red striated facade, the Crescent School of Architecture occupies a relatively small lot of the 60-acre university campus, in Vandalur, Chennai. The project brief envisioned studio spaces along with lecture halls and administration areas – which we chose to augment with necessary ‘de-programmed’ spaces for collective working and gathering. This allowed for the exploration of redefining not only the nature of spaces found in an architecture school but also offering us the possibility to inform the future pedagogic program that it could accommodate. Typically, a school would house endless corridors with rooms on either side. Spaces offering opportunity for discussions and chance encounter is severely limited, which in turn confines its users to following a dreary routine.
Overturning this notion of conventional space-making in an institution by replacing it with spaces that can have transformative pedagogical implications becomes imperative; wherein collective creation is encouraged within the institution’s pedagogic program, by explicitly offering spaces that urge for learning outside of the confines of the classroom. With a program that is two-fold in nature, both extroverted and introverted, any architecture school requires spaces that allow its users to work in multiple ways. The ideal school should allow for an open-ended program. Through means of an unconventional spatial method, our architecture school presents its users with various options for inhabitation and use.
Extending the ground plane into the building became imperative because of the limited site allocated for the large program of the architecture school. We chose to eschew the need for a restricted entrance and instead chose to maximize the openness of the building’s connection to the ground – creating a large shared piazza that extends the urban structure of the university campus into the school, and flows through an open stilt area to the edge of the reserved forest. One is offered a multiple choice of accesses, including open yet shaded access to the first floor. Instead of merely vertically extruding a courtyard, here the ground plane is multiplied, staggered at each level and overlapped.
An additional ‘new ground’ is thus created at every floor level within the building – that stretches the piazza and the open stilt / free plinth upwards into the building volume. This continuous, stepped void created acts as a diagonal courtyard – offering, in this case, exhilarating vistas across the terraced-landscape-like formation, besides becoming the key congregational and social space for the school. These voids – in addition to making the building mass lighter, also perform the important task of creating an ‘outdoors-like’ experience – with the wind blowing through, the sun traversing across the spaces during the day, and the shaded spaces feeling connected to the elements and the campus (to which the building forms and urban edge) – with views across the reserved forest on the west side and the campus towards the east and south.
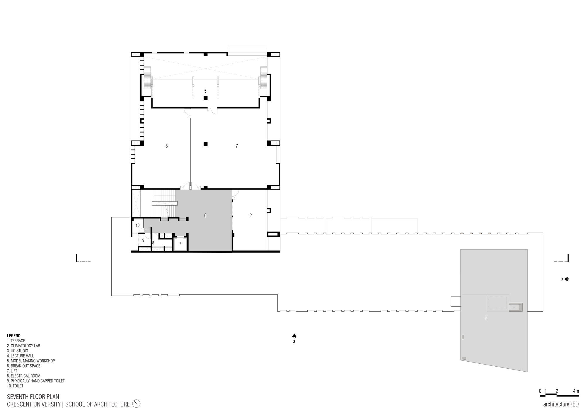
Each studio space opens onto its adjoining double-height terrace (shaded by the overhanging floors) through a set of large sliding folding doors – offering the possibility of open studio/workshop spaces and/or open exhibition and review spaces – that can be viewed together diagonally across, during ‘open-house’ days and common review days. Design studios that are placed adjacent to one another may be transformed into one large space hosting shared classes or studios between two different sections, avoiding complete isolation. Each design studio also accommodates a mezzanine level that houses its respective lecture hall.
The Crescent School of Architecture aims to deploy a spatial methodology to suggest possibilities in which different programs may be adapted through innovative infrastructural and spatial solutions and possibilities. With open spaces present at its base that offer the possibility of intense activity, gathering and socializing, a strong connection between the school building and the campus is reinforced. This connection infiltrates the structure enhancing its experience in the hope of giving birth to a new system where users can begin to take charge and re-configure spaces that adapt to changing needs and demands, tuned towards their own specific purposes, and as such the buildings posits a proposition for a sustainable institutional architecture that will adapt to its times.
客服
消息
收藏
下载
最近

































































