查看完整案例


收藏

下载
我们平凡,但不代表平庸。任何时候,都要怀揣希望,朝着阳光的方向开一扇晴窗,让一颗心在静默中悄然绽放!
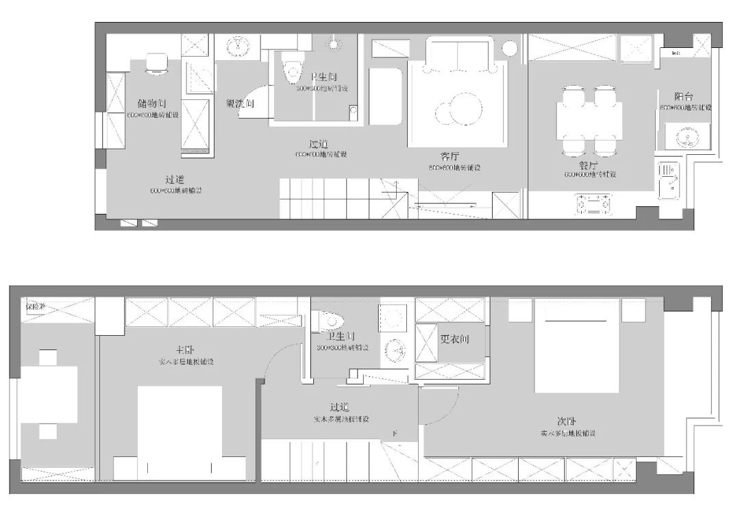
|户型图|
| 客 厅Livingroom
| 餐 厅Dining room
楼梯间—
Staircase
| 卫 生 间 — Bathroom|
卧室—Bedroom
一个不会套路的工作室,期待遇到更多“较真”的业主,用我们的真诚和专业给她(他)们创造一个与众不同但却温馨的家。
往期荣誉
2022年软装设计龙承奖 银奖
2022年金堂奖 杰出作品
2022年老宅新生 十大改造设计师
2021芒果奖优秀商业空间奖
2021年红棉奖优秀雅奢空间奖
2021年她设奖优秀作品
2021年百度馨居奖全国TOP300
2021年度 40UNDER40中国(南京)设计杰出青年
2020Pchouse Award私宅设计大奖2020年度城市榜BEST10发布
2020年获得艾特奖
《锦•色》DICF2019大中华区"设计100"(软装类)十佳作品奖《陌上花开》DICF2019大中华区"设计100"公寓类作品奖
荣获中国建筑装饰协会主办的2019第十五届中国国际建筑装饰及设计艺术博览会【华鼎奖】的2018-2019年度中国室内设计杰出青年设计师
2019年《一见倾心•灵动自由》荣获中国建筑装饰协会主办的2019第十五届中国国际建筑装饰及设计艺术博览会【华鼎奖】的住宅公寓空间类 【金奖】2019年《灰度》曾获 中国设计品牌榜•公寓空间作品
2019年作品《灰度》获得艾特奖
2019年作品《森呼吸》获得艾特奖
2018第十一届大金内装设计大赛全国优秀奖
2018中国美好生活空间设计大赛TOP100
2017芒果奖中国人文设计大赛最佳商业空间奖
2017首届南京软装设计邀请赛优秀创意奖
2016芒果奖中国人文设计大赛入围奖
多套作品被发表于《软装饰界》、《D-Life设计与生活》、《瑞丽家居》等业内专业杂志。
职称
中国建筑装饰协会会员
高级室内建筑师
•查看更多作品 •
欢迎“推送”或“分享”给身边的朋友
欢迎更多平台了解山舍建筑设计
13951992262| 微 信13951992262| 手 机
南京建邺万达中心G座2501室| 地址
客服
消息
收藏
下载
最近



























