查看完整案例


收藏

下载
项目地址| 阳光城
Project Address| Yango
项目风格 | 现代
Project Style|modern
项目类型| 复式
Project Type | Compound
项目面积 | 180m
Project Area | 180m
主创设计 | 杨文标
Chief Designer|Yang Wenbiao
映射生活的暖意和质感
在纯粹的意境中回归生活的静谧与自在
Mapping the warmth and texture of life
Return to the tranquility and freedom of life in the pure artistic conception
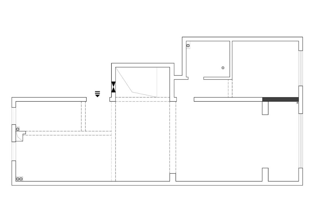
1F 原始平面图
1F 平面布置图
客厅·自然尺度
Living room
以温暖的暖色系为主调,将轻奢的情调缓缓延伸,软装家居以更自由的姿态为空间创造了丰富的层次感,让闲适的时光充满了生活的意趣。
交叠时尚的浪漫憩居氛围,阳光洒落,定格宁谧回想的空间。
餐厅 · 优雅舒适
Restaurant
雅致高级的材质与精致多元的软装相得映彰,暖意柔光折射高级的精致感,铺陈出浪漫写意的烟火氛围,盛放归于生活的纯粹和品质。
主卧·|多元场景
Master bedroom
卧室以大尺度的空间搭配雅致的色彩和舒适的材质,肌理感较强的木质营造出空间独有的气度与格调,光线的折射氤氲柔和氛围,包裹着舒适柔软的生活状态。
2F 原始平面图
2F 平面布置图图
书房 ·|空间气息den
柔和的灯光和温暖的色调,为空间晕染一份温馨和浪漫,将生活的美感投射其间,精致而惬意的休闲时光在此打开,细腻的生活品质悠然而生。
主卧·|浪漫氛围
Master bedroom
松弛的色彩、细腻的笔触、舒适的软装,在开放的空间尺度中,捕捉都市的生活美学新范式,将惬意的居住体验化作疗愈身心的自我力量,让浮躁的内心趋于平静。
次卧 ·|生活姿态
Secondary bedroom
舒适的材质勾勒家的沉稳,松弛的气韵和自然灵性相结合,交叠时尚的浪漫憩居氛围,阳光洒落,定格宁谧回想的空间。
杨文标
客服
消息
收藏
下载
最近

















