查看完整案例


收藏

下载
生活是一种律动,须有光有影,有左有右,有晴有雨,趣味就在这变而不猛的曲折里,微微暗些,再明起来,则暗得有趣,而明乃更明。
△玄关
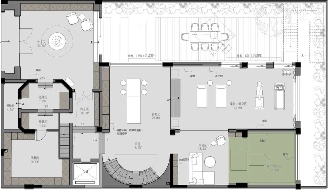
BF | 功能美感
探究居住艺术的路上,随着人们生活的模式以及工作的方式,打造出属于自己的生活空间就越来越个性化,融入日常多重功能需求,满足居家生活的不同功能,是现代居室重要且突出的特征之一。
本案综合居住者日常的爱好休闲,通过简约灵动的艺术手法,营造出张力十足,格调清新的状态,赋予生活的个性美感。
△玄关
△健身区
△休闲区
娱乐区
△酒吧区
△酒吧区
△高尔夫练习区
F1 | 格调质感
一层客厅通过自然、场景和材质的共同构建,来诠释人与居所、空间的关系。生活场景的精致感,来自于对于生活方式和习惯的洞察,设计师基于对业主的了解,将会客功能的属性放大,而表达上更加平和与内敛,呈现出低调的张力。
△电梯厅
△客厅
△客厅
△客厅
黑白灰的调性充满了质感,不需要通过夸张的表达诠释对品味的追求,越是高级越是简约。柔软的家具和温馨的壁炉共同营造出一个温暖宜人的氛围。在这里,时间仿佛变得缓慢,让人可以尽情放松身心,沉浸在室内的宁静中。
△客厅
△客厅
△客厅
△客厅
△餐厅
△餐厅
△厨房
开阔的餐厅与厨房连通一体,满足日常简餐或者多人聚餐的功能。通过黑白灰构建出清雅与静谧的舒展状态,中和了日常的烟火气,更加幽静与干净。
△公卫
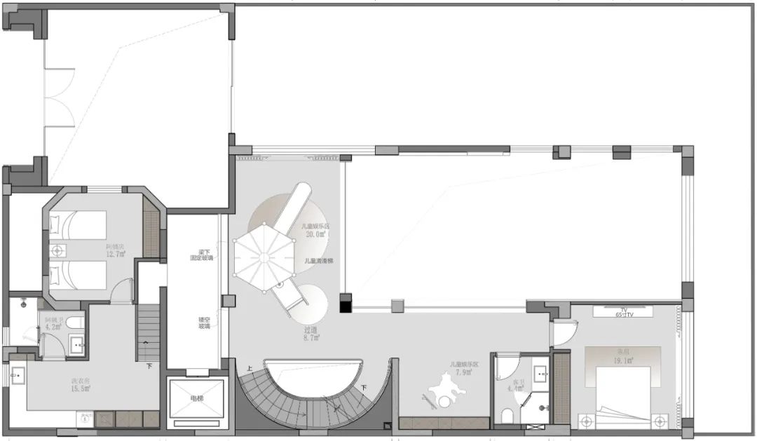
F2 | 生动灵气
更注重居住者的人物刻画需求。床头背景墙皆为干净的墙面或者线条,极致的雅致中突出的是一种宁静与亲厚,以此创造出独特的空间感受。床对面书桌的设计,巧妙地利用了空间的比例宽度,既提供了充足的收纳空间,又呈现出简洁利落的设计感。
△男孩房 A
△男孩房 B
△女孩房 A
△女孩房 B
△女孩房卫生间
F3 | 舒适归属
卧室以柔和的米白色温暖包裹,刻意避免复杂多变的图案和色彩,仅以顶部的几何结构线条破除单调,搭配工作与收纳场景的隐性链接,居住者在这里可以打开想象,舒展身心,用心感受每一个清晨和黄昏的时间变奏。
△主卧
△主卧
△主卧
△主卧衣帽间
△主卫
顶楼书房是一片安静的阅读天地。充足的采光引入空间,仿佛打开了通往知识的大门。靠背直通到顶的书架文艺典雅,书桌和舒适的沙发构成了一个优雅的休憩角落,让人在书香中放松心情,沉浸在阅读的乐趣中。
△书房
△书房
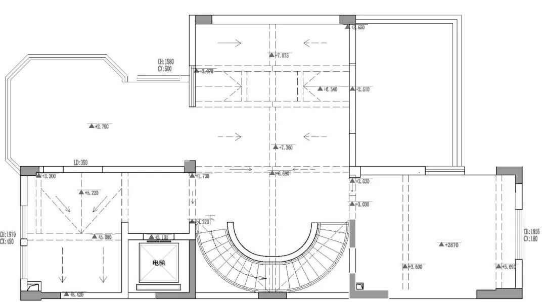
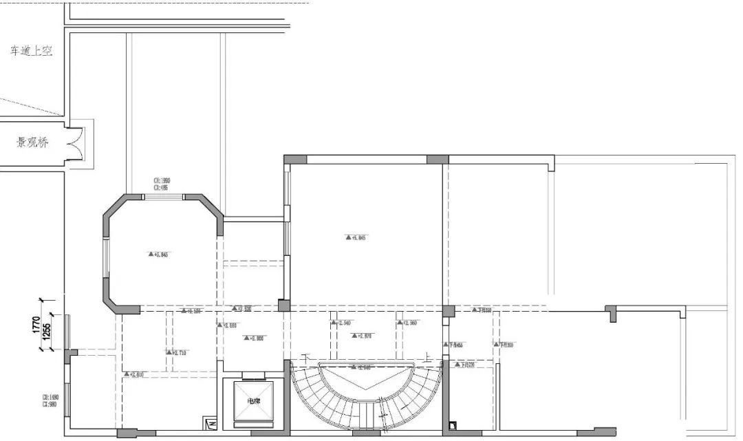
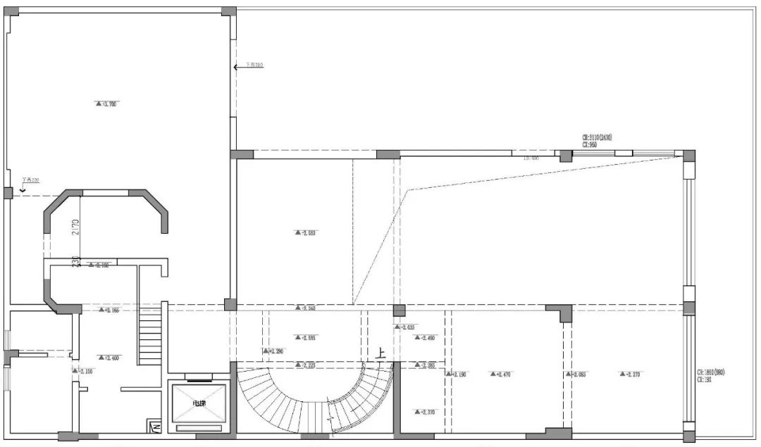
项目平面图
△B2 原始图
△B1 原始图
△F1 原始图
△F2 原始图
△F3 原始图
△B2 方案图
△B1 方案图
△F1 方案图
△F2 方案图
△F3 方案图
设计单位|木融设计
项目面积|950
主案设计|李玲波
参与设计|俞意
施工单位|义庭精工
项目类型|全案设计
完工时间|2023
主要材料|德国当代 LAUFEN 写意空间 Poliform Minotti FLOS
木融设计往期案例
木融设计|简约与前卫 诠释现代风尚
木融设计|静居 无为而雅
木融设计|摩登几何时尚
木融设计|复古与形象
静谧悠然世外桃源
木融设计|跟着感觉走 如风般自由
木融设计|城市中的心灵栖所
木融设计|梦想还原实现“Dream House”
李玲波
木融设计创始人/设计总监
坚持以艺术化的眼光来审视空间和时间的关系,用设计将二者完美结合。
执业以来连续 11 年获得多个业内设计大奖。擅长以敏锐的感知力,捕捉行业前沿动态。他的设计游走于理性思考和感性表达之间,对用设计解决现实问题,创造价值是他一以贯之的追求。
对高端豪宅和商业设计拥有丰富的实操经验,擅长将艺术、商业和设计相结合,创造出高品质的体验感受。
李玲波
设计理念
设计是一种审美活动,成功的设计作品一般都很艺术化。但艺术只是设计的手段,而并非设计的任务。设计的任务是要实现设计者的意图,设计者的意图就是要表现美,创造美。
木融设计成立于 2018 年,由设计师李玲波带领的创作团队,聚焦全球化视野,不受具体风格的限制。通过艺术化的思维来拓展生活方式的新可能,重新定义人与空间的关系。以定制化高端豪宅设计与商业设计为原点向外辐射,提供高品质化、体验化的设计服务。着力于在设计中体现艺术审美,创造多元的生活方式和美学理念,为生活、商业等各个形态场景赋能。
客服
消息
收藏
下载
最近














































