查看完整案例


收藏

下载
设计公司 | Design Company : Pro.S布舍设计
创意总监 | Design Director : 黄梓铖 Henry Wong
主案设计丨Master case design : 金涛
参与设计 | Involved in the design : 王楠、谢辉
项目类型 | Project Type : 美业沙龙
项目地址丨Project address: 中国 上海
项目面积 | Project Area :300㎡
主要材质 | Main Material : 亚克力、艺术漆、不锈钢、铝蜂窝板、自流平
设计概念
Concept of design
▽
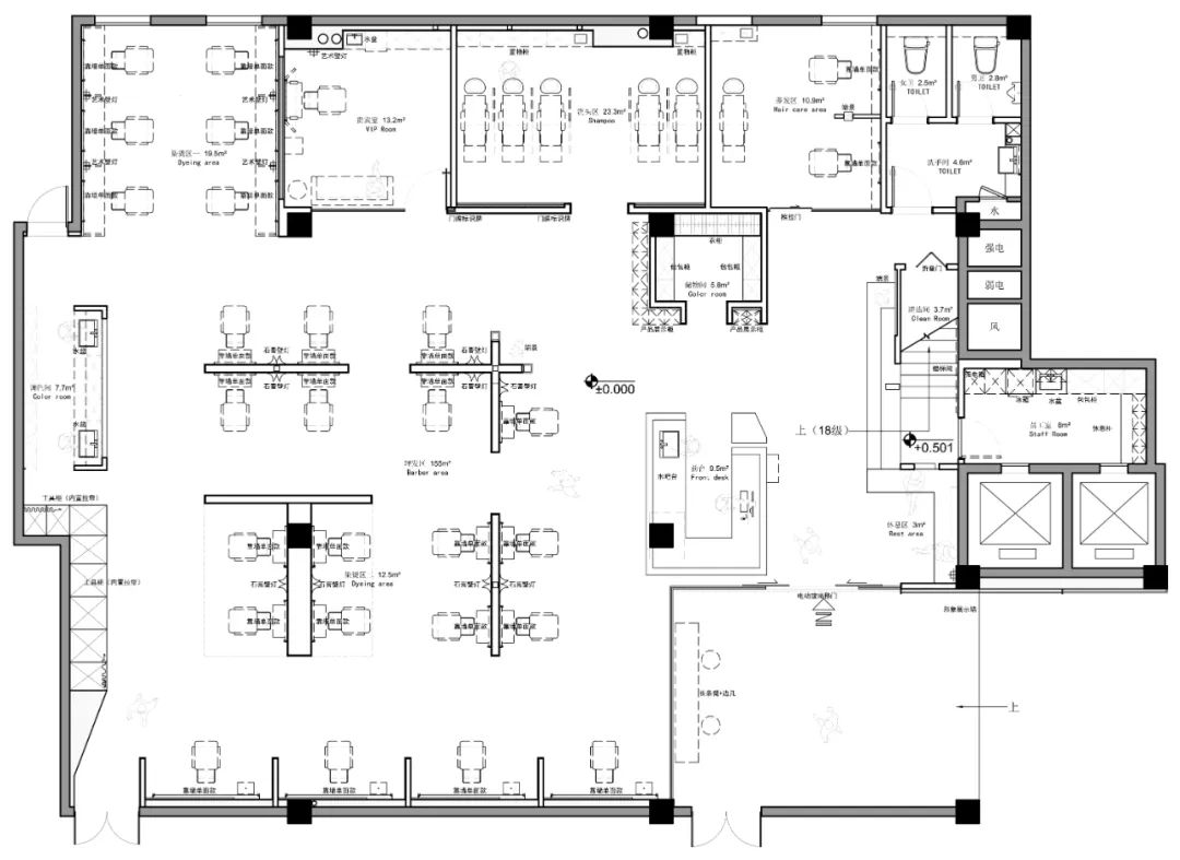
平面布置图
Layout plan
▽
设计说明:
不止于审美表层,我们更希望让空间设计的语境,建立在客群对功能、品位、审美、精神的高标准上,实现场景背后的商业穿透力与情绪感染力
1
总览
Overview
2
外立面
Facade
设计师把空间定位于极简高级,并在色彩与材质美学的塑造中,延伸出差异化的品牌辨识度。
3
前厅前台
Lobby
当一件作品的内容被减至最低限度时所散发的完美感觉,这就是去掉非本质元素的结果。
4
理发区
Barber area
摒弃过多的装饰与复杂色彩,黑白二色的对撞,与隐性光源的笼罩,令每一位从此走过的观者,被艺术化的优雅姿态包裹,予人微妙的触动。
去除非本质、不必要的装饰,使用干净流畅的外形,使设计呈现出优雅感和纯粹感,方便使用与欣赏。
5
贵宾区
VIP room
界面、色彩、光、影、人、物的适切状态,弱化了与四周的连贯性,烘托空间场景的画面感,增强沉浸体验
6
清洗区
Shampoo room
一场极简主义的盛宴:反对繁琐的花纹色彩搭配,追求平和、舒缓、内敛之感。
往期案例
布舍设计【白日酩酊】丨沙龙设计
布舍设计【寻光】丨沙龙设计
布舍设计【圆幻之旅】丨沙龙设计
客服
消息
收藏
下载
最近





















