查看完整案例


收藏

下载
设计公司 | Design Company : Pro.S布舍设计
创意总监 | Design Director : 黄梓铖 Henry Wong
主案设计丨Master case design : 金涛
参与设计 | Involved in the design : 王楠
项目类型 | Project Type : 美业沙龙
项目地址丨Project address: 中国上海
项目面积 | Project Area :110㎡
主要材质 | Main Material :微水泥、岩板、不锈钢、水磨石、银镜
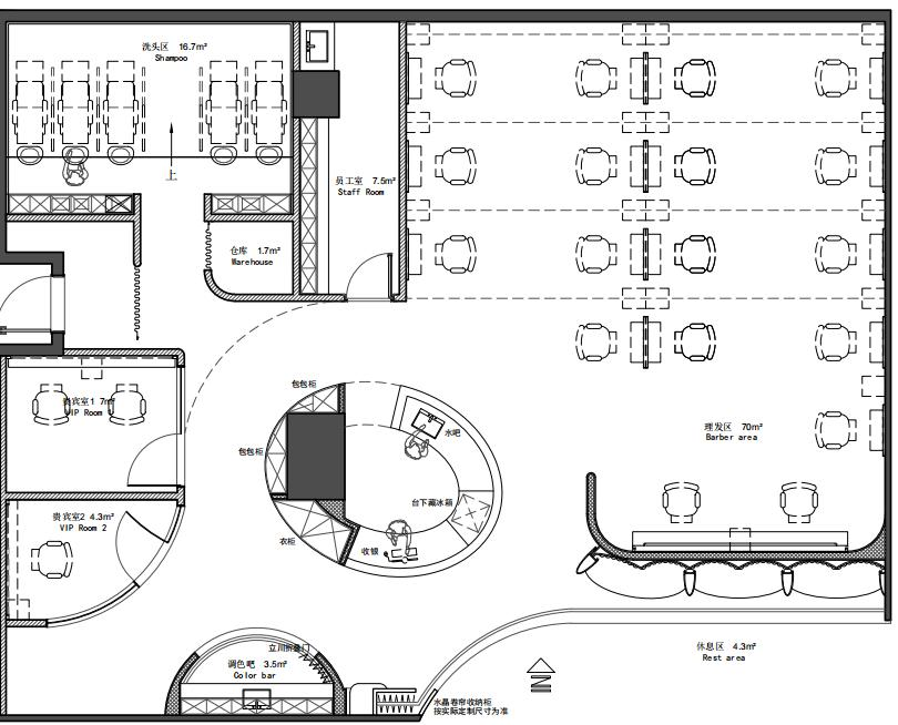
平面布置图
Layout plan
设计说明:不止于审美表层,我们更希望让空间设计的语境,建立在客群对功能、品位、审美、精神的高标准上,实现场景背后的商业穿透力与情绪感染力
1总览Overview
外立面
Facade
设计师在造型上突破传统,使空间流动起来,弧形设计为沙龙空间创造无限可能。
前厅前台
Lobby
打破直线的局限,给空间增添一种柔和、优雅的氛围。
4理发区
Barber area
弧形设计赋予空间独特的个性和魅力,无论是现代简约还是复古浪漫,弧形元素都能为空间增添艺术气息
贵宾区
VIP room
柔和的空间结构,使得封闭的空间不再压抑,很好的消除空间内人们的内心急躁。
6过道走廊
Hallway
明亮色彩和光线的巧妙搭配,营造出令人心驰神往的视觉盛宴。
一场柔光弧面的盛宴:追求平和、舒缓、创造、打破局限之感。
7清洗区
Shampoo room
往期案例
布舍设计【白日酩酊】丨沙龙设计
布舍设计【寻光】丨沙龙设计
布舍设计【圆幻之旅】丨沙龙设计
布舍室内设计近期荣誉:2019年度新锐设计师
2019年红棉中国设计奖商业空间奖
2019年中国装饰设计(CBDA)设计奖
2019年APDC亚太设计师大赛至尊奖
2019年第四届“戛迪奖”空间艺术设计奖
2020年第15届金外滩奖“最佳商业空间奖”2020年红棉中国设计奖餐饮空间银奖
2020年APDC亚太设计师大赛餐饮空间至尊奖
2021第三届CIID中国室内设计大奖商业空间金奖
2021年40 UNDER 40 广州设计杰出青年奖
2021年中国室内设计大奖赛餐饮空间银奖
2022年红棉中国设计奖商业空间奖
2023年第18届金外滩“最佳商业空间奖”
客服
消息
收藏
下载
最近























