查看完整案例


收藏

下载
设计公司 | Design Company : Pro.S布舍设计
创意总监 | Design Director : 黄梓铖 Henry Wong
主案设计丨Master case design : 金涛
参与设计 | Involved in the design : 王楠
项目类型 | Project Type : 美业沙龙
项目地址丨Project address: 中国 澳门
项目面积 | Project Area :100㎡
主要材质 | Main Material : 艺术涂料、原木、绿植、岩板、银镜
设计概念
C
oncept of design
▽
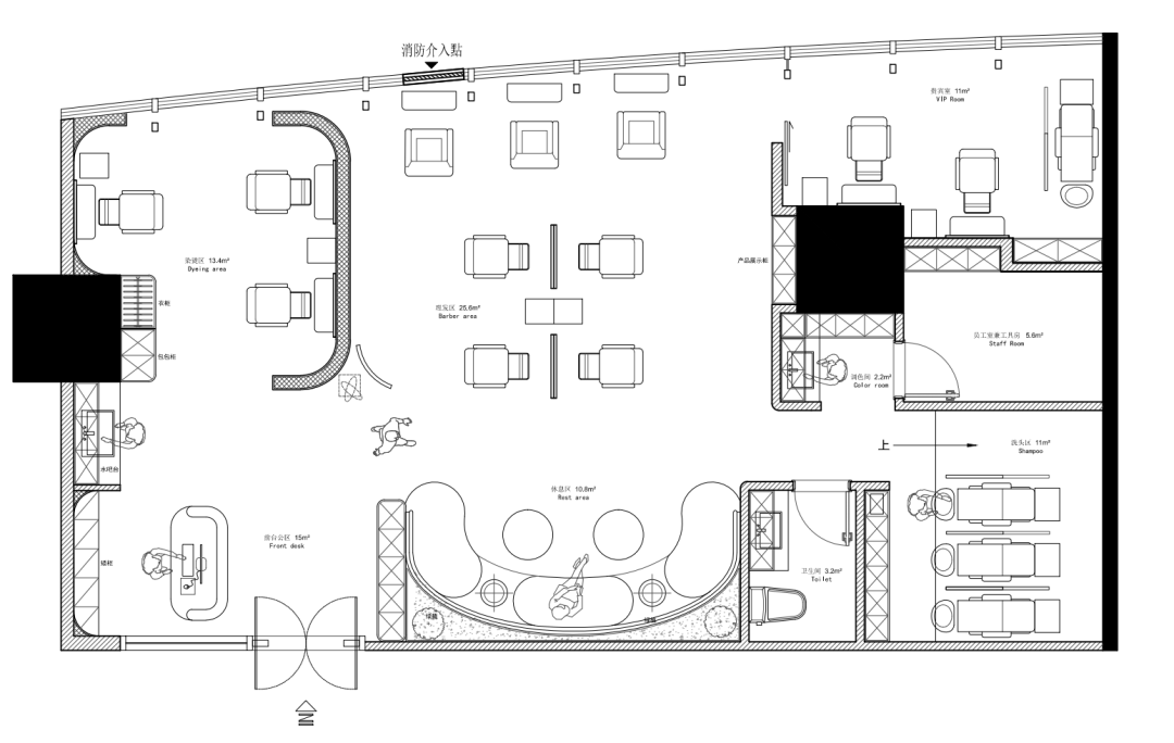
平面布置图
Layout plan
▽
设计说明:
不止于审美表层,我们更希望让空间设计的语境,建立在客群对功能、品位、审美、精神的高标准上,实现场景背后的商业穿透力与情绪感染力
1
总览
Overview
2
外立面
Facade
原木以其淳朴、自然、纯粹的特性,深受人们的追捧,越来越多的人开始注重回归自然,身心平衡。
3
前厅前台
Lobby
素雅装饰营造纯净的自然氛围,让空间纯净中透出一丝丝的温馨。
4
理发区
Barber area
多以圆弧曲面、原木色奶油色来融入到现代简约的风格中,简约的同时不失优雅、浪漫。
5
贵宾区
VIP room
在现代都市中,寻求一种返璞归真的意境,典雅大方,封闭的空间内有着大自然的和谐。
6
过道走廊
Hallway
7
清洗区
Shampoo room
一个自然治愈的空间:追求平衡与和谐的身心感受,摒弃城市的喧嚣。
客服
消息
收藏
下载
最近



















